Chapel Road, Morley St Botolph, NR18

£340,000

3 Bedroom Semi-Detached House for sale in Wymondham

2 3 1
  • Spacious three-bedroom semi-detached cottage
  • Boasting character and charm throughout
  • 21ft living room with feature fireplace
  • Kitchen opening out into the conservatory/diner
  • Three spacious and well-proportioned bedrooms
  • South-west facing garden with patio and firepit area
  • Walking distance to the sought after Wymondham College
  • Off-road parking and single garage
  • No onward chain!!!
  • See our full online listing for further details including flood risk, broadband speed and other material information.

 

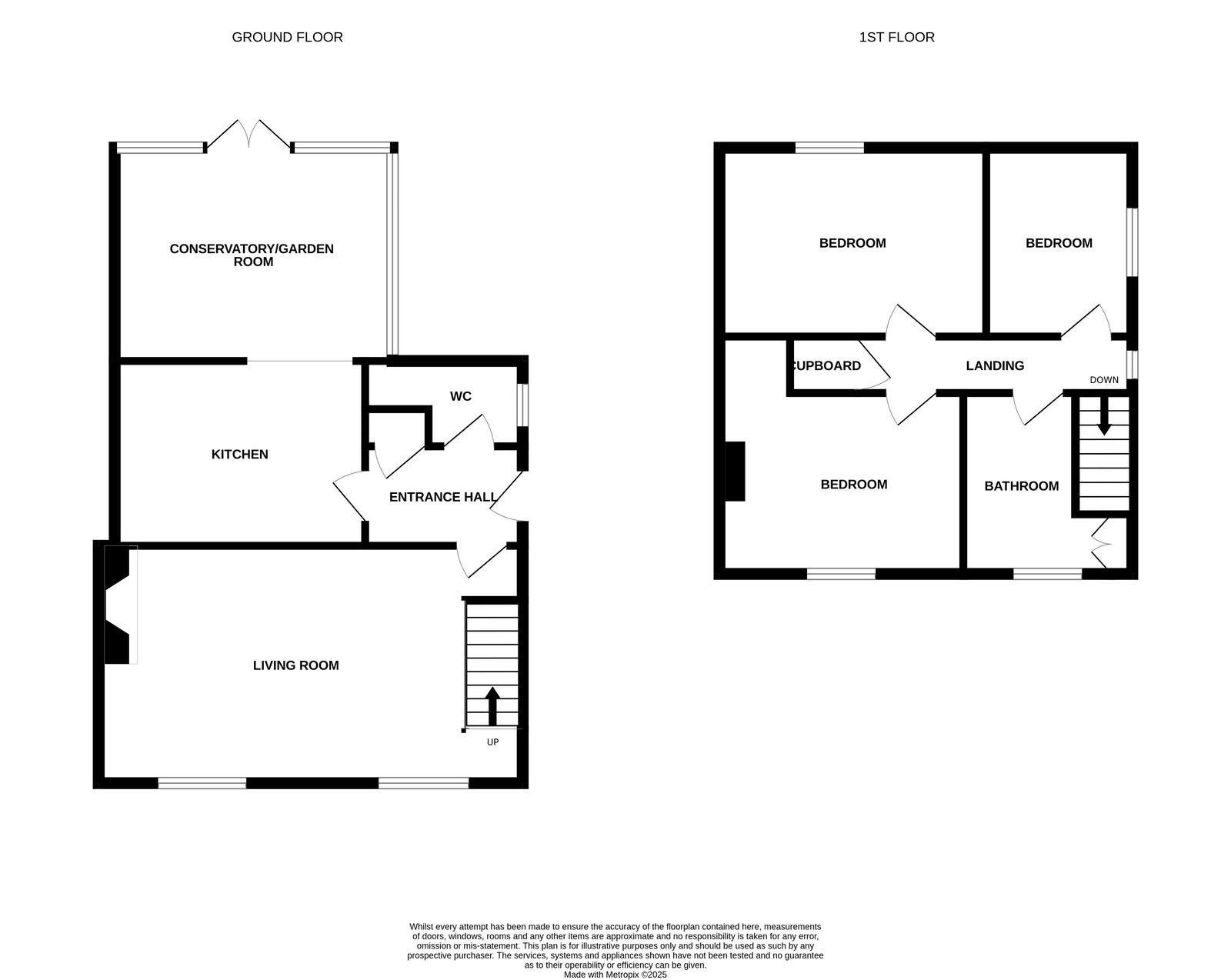
Moneyproperties are thrilled to be marketing this three-bedroom semi-detached cottage boasting character and charm throughout and within walking distance to the sought-after Wymondham College. This charming home comprises of an entrance hall, 21ft living room with feature fireplace, kitchen that opens out to the conservatory dining area and downstairs wc. To the upstairs comes three spacious and well-proportioned bedrooms along with a family bathroom. Outside the property enjoys a south-west facing garden with a firepit area, single garage, and off-road parking for 3+ cars. The property comes to market with no-onward chain.  

Entrance Hall

Living Room - 6.45m x 3.56m (21'2" x 11'8")

Kitchen - 3.66m x 2.82m (12'0" x 9'3")

Conservatory/Dining Area - 4.17m x 3.48m (13'8" x 11'5")

WC - 2.18m x 1.3m (7'2" x 4'3")
Maximum measurement L-shaped 
Bedroom One - 3.68m x 2.92m (12'1" x 9'7")

Bedroom Two - 3.68m x 3.68m (12'1" x 12'1")
Maximum measurement L-shaped 
Bedroom Three - 2.92m x 2.21m (9'7" x 7'3")

Bathroom - 2.54m x 1.42m (8'4" x 4'8")

Garage - 5.33m x 2.67m (17'6" x 8'9")

 

AGENT’S NOTES 

Planning :  Details, if any, can be found on the South Norfolk Council Planning website.

Covenants, Rights and Restrictions:  Please enquire with the selling agents for any information.

Broadband :  Superfast FTTC.  See Ofcom checker and Openreach website for more details.

Mobile phone :  See Ofcom checker for coverage details.

Flood risk :  Very Low risk surface, rivers and seas according to Gov.uk website

Services :  Mains electricity, water and sewage  

Local authority :  Norfolk County Council and South Norfolk Council

Council Tax Band :  B

Tenure :  Freehold

EPC : D

Important Information

  • This is a Freehold property.
  • This Council Tax band for this property is: B

Property Ref: 1137281

Share:

Similar Properties

Orchard Way, Wymondham, Norfolk. NR18 0NX

3 Bedroom Bungalow | Guide Price £325,000

This charming detached three-bedroom bungalow nestled in the sought-after Orchard Way, boasting approximately 1200 sq ft...

Goshawk Rise, Wymondham, NR18

3 Bedroom Detached House | Offers Over £325,000

Designed as a four-bedroom detached house but amended at build stage by the current vendors to create a generous three-b...

Goshawk Rise, Wymondham, NR18

3 Bedroom Link Detached House | £325,000

Moneyproperties are delighted to bring to market this well-presented three-bedroom link-detached family home occupying a...

Clifton Road, Wymondham, Norfolk. NR18 0JB

3 Bedroom Bungalow | £349,000

Motivated Sellers – Quick Sale Possible. Spacious Detached 3-Bedroom Bungalow with Annexe Potential. This well-maintaine...

Reeve Way, Wymondham, NR18

4 Bedroom Detached House | £365,000

with modern interior throughout, the property comprises of an entrance hall, spacious living room, open plan kitchen/din...

Vimy Ridge, Wymondham, NR18 0PA

3 Bedroom Semi-Detached House | Offers in region of £375,000

Moneyproperties are delighted to present this beautifully extended three-bedroom semi-detached home, ideally located on...

Money Properties (Wymondham)

17/18 Market Place, Wymondham, Norfolk, NR18 0AX

01953 423 006

How much is your home worth?

Use our short form to request a valuation of your property.

Request a Valuation

Mortgage Calculator

Amount Borrowed: £
Total Amount Repayable: £
Total Monthly Payment: £
©2026 The Guild of Property Professionals. All rights reserved. Terms and Conditions | Privacy Policy | Cookie Policy | Complaints Policy | Members Login
The Guild of Property Professionals Trading Address: 121 Park Lane, London W1K 7AG. GPEA Limited. Registered in England & Wales.  Company No: 02819824.  Registered Office Address: 2 St. Stephen's Court, St. Stephen's Road, Bournemouth, Dorset, England, BH2 6LA.  VAT Registration No: 576 8795 61
Book a Property Valuation Update Cookies Preferences