Granger Crescent, Wymondham, NR18

£112,000
SSTC
This property listing is now SSTC

3 Bedroom End of Terrace House for sale in Wymondham

1 3 1
  • Well-presented three bedroom end of terrace house
  • 40% shared ownership opportunity with Flagship housing, remaining 60% rent £483.36
  • Modern kitchen/breakfast room
  • Spacious living room/diner with french doors leading to the south facing garden
  • Three well-proportioned bedrooms
  • Located on a popular residential development
  • Within ease of access to local amenities, bus routes and the A11
  • Allocated off-road parking for x2 cars
  • Opportunity to staircase and buy a higher percentage share with Flagship Housing
  • See our full online listing for further details including flood risk, broadband speed and other material information


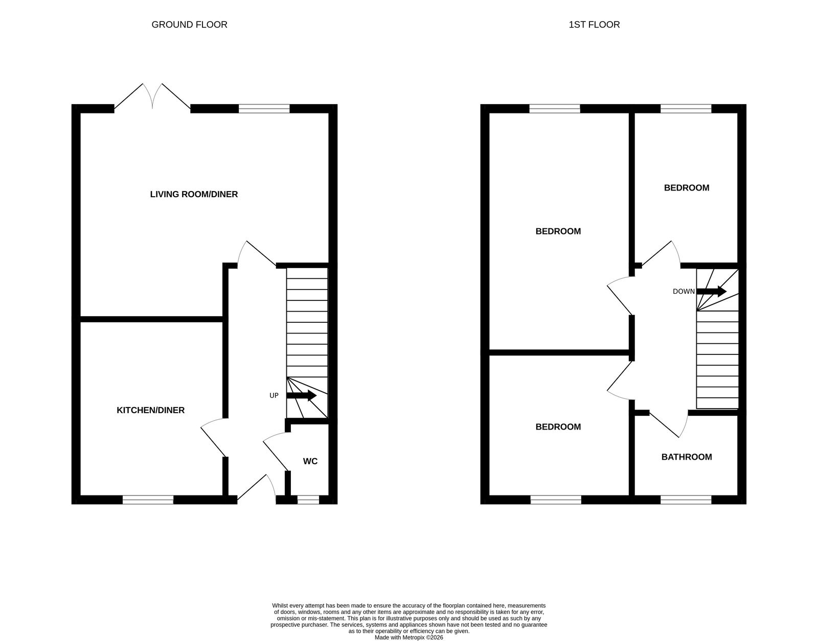
Moneyproperties bring to market this well-presented three-bedroom, end of terrace house offering 40% shared ownership. With modern interior throughout and bought from new the property comprises of an entrance hall, kitchen/breakfast room, spacious living room/diner and downstairs wc. To the upstairs comes three well-proportioned bedrooms and a family bathroom off the landing. Outside the property enjoys an enclosed rear garden with a patio area and allocated parking for x2 cars to the front. The 40% ownership share reflects a full market value of £280,000 following an RICS valuation.

Living Room/Diner - 5.08m x 4.17m (16'8" x 13'8")

Kitchen/Breakfast Room - 3.56m x 2.95m (11'8" x 9'8")

WC

Bedroom One - 4.83m x 2.9m (15'10" x 9'6")

Bedroom Two - 2.95m x 2.9m (9'8" x 9'6")

Bedroom Three - 3.1m x 2.06m (10'2" x 6'9")

Bathroom - 2.06m x 1.73m (6'9" x 5'8")

AGENT’S NOTES -

Planning :  Details, if any, can be found on the South Norfolk Council Planning website.

Covenants, Rights and Restrictions:  Please enquire with the selling agents for any information.

Broadband :  Ultrafast FTTP.  See Ofcom checker and Openreach website for more details.

Mobile phone :  See Ofcom checker for coverage details.

Flood risk :  Very low risk surface, rivers and seas according to Gov.uk website

Services :  Mains Services connected.

Local Authority :  Norfolk County Council and South Norfolk Council

Council Tax Band :  C

Tenure :  Leasehold

EPC : B

Rent payable on remaining 60% share £483.36 Flagship Housing. Leasehold 990 years from and including 14 April 2023 (987 remaining)

* Owned by current vendors from new since 2023 *

Important Information

  • This is a Leasehold property.
  • This Council Tax band for this property is: C

Property Ref: 1282750

Share:

Similar Properties

Royal Arch Court, Earlham Road, Norwich - Retirement property - second resident can be over 55.

1 Bedroom Flat | £110,000

Moneyproperties presents this charming one bedroom apartment offering picturesque views of the impressive St Johns Cathe...

Ferndale, Tabernacle Lane, Forncett St. Peter, NR16

2 Bedroom Semi-Detached House | £130,000

Moneyproperties bring to market this immaculately presented two-bedroom semi-detached house with 50% shared ownership (s...

Fairland Street, Wymondham, Norfolk

1 Bedroom Apartment | Fixed Price £150,000

Superb Recently Renovated One Bedroom Town Centre Apartment with Parking. Ideally located in the heart of the town centr...

Abbey Road, Wymondham, Norfolk

2 Bedroom Flat | Offers in region of £155,000

Moneyproperties present this two bedroom apartment with security access and off road parking being sold with no forward...

Money Properties (Wymondham)

17/18 Market Place, Wymondham, Norfolk, NR18 0AX

01953 423 006

How much is your home worth?

Use our short form to request a valuation of your property.

Request a Valuation

Mortgage Calculator

Amount Borrowed: £
Total Amount Repayable: £
Total Monthly Payment: £
©2026 The Guild of Property Professionals. All rights reserved. Terms and Conditions | Privacy Policy | Cookie Policy | Complaints Policy | Members Login
The Guild of Property Professionals Trading Address: 121 Park Lane, London W1K 7AG. GPEA Limited. Registered in England & Wales.  Company No: 02819824.  Registered Office Address: 2 St. Stephen's Court, St. Stephen's Road, Bournemouth, Dorset, England, BH2 6LA.  VAT Registration No: 576 8795 61
Book a Property Valuation Update Cookies Preferences