Melton Close, Wymondham, NR18

£250,000
SSTC
This property listing is now SSTC

3 Bedroom Semi-Detached House for sale in Wymondham

1 3 1
  • Three-bedroom semi-detached house
  • Located on a quiet cul de sac
  • Offering approximately 850 square foot of living space
  • 15ft living room leading to the conservatory
  • Newly fitted kitchen and flooring within the past two years
  • Well-presented throughout with modern interior
  • Extended 20ft garage with off-road parking
  • Enclosed rear garden
  • Must be viewed to fully appreciate
  • See our full listing for further details including flood risk, broadband speed and other material information.


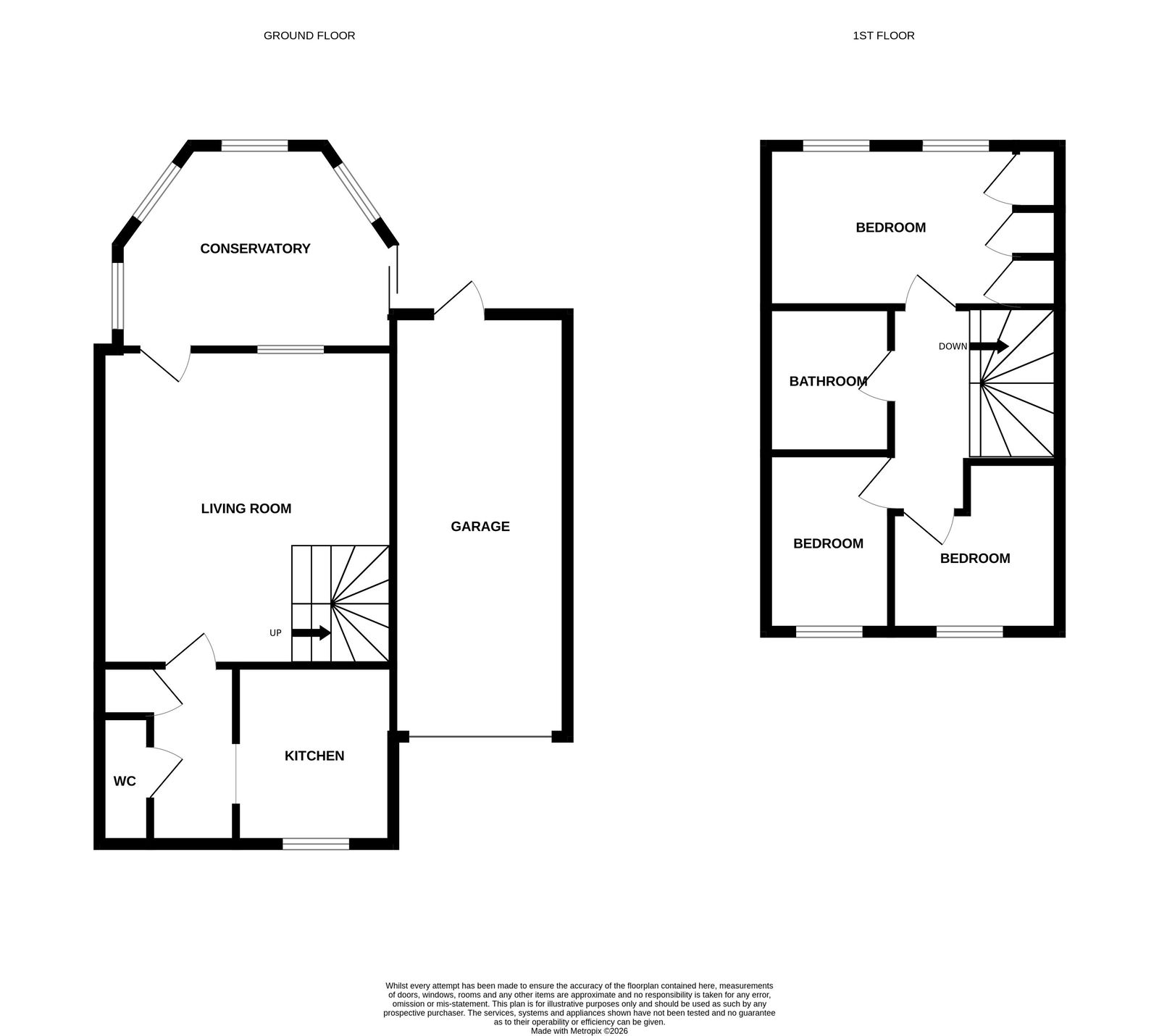
Moneyproperties bring to market this well-presented three-bedroom semi-detached house located on a quiet cul de sac. Deceptively spacious with modern interior, the property comprises of an entrance hall, downstairs wc, newly fitted kitchen within the past two years, and a 15ft living room leading into the good-sized conservatory to the rear. To the upstairs comes three bedrooms with built in storage to bedroom one and a bathroom. Outside the property enjoys a private rear garden, 21ft extended garage and off-road parking. The property has also had new flooring laid throughout within the past two years and must be viewed to fully appreciate.

Entrance Hall - 2.69m x 1.3m (8'10" x 4'3")

Downstairs WC - 1.93m x 0.76m (6'4" x 2'6")

Kitchen - 2.69m x 2.39m (8'10" x 7'10")

Living Room - 4.78m x 4.27m (15'8" x 14'0")

Conservatory - 3.86m x 3.3m (12'8" x 10'10")

Bedroom One - 3.66m x 2.44m (12'0" x 8'0")

Bedroom Two - 2.69m x 2.29m (8'10" x 7'6")

Bedroom Three - 2.69m x 2.08m (8'10" x 6'10")

Bathroom - 2.21m x 1.88m (7'3" x 6'2")

Single Garage - 6.38m x 2.69m (20'11" x 8'10")

Off-road parking

AGENT’S NOTES -

Planning :  Details, if any, can be found on the South Norfolk Council Planning website.

Covenants, Rights and Restrictions:  Please enquire with the selling agents for any information.

Broadband :  Ultrafast Full Fibre FTTP. See Ofcom checker and Openreach website for more details.

Mobile phone :  See Ofcom checker for coverage details.

Flood risk :  Very Low risk of surface, rivers and seas according to Gov.uk website

Services :  Mains Electricity, Gas, Water and Sewage

Local authority :  Norfolk County Council and South Norfolk

Council Tax Band :  B

Tenure :  Freehold

EPC : D

Important Information

  • This is a Freehold property.
  • This Council Tax band for this property is: B

Property Ref: 1375405

Share:

Similar Properties

Old Oak Close, Wymondham, NR18

2 Bedroom Semi-Detached House | Offers in region of £250,000

Moneyproperties are delighted to bring to market this generous two-bedroom semi-detached house offering approximately 70...

Evora Road, tranquil living environment with practical access to amenities, Wymondham ,Norfolk

2 Bedroom Semi-Detached House | Offers in region of £250,000

Moneyproperties are delighted to present this charming two-bedroom semi detached house, offering a comfortable 720 sq ft...

Fairland Street, Wymondham, NR18 0AN

Office | Fixed Price £250,000

Rare Town Centre Commercial Opportunity – Sold with Tenant in Situ  - An excellent investment opportunity to acquire thi...

The Turnpike, Fundenhall, NR16

3 Bedroom Semi-Detached House | Offers in region of £254,800

Moneyproperties bring to market this spacious three-bedroom semi-detached house occupying a generous plot with a 125ft r...

Sheppards Drove, Wymondham, NR18

3 Bedroom End of Terrace House | Offers Over £260,000

Moneyproperties are delighted to bring to market this well-presented three-bedroom end of terrace house located down a q...

High House Close, Wymondham, NR18

2 Bedroom Semi-Detached Bungalow | £260,000

Moneyproperties present this deceptively spacious two-bedroom semi-detached bungalow within close proximity to local ame...

Money Properties (Wymondham)

17/18 Market Place, Wymondham, Norfolk, NR18 0AX

01953 423 006

How much is your home worth?

Use our short form to request a valuation of your property.

Request a Valuation

Mortgage Calculator

Amount Borrowed: £
Total Amount Repayable: £
Total Monthly Payment: £
©2026 The Guild of Property Professionals. All rights reserved. Terms and Conditions | Privacy Policy | Cookie Policy | Complaints Policy | Members Login
The Guild of Property Professionals Trading Address: 121 Park Lane, London W1K 7AG. GPEA Limited. Registered in England & Wales.  Company No: 02819824.  Registered Office Address: 2 St. Stephen's Court, St. Stephen's Road, Bournemouth, Dorset, England, BH2 6LA.  VAT Registration No: 576 8795 61
Book a Property Valuation Update Cookies Preferences