Pople Street, Wymondham, NR18

Offers in region of
£300,000
SSTC
This property listing is now SSTC

3 Bedroom Semi-Detached House for sale in Wymondham

2 3 1
  • Spacious three bedroom semi-detached house
  • Occupying a generous plot
  • Within walking distance to the town centre, amenities and schools
  • 12ft living room leading to the dining area
  • 14ft sun room overlooking the rear garden
  • Three well-proportioned bedrooms with built in wardrobes to bedrooms one and two
  • Converted loft room with velux windows
  • 54ft landscaped rear garden with patio area, greenhouse and storage sheds
  • 12ft laundry outbuilding with power and lighting.
  • See our full online listing for further details including flood risk, broadband speed and other material information


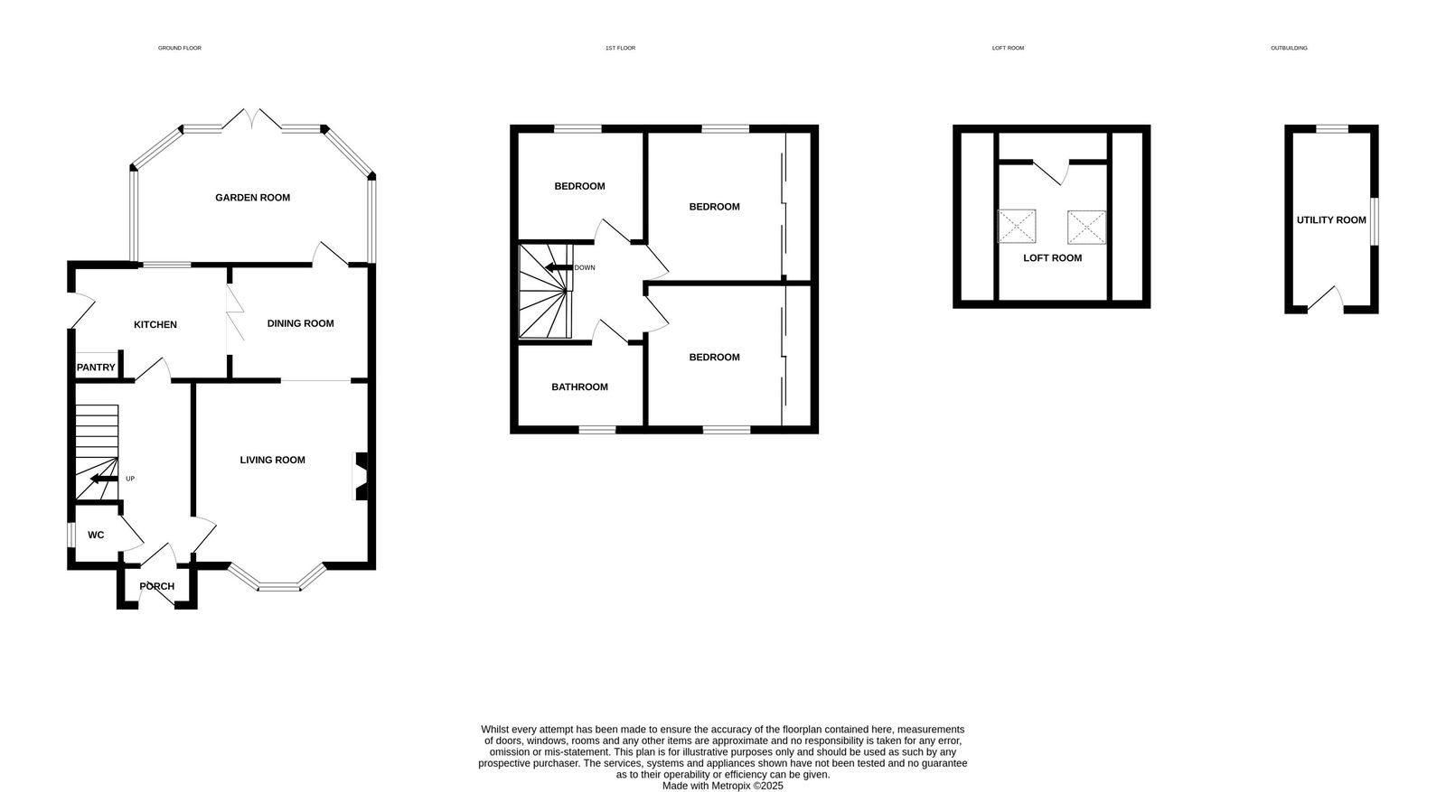
Moneyproperties are delighted to bring to market this well-presented three-bedroom semi detached house occupying a generous plot within walking distance to the town centre, amenities, and local schools. The property enjoys a spacious living room leading to the dining area, 14ft sun room overlooking the rear garden, kitchen and downstairs wc. To the upstairs comes three well-proportioned bedrooms with built in wardrobes to bedrooms one and two and a family bathroom. A bonus to this property is a converted loft room along with a 12ft laundry outbuilding with power and light. The outside further benefits from a 56ft landscaped rear garden, storage sheds, greenhouse, and off-road parking for x3 cars.

Porch - 1.52m x 0.84m (5'0" x 2'9")

Living Room - 3.91m x 3.76m (12'10" x 12'4")

Dining Room - 3m x 2.44m (9'10" x 8'0")

Kitchen - 3.33m x 2.49m (10'11" x 8'2")

Sun Room - 4.37m x 2.87m (14'4" x 9'5")

WC

Bedroom One - 3.3m x 2.87m (10'10" x 9'5")

Bedroom Two - 3.3m x 2.49m (10'10" x 8'2")

Bedroom Three - 2.77m x 2.39m (9'1" x 7'10")

Bathroom - 2.03m x 1.47m (6'8" x 4'10")

Loft Room - 3.3m x 2.92m (10'10" x 9'7")

Utility Outbuilding - 3.76m x 1.8m (12'4" x 5'11")

Rear Garden - 17.07m x 9.14m (56'0" x 30'0")

Off-road parking x3 cars

AGENT’S NOTES -

Planning :  Details, if any, can be found on the South Norfolk Council Planning website.

Covenants, Rights and Restrictions:  Please enquire with the selling agents for any information.

Broadband :  FTTP - Full Fibre to Premises - See Ofcom checker and Openreach website for more details.

Mobile phone :  See Ofcom checker for coverage details.

Flood risk :  Very low risk of surface, rivers and seas according to Gov.uk website

Services :  Mains services connected. 

Local authority :  Norfolk County Council and South Norfolk

Council Tax Band :  B

Tenure :  Freehold

EPC : C

Important Information

  • This is a Freehold property.
  • This Council Tax band for this property is: B

Property Ref: 1142034

Share:

Similar Properties

Bramble Way, Wymondham, NR18

3 Bedroom Semi-Detached House | Offers in region of £300,000

Moneyproperties bring to market this spacious three-bedroom semi-detached house located on the popular Harts Farm develo...

Velvet Close, Wymondham, NR18

3 Bedroom Semi-Detached House | Offers in region of £285,000

Moneyproperties are delighted to present this modern three-bedroom semi-detached home,  The property was tastefully upgr...

Swallow Drive, Wymondham, NR18

3 Bedroom Semi-Detached House | Guide Price £280,000

Moneyproperties bring to market this immaculately presented three-bedroom semi-detached house located on a popular resid...

Sycamore Avenue, Wymondham, Norfolk , NR18 0HF

4 Bedroom Detached House | Offers in region of £320,000

Moneyproperties are pleased to present this spacious five-bedroom home, featuring three bedrooms on the first floor and...

Goshawk Rise, Wymondham, NR18

3 Bedroom Link Detached House | £325,000

Moneyproperties are delighted to bring to market this well-presented three-bedroom link-detached family home occupying a...

Goshawk Rise, Wymondham, NR18

3 Bedroom Detached House | Offers Over £325,000

Designed as a four-bedroom detached house but amended at build stage by the current vendors to create a generous three-b...

Money Properties (Wymondham)

17/18 Market Place, Wymondham, Norfolk, NR18 0AX

01953 423 006

How much is your home worth?

Use our short form to request a valuation of your property.

Request a Valuation

Mortgage Calculator

Amount Borrowed: £
Total Amount Repayable: £
Total Monthly Payment: £
©2026 The Guild of Property Professionals. All rights reserved. Terms and Conditions | Privacy Policy | Cookie Policy | Complaints Policy | Members Login
The Guild of Property Professionals Trading Address: 121 Park Lane, London W1K 7AG. GPEA Limited. Registered in England & Wales.  Company No: 02819824.  Registered Office Address: 2 St. Stephen's Court, St. Stephen's Road, Bournemouth, Dorset, England, BH2 6LA.  VAT Registration No: 576 8795 61
Book a Property Valuation Update Cookies Preferences