Sybilla Grove, Yarm

Guide Price
£495,000
Under Offer
This property listing is now Under Offer

4 Bedroom Detached House for sale in Yarm

2 4 2
  • Four Double Bedrooms Rear 'Family Hub' - Kitchen / Dining / Living Space Bay Fronted Lounge & Second Reception Room Pristine Family Bathroom & Shower Room Upgraded Features Landscaped Rear Garden...

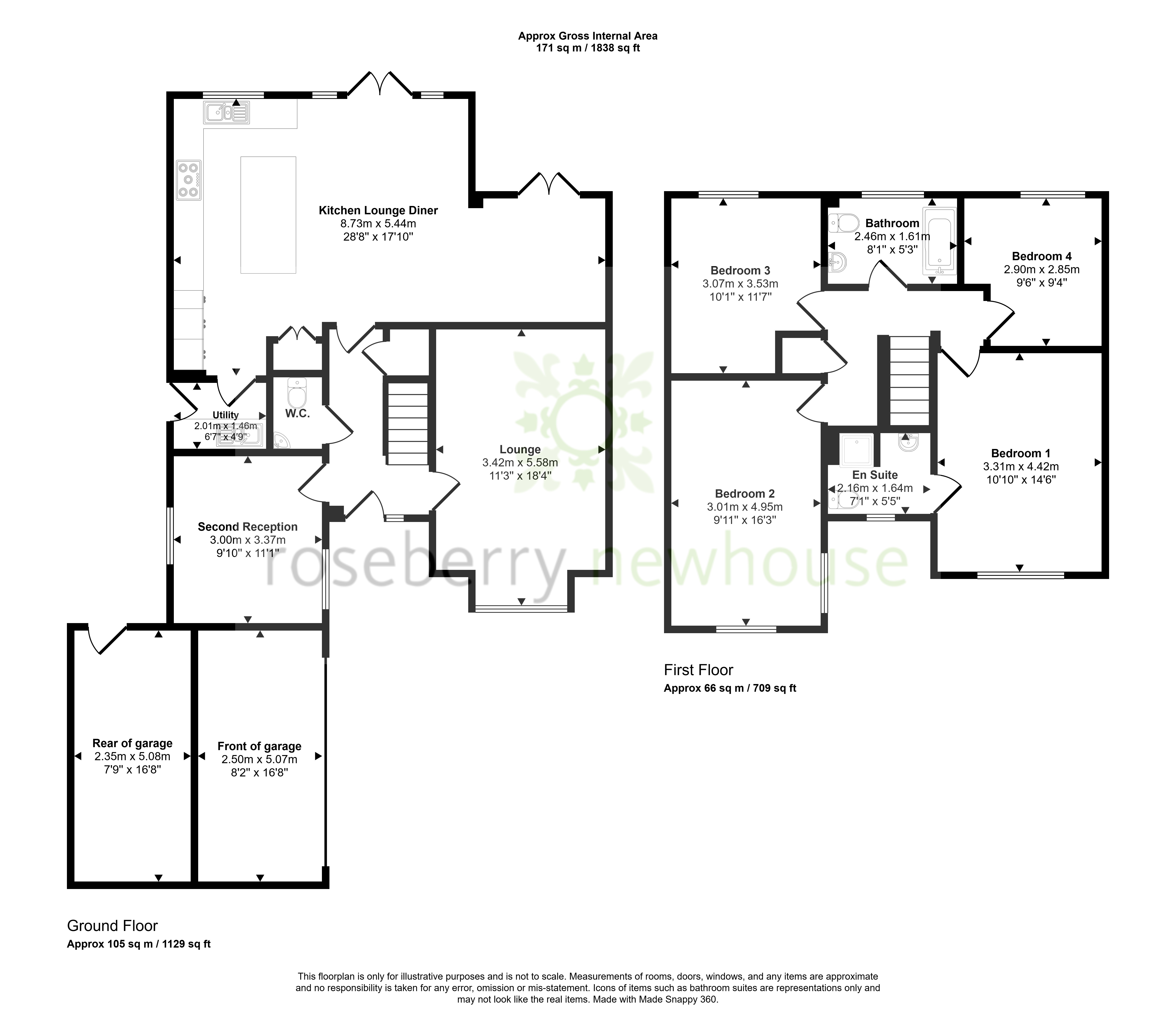
Positioned on a corner plot and within the desired Conyers Green development, this attractive family home is one of only a handful built by Bellway Homes. Constructed to the 'Sandringham' design and within convenient access to several Schools and Yarm Rail Station.

In brief, the accommodation comprises: A welcoming entrance hallway complete with decorative wall panelling, a study / playroom, W/C and a generous bay fronted lounge. The real heart of the home is the exceptional rear family hub which spans the full width of the property as a breakfast kitchen, dining and living space. The kitchen area features a range of gloss base/wall units, complete with integrated AEG cookware, inset dishwasher, fridge/freezer and a central Island. Additional features include granite overlay work surfaces, LED plinth lighting, Karndean flooring, underfloor heating and French patio doors which lead out to the rear garden. Accessed off the kitchen area is a useful utility room. To the first floor there are four double bedrooms, with the principal bedroom benefitting from an en-suite shower room. Completing the first floor is a stylish part-tiled three piece family bathroom. Externally, an extensive block paved driveway provides off street parking which leads to a double garage, whilst the rear garden has been landscaped and features paved seating areas and a low maintenance synthetic lawn. The detached double garage has been modified and now features a room that is currently used as a 'Salon' and is accessed via a UPVC door from the rear garden. The front part of the garage is used for storage and features an electric roller door.

Important Information

  • This is a Freehold property.
  • This Council Tax band for this property is: F
  • EPC Rating is B

Property Ref: TES240492

Share:

Similar Properties

Modern 4-bed detached in prime Eaglescliffe location – no chain

4 Bedroom Detached House | Guide Price £430,000

Stylish 4 double bedroom detached home in sought-after West Acres Park, Eaglescliffe. Offering over 2,000 sq. ft with op...

Stylish “Hollicombe” Design Home with Bi-Folds & Two En-Suites in Prime Eaglescliffe Location

4 Bedroom Detached House | Guide Price £420,000

A beautifully presented four-bedroom detached “Hollicombe” by Charles Church, located in sought-after Eaglescliffe near...

The Old Market, Yarm

Plot | Offers Over £395,000

This outstanding residential development site is set within central Yarm high street. The plot extends to approximately...

Exceptional Five Bedroom Story Homes “Charlton” with Stunning Landscaped Garden & Open Country Views

5 Bedroom Detached House | Guide Price £525,000

Impressive five bedroom Story Homes “Charlton” built in 2024, offering approx. 1,905 sq. ft. of high-spec family accommo...

Brantingham Drive, Ingleby Barwick

5 Bedroom Detached House | Offers Over £550,000

An exceptional 5 bed executive home, offering over 2,350 sq. ft. of well designed living space, positioned within The Ri...

Exceptional four double bedroom family home within one of Yarm’s most prestigious and mature residential settings.

4 Bedroom Detached House | Guide Price £575,000

Outstanding four double bedroom detached family home set within a prestigious mature Yarm development close to excellent...

Roseberry Newhouse Teesside Hub (Stockton-on-Tees)

Cygnet Drive, Stockton-on-Tees, Durham, TS18 3DB

01642 792488

How much is your home worth?

Use our short form to request a valuation of your property.

Request a Valuation

Mortgage Calculator

Amount Borrowed: £
Total Amount Repayable: £
Total Monthly Payment: £
©2026 The Guild of Property Professionals. All rights reserved. Terms and Conditions | Privacy Policy | Cookie Policy | Complaints Policy | Members Login
The Guild of Property Professionals Trading Address: 121 Park Lane, London W1K 7AG. GPEA Limited. Registered in England & Wales.  Company No: 02819824.  Registered Office Address: 2 St. Stephen's Court, St. Stephen's Road, Bournemouth, Dorset, England, BH2 6LA.  VAT Registration No: 576 8795 61
Book a Property Valuation Update Cookies Preferences