Yelverton

Guide Price
£850,000

4 Bedroom Detached House for sale in YELVERTON

2 4 3
  • Unique Architect Designed Home
  • Walking Distance to Yelverton Village
  • Far Reaching Dartmoor Views
  • 4 Bedrooms - 2 En Suite
  • Modern Built with Character
  • Ample Gardens and Parking
  • Finished to an Excellent Standard
  • No Onward Chain

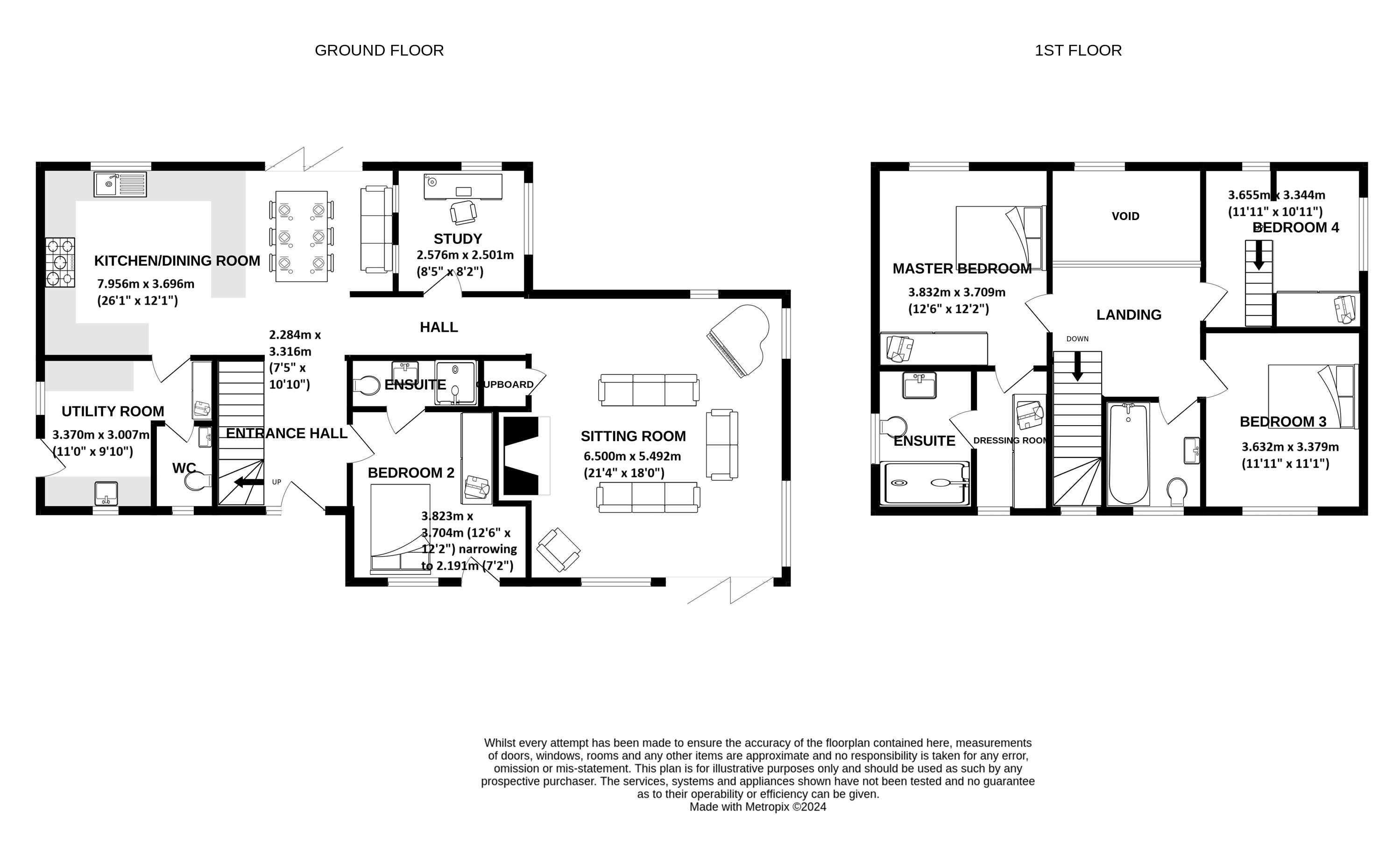
'Fly Away' is a unique, architecturally designed, oak framed four bedroom home in Yelverton. Built in 2019, this stunning detached property is set on a generous plot at the top of Harrowbeer Lane in Yelverton, meaning there is easy walking access to the village pub, shops and other amenities, as well as a good bus link to Tavistock and Plymouth. The attention to detail in this property is outstanding with the thoughtful placement of windows throughout to make the most of the beautiful Dartmoor views and allow plenty of light in. Luxury finishes, bespoke stained glass and clever lighting paired with the exposed oak beams make for a characterful home full of charm, whilst still retaining a contemporary feel. The heart of the home is an open plan kitchen/dining room which has double height ceilings and bi-fold doors out on to the terrace, a breakfast bar separates the two spaces, with a nook for a sofa, plus a good size utility room with downstairs cloakroom. The kitchen has a range of built in appliances including dishwasher and wine cooler, underneath the most beautifully patterned granite worktops. To the other side of the house is an impressive triple aspect sitting room which has vaulted ceilings, a large Inglenook fireplace and a further set of bi-fold doors on to a sheltered terrace. Further accommodation downstairs includes a study and a double bedroom with fitted wardrobes and en-suite. 

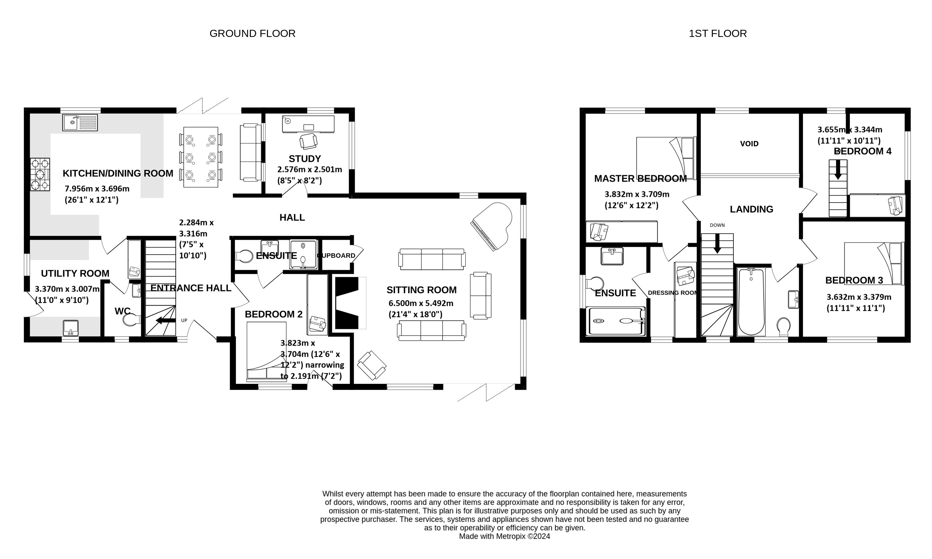
Upstairs you are greeted by a splendid galleried landing with a glazed screen overlooking the dining room below and a picture window creating a perfect frame of the Moors. The master suite also takes advantage of this uninterrupted view and benefits from fitted wardrobes, a dressing room and a spacious shower room. There are two further double bedrooms on this floor plus a modern family bathroom. 

The majority of the gardens are to the rear and enjoy views to Dartmoor. There is a good size paved terrace off the house with contemporary fencing creating a sheltered spot to entertain guests. Steps lead down to a large sloping lawn with a garden room currently set up as a home gym with sauna, there is also another outbuilding at the bottom of the garden which was previously used as a chicken coop. The gardens to the front of the house are well planted with a meandering granite path leading to a summer house and a patio with gazebo off the bi-fold doors. The property is approached via a private road with electric gates leading to a driveway for several cars. 

Composite entrance door with glazed panel gives access to:

HALLWAY
2.284m x 3.316m (7'5" x 10'10")
Exposed beams, limestone flooring with underfloor heating staircase to first floor, staircase to the first floor, understairs storage cupboard, opening into:

KITCHEN/DINING ROOM
7.956m x 3.696m (26'1" x 12'1")
Fitted with a range of high gloss contemporary fitted base units and drawers, under granite work surfaces, matching wall cupboards, dark glass upstands, built in Bosch electric double ovens one with steam function, warming drawer, separate rangemaster cooker, with induction hob and concealed cooker hood over, inset one and a half bowl sink unit with mixer tap, built in fridge/freezer, integrated dishwasher, wine cooler, inset ceiling lighting, exposed beams, breakfast bar separates dining area, limestone flooring throughout the kitchen/dining room area.

The dining area has double height ceiling with, galleried landing fixed window, bi fold doors lead to garden and enjoy views to the moors, exposed beams, snug with stain glass windows, inner hallway continues to the sitting room.

UTILITY ROOM
3.370m x 3.007m (11'0" x 9'10")
Fitted with high gloss contemporary units under granite work surfaces, floor to ceiling cupboard, underslung sink with mixer tap, cupboard housing gas boiler, plumbing for washing machine, pet bed area, dog window to side and front, part glazed door to side, exposed beams, limestone flooring with underfloor heating.

WC
White contemporary suite comprising, low flush WC with concealed cistern, wash hand basin with mixer tap and cupboard under, fully tiled walls, exposed beams, extractor fan, double glazed window to front, limestone flooring, ladder style radiator.

BEDROOM TWO
3.823m x 3.704m (12'6" x 12'2") narrowing to 2.191m (7'2")
Exposed beamed ceiling, built in wardrobe, double glazed window to front, glazed door to garden, underfloor heating, door to:

EN SUITE
Contemporary suite in white comprising low flush WC with concealed cistern, wash hand basin with mixer tap and cupboard under, vanity cupboard with mirror over, double shower enclosure with mains drencher shower and separate hand held attachment, glazed door and screen, vertical radiator with towel rail, extractor fan, underfloor heating.

STUDY
2.576m x 2.501m (8'5" x 8'2")
Dual aspect room with double glazed windows to rear and side, wooden herringbone flooring with underfloor heating, inset ceiling lighting, exposed beams.

SITTING ROOM
6.500m x 5.492m (21'4" x 18'0")
Triple aspect room with large rectangular windows and bi fold doors to garden, vaulted ceiling with exposed beams, feature large modern inglenook fireplace with marble hearth and wood burner, wooden lintel over, wooden herringbone flooring, storage cupboard with light.

LANDING
Impressive galleried landing with vaulted ceiling and exposed beams, glazed screen overlooking dining area, double glazed window to front.

MASTER BEDROOM
3.832m x 3.709m (12'6" x 12'2")
Vaulted ceiling with exposed beams, velux window, double glazed window to rear enjoying uninterrupted views to the Moor. Built in triple wardrobes, underfloor heating, door to:

DRESSING ROOM
2.899m x 1.054m (9'6" x 3'5")
Double glazed window to rear, part vaulted ceiling with exposed beams, double built in wardrobe, door to:

EN SUITE
White contemporary suite comprising walk in shower with glazed screen, drencher shower head and separate hand held attachment, Villeroy Bosch low flush WC with concealed cistern, large wash hand basin with mixer tap and drawers under, lit vanity mirror over, vertical radiator with towel rail, vaulted ceiling with exposed beams, double glazed window to side, built in storage cupboards, extractor fan, inset ceiling lighting.

FAMILY BATHROOM
White contemporary suite comprising panelled bath with side mounted taps with drencher shower over, glazed screen, low flush WC with concealed cistern, wash hand basin with mixer tap and drawers under, mirror fronted vanity cupboard over, ladder style radiator, under floor heating, extractor fan, double glazed window to front, exposed beams.

BEDROOM THREE
3.632m x 3.379m (11'11" x 11'1")
Part vaulted ceiling with exposed beams, double glazed window to front, underfloor heating.

BEDROOM FOUR
3.655m x 3.344m (11'11" x 10'11")
Dual aspect room with double glazed window to side and rear, built in triple wardrobes, steps up to bedroom platform with lighting.

EXTERNAL
The property is approached via a private road leading to electrically operated gates to the driveway with parking for several cars.

There is a garden to the front off the sitting room with patio area and steps up to lawn.

The majority of the gardens are to the rear and enjoy views to Dartmoor with an enclosed sun terrace enclosed by fencing providing shelter. Steps lead down to a large lawn sloping down with a garden room currently used a as gym and at the bottom of the garden is an outbuilding which was formally used to keep chickens.

Please note that some of the trees have Tree Preservation Orders on them.

GYM
7.373m x 3.019m (24'2" x 9'10")
Timber building with double glazed window to front and French doors, lighting and power, built in sauna.

SERVICES
Mains electric/gas/water/drainage.       

OUTGOINGS
We understand the property is in band 'F' for council tax purposes by internet enquiry with West Devon Borough Council.       

VIEWING
By appointment with Kirby Estate Agents on 01822 612010.

MOBILE AND BROADBAND COVERAGE
To check broadband and mobile phone coverage please visit Ofcom here:

ofcom.org.uk/phones-telecoms-and-internet/advice-for-consumers/advice/ofcom-checker

FLOOR PLAN DISCLAIMER
These plans are set out as a guideline only and should not be relied upon as a representation of fact. They are intended for information purposes only and are not to scale.      

TENURE
Freehold.          

PLEASE NOTE

Before any sale is formally agreed, we have a legal obligation under the Money Laundering regulations and Terrorist Financing Act 2017 to obtain proof of your identity and of your address, take copies and retain on file for five years and will only be used for this purpose.

We carry out this through a secure platform to protect your data. Each purchaser will be required to pay £20 upon an offer verbally being agreed to carry out these checks prior to the property being advertised as sale agreed.

We may refer buyers and sellers through our panel of Conveyancers. It is your decision whether you choose to use their services. Should you decide to use their services you should know that we would receive a referral fee of £150 from them for recommending you. As we provide them with a regular supply of work you benefit from a competitive price.

We also refer buyers and sellers to our Financial Advisers. It is your decision whether you choose to use their services. Should you decide to use any of their services you should be aware that we would receive a average referral fee of £200 from them for recommending you.

You are not under any obligation to use the services of any of the recommended providers, though should you accept our recommendation the provider is expected to pay us the corresponding referral fee.

Prior to a sale being agreed and solicitors instructed, prospective purchasers will be required to produce identification documents to comply with Money Laundering regulations.

what3words: warping.rumble.bloom

Important Information

  • This is a Freehold property.
  • This Council Tax band for this property is: F

Property Ref: L811874

Share:

Similar Properties

Week, Brentor

3 Bedroom Barn Conversion | Guide Price £675,000

Impressive THREE bedroom Grade II Listed BARN CONVERSION on a PRIVATE COMPLEX with COMMUNAL SWIMMING POOL, almost 8 ACRE...

Horrabridge

5 Bedroom Semi-Detached House | Guide Price £660,000

A beautiful FIVE BEDROOM semi-detached VICTORIAN VILLA in DARTMOOR NATIONAL PARK, with ample PARKING, 0.5 acres of garde...

Tavistock

5 Bedroom Detached House | Guide Price £550,000

Spacious DETACHED four bedroom home with a ONE BEDROOM ANNEX/SEPARATE ACCOMMODATION, short walk to MOORS, plenty of PARK...

Kirby Estate Agents (Tavistock)

Rowden Wood Road, Pitts Cleave, Tavistock, Devon, PL19 0NU

01822 612010

How much is your home worth?

Use our short form to request a valuation of your property.

Request a Valuation

Mortgage Calculator

Amount Borrowed: £
Total Amount Repayable: £
Total Monthly Payment: £
©2026 The Guild of Property Professionals. All rights reserved. Terms and Conditions | Privacy Policy | Cookie Policy | Complaints Policy | Members Login
The Guild of Property Professionals Trading Address: 121 Park Lane, London W1K 7AG. GPEA Limited. Registered in England & Wales.  Company No: 02819824.  Registered Office Address: 2 St. Stephen's Court, St. Stephen's Road, Bournemouth, Dorset, England, BH2 6LA.  VAT Registration No: 576 8795 61
Book a Property Valuation Update Cookies Preferences