Trinity Lane, Bishophill

Offers Over
£295,000

2 Bedroom Apartment for sale in York

1 2 1
  • Fabulous Two Bedroom Apartment
  • Ample Period Features
  • Moments Away From York City Centre
  • Allocated Car Parking Space
  • Council Tax Band C
  • EPC C76

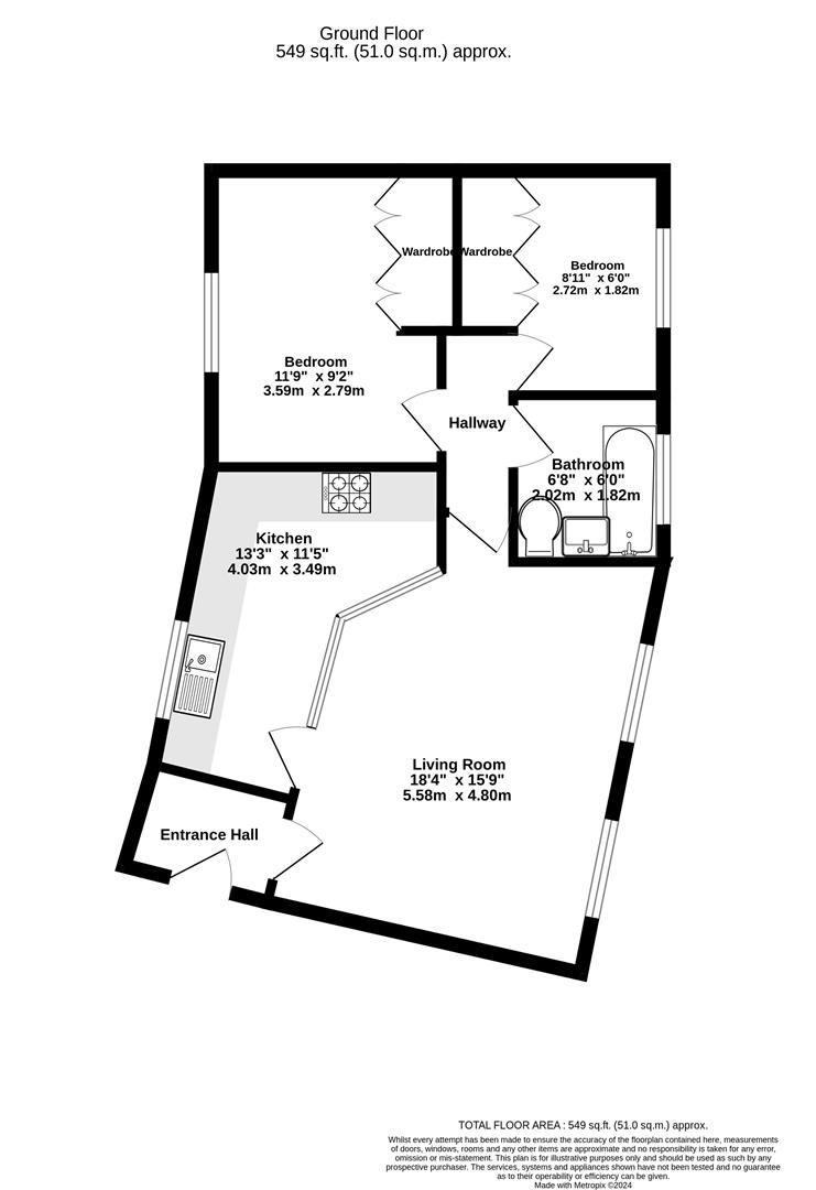
OFFERED WITH NO FORWARD CHAIN! Churchills are delighted to present this spacious two bedroom, first floor apartment within the historic walls of York, centrally located only a few minutes walk from York's many City Centre amenities. Forming part of a charming conversion dating back to 1700's, the property benefits from high ceilings, ample period features, economy 7 electric heating, useful basement storage and provides attractive and well-presented living accommodation.
Entered via a secure communal hallway it fully comprises private entrance hall, lounge/dining room, good sized kitchen with full range of modern units incorporating built in oven and hob, two bedrooms with fitted wardrobes and a three piece bathroom. To the outside is an allocated car parking space plus an external bike store. Nestled on this quiet street and set in this highly regarded Bishophill development an early viewing is recommended to appreciate the size, location and condition of this fabulous apartment.

Communal Hall - Secure entrance door, staircase to all floors.

Entrance Hallway - Entrance door, ceiling coving.

Lounge/Dining Room - Two sash windows to rear, ceiling coving, covered radiator, night storage heater, TV point, power points. Carpet.

Kitchen - Sash window to front, ceiling coving, full range of modern base and wall mounted units, inset sink, tiled splashbacks, plumbing for automatic washing machine, built in electric oven and hob with extractor above, power points, feature windows overlooking the lounge.

Inner Hall -

Bedroom 1 - Two sash windows to front, ceiling cornicing, built-in wardrobes, electric storage heater, power points. Carpet.

Bedroom 2 - Sash window to rear, built-in wardrobe, electric storage heater, power points. Carpet.

Bathroom - Sash window to rear, three piece suite comprising panelled bath with electric shower over, glass shower screen, pedestal wash hand basin, low level WC, part tiled walls, electric wall heater.

Property Ref: 564471_33134465

Share:

Similar Properties

Cleveland Street, Holgate

2 Bedroom Terraced House | Guide Price £295,000

NO ONWARD CHAIN - Churchills Estate Agents are delighted to offer for sale this two double bedroom period mid terrace ho...

Kentmere Drive, York

3 Bedroom Semi-Detached Bungalow | Guide Price £295,000

A 3 BEDROOM SEMI DETACHED BUNGALOW SET IN A QUIET CUL-DE-SAC POSITION WITHIN THIS POPULAR RESIDENTIAL AREA CONVENIENT FO...

St. Pauls Terrace, York

3 Bedroom Terraced House | Guide Price £295,000

NO ONWARD CHAIN - SOUTH FACING REAR COURTYARD - CLOSE TO THE CITY CENTRE - Churchills are delighted to offer for sale th...

Allington Drive, Stockton Lane

3 Bedroom Semi-Detached House | Guide Price £298,000

NO ONWARD CHAIN. Located on this quiet cul-de-sac within Appletree village convenient for York City Centre, the outer ri...

Lavender Grove, York

2 Bedroom Semi-Detached House | £299,995

NO ONWARD CHAIN - CUL-DE-SAC LOCATION - EXTENDED GROUND FLOOR - A fabulous two bedroom semi-detached house in this conve...

Chapel Apartments, Union Terrace

2 Bedroom Apartment | Guide Price £300,000

A STUNNING 2 BEDROOM FIRST FLOOR APARTMENT WITH SECURE PARKING set within this sought after modern development only a fe...

Churchills Estate Agents (York)

Bishopthorpe Road, York, Yorkshire, YO23 1NA

01904 646611

How much is your home worth?

Use our short form to request a valuation of your property.

Request a Valuation

Mortgage Calculator

Amount Borrowed: £
Total Amount Repayable: £
Total Monthly Payment: £
©2025 The Guild of Property Professionals. All rights reserved. Terms and Conditions | Privacy Policy | Cookie Policy | Complaints Policy | Members Login
The Guild of Property Professionals Trading Address: 121 Park Lane, London W1K 7AG. GPEA Limited. Registered in England & Wales.  Company No: 02819824.  Registered Office Address: 2 St. Stephen's Court, St. Stephen's Road, Bournemouth, Dorset, England, BH2 6LA.  VAT Registration No: 576 8795 61
Book a Property Valuation Update Cookies Preferences