Florence House, Eboracum Way, York

Guide Price
£175,000

1 Bedroom Apartment for sale in York

1 1 1
  • NO ONWARD CHAIN
  • Spacious ground Floor Apartment
  • Designated parking and well-maintained communal gardens
  • Located near local shops, supermarkets, and a wide range of amenities
  • Front terrace
  • Generous 22' lounge/dining room
  • Council Tax Band: B
  • EPC: C75

NO ONWARD CHAIN.

A modern and well-proportioned one-bedroom ground-floor apartment with allocated parking, set within a central and highly convenient riverside development close to York's historic city centre. The property is ideally located near local shops, supermarkets, and a wide range of amenities.

Appealing to both owner-occupiers and investors, this spacious apartment is accessed via a secure communal entrance and briefly comprises an entrance hall, a generous 22' lounge/dining room with glazed doors opening onto a private terrace, a fitted kitchen, a double bedroom, and a contemporary three-piece bathroom.

Externally, the property benefits from a front terrace, well-maintained communal gardens, views toward the River Foss, secure storage, and designated parking.

An accompanied viewing is highly recommended to appreciate the location and accommodation on offer.

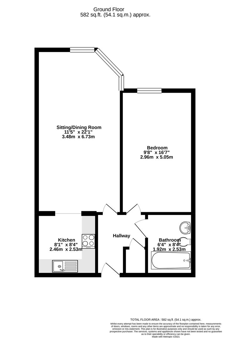
Hallway -

Sitting/Dining Room - 3.48m x 6.73m (11'5" x 22'1") -

Kitchen - 2.46m x 2.54m (8'1" x 8'4") -

Bedroom - 2.95m x 5.05m (9'8" x 16'7") -

Bathroom - 1.93m x 2.54m (6'4" x 8'4") -

Agents Note: - To be able to purchase a property in the United Kingdom all agents have a legal requirement to conduct Identity checks on all customers involved in the sales transaction to fulfil their obligations under Anti Money Laundering regulations. A charge to carry out these checks will apply. Please ask our office for further details.

Property Ref: 34434052

Share:

Similar Properties

Acomb Road, Holgate, York

1 Bedroom Apartment | Offers in region of £175,000

Upgraded to a very high standard throughout, this impressive top floor apartment is situated within this convenient and...

Rome House, Eboracum Way, York

1 Bedroom Apartment | Guide Price £175,000

NO ONWARD CHAIN! A modern second floor apartment with parking, forming part of this central and convenient riverside dev...

Nunnery Lane, York

1 Bedroom Apartment | £175,000

A LARGE 1 BEDROOM GROUND FLOOR APARTMENT WITH PRIVATE COURTYARD SET IN THIS HIGHLY SOUGHT AFTER LOCATION JUST AROUND THE...

Acomb Road, York

1 Bedroom Apartment | Guide Price £180,000

A large one double bedroom apartment with private courtyard, part of this striking period building located close to York...

Market Street, York

1 Bedroom Apartment | Guide Price £180,000

Fabulous holiday let opportunity! This charming one-bedroom top floor apartment is located right in the heart of York Ci...

Brailsford Crescent, York

2 Bedroom Semi-Detached House | £180,000

A 2 BEDROOM SEMI-DETACHED PROPERTY SET IN THIS POPULAR RESIDENTIAL AREA CONVENIENT FOR LOCAL AMENITIES AND WITH EASY ACC...

Churchills Estate Agents (York)

Bishopthorpe Road, York, Yorkshire, YO23 1NA

01904 646611

How much is your home worth?

Use our short form to request a valuation of your property.

Request a Valuation

Mortgage Calculator

Amount Borrowed: £
Total Amount Repayable: £
Total Monthly Payment: £
©2026 The Guild of Property Professionals. All rights reserved. Terms and Conditions | Privacy Policy | Cookie Policy | Complaints Policy | Members Login
The Guild of Property Professionals Trading Address: 121 Park Lane, London W1K 7AG. GPEA Limited. Registered in England & Wales.  Company No: 02819824.  Registered Office Address: 2 St. Stephen's Court, St. Stephen's Road, Bournemouth, Dorset, England, BH2 6LA.  VAT Registration No: 576 8795 61
Book a Property Valuation Update Cookies Preferences