Fordlands Road, Fulford, York

Offers Over
£400,000

3 Bedroom Semi-Detached House for sale in York

2 3 1
  • Extended three bedroom semi-detached house
  • Within Fulford School catchment and close to York city centre, A64 and A19
  • Ready to move into
  • Bright and versatile living accommodation
  • Delightful good sized rear garden with summerhouse
  • Driveway providing off-street parking
  • An accompanied viewing of this lovely property is recommended
  • Council Tax Band: C
  • EPC: D55

An extended three bedroom semi-detached house within Fulford School catchment and close to York city centre, nearby amenities and A64 and A19. This highly impressive property is ready to move into and offers bright and versatile living accommodation as well as a delightful rear garden with summerhouse and a good sized storage shed.
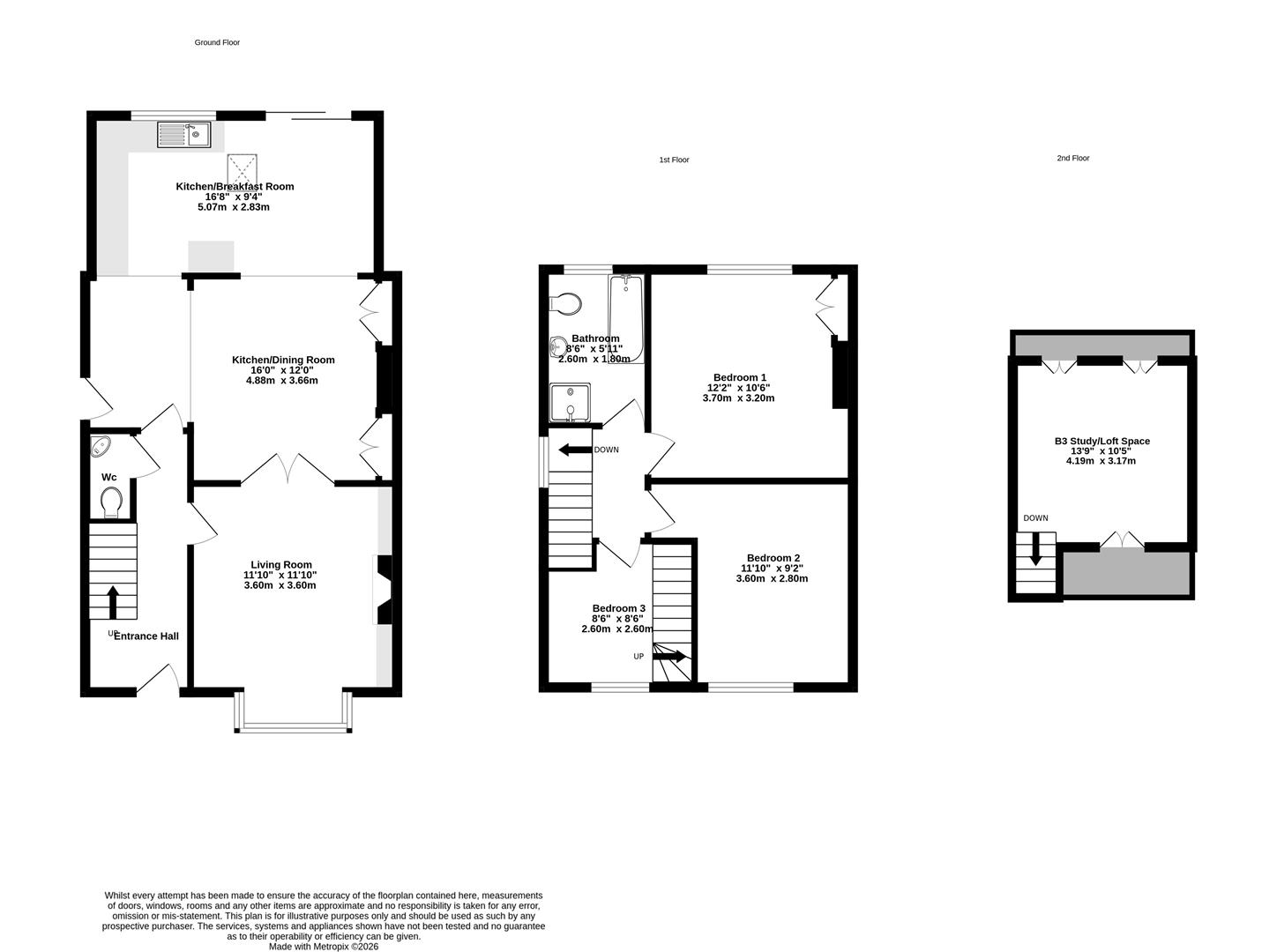
Internally it comprises: entrance hallway, W.C./Cloaks, lounge with bay window, large open plan kitchen/Dining Room with fitted units and separate sitting area, first floor landing, two first floor double bedrooms, four piece house bathroom, third bedroom with study/loft space. To the outside is a front garden and driveway providing off-street car parking and the potential for electric car charging, side access to a good sized landscaped rear garden with summerhouse equipped with power and lighting, and storage shed with power, lighting and water supply, mature trees and shrubbery backing on to an adjacent paddock.
An accompanied viewing of this lovely property is recommended.

Entrance Hallway - uPVC front door, laminate flooring, single panelled radiator, carpet, carpeted stairs to first floor, power points

W.C./Cloaks - Low level W.C., wash hand basin

Living Room - 3.61m x 3.61m (11'10" x 11'10") - uPVC bay window to front, single panelled radiator, open fire with surround, ceiling rose, storage cupboards, carpet, television point, power points, dado rail

Kitchen/Breakfast Room - 5.08m x 2.84m (16'8" x 9'4") - uPVC sliding doors and window to rear, fitted wall and base units with counter top, stainless steel sink and draining board with mixer tap, dual fuel range cooker, oak flooring, door to side, double panelled radiator, power points

Kitchen/Dining Room - 4.88m x 3.66m (16' x 12') - Oak flooring, recessed spotlights, power points, storage cupboards

First Floor Landing - Window to side, carpet, door to:

Bedroom 1 - 3.71m x 3.20m (12'2" x 10'6") - uPVC window to rear, fitted wardrobes, single panelled radiator, carpet, power points

Bedroom 2 - 3.61m x 2.79m (11'10" x 9'2") - uPVC window to front, single panelled radiator, carpet, power points

Bedroom 3/Study - 2.59m x 2.59m (8'6" x 8'6") - uPVC window to front, single panelled radiator, carpet, power points, stairs to loft area

Bathroom - 2.59m x 1.80m (8'6" x 5'11") - Opaque uPVC window to rear, comprising panelled bath, walk-in shower cubicle, pedestal wash basin, low level W.C., part tiled walls, tiled flooring, single panelled radiator

Loft Space - 4.19m x 3.18m (13'9" x 10'5") - Velux windows to front and rear, eaves storage, wall mounted electric radiator, carpet, power points

To The Outside - Front gravelled driveway providing ample off-street parking, potential for electric car charging, gate to rear, landscaped rear garden with patio, gravelled area, lawn, free standing timber framed summer house with power and lighting, timber shed with power, lighting and water supply, hedge and fence boundary

Agents Note: - To be able to purchase a property in the United Kingdom all agents have a legal requirement to conduct Identity checks on all customers involved in the sales transaction to fulfil their obligations under Anti Money Laundering regulations. A charge to carry out these checks will apply. Please ask our office for further details.

Property Ref: 34463402

Share:

Similar Properties

Dalmally Close, York

3 Bedroom Detached House | Guide Price £400,000

A superb, detached house with south-facing rear garden and ready to move in to. Churchills Estate Agents are delighted t...

Darnborough Street, Clementhorpe, York

2 Bedroom Terraced House | £400,000

A superb extended two bedroom forecourted period mid town house set in one of York's most sought after locations close t...

20 Flaxman Croft, Copmanthorpe, York

4 Bedroom Detached House | £399,995

*In need of modernisation* A fantastic opportunity to acquire this four-bedroom detached home situated in the highly sou...

Crombie Avenue, York

5 Bedroom Terraced House | £410,000

A 5 BEDROOM HOUSE WHICH IS USED AS A STUDENT HMO WITH AN INCOME OF ?47,000 PER ANNUM. The property is set in a popular l...

Principal Rise, Dringhouses, York

4 Bedroom Terraced House | Guide Price £415,000

A superb 3 storey 4 bed townhouse located in this popular residential area just off Tadcaster Road and convenient for Yo...

Crombie Avenue, Burtonstone Lane, York

5 Bedroom Semi-Detached House | Guide Price £415,000

A 5 BEDROOM HOUSE WHICH IS USED AS A STUDENT HMO WITH AN INCOME OF ?47,000 PER ANNUM. The property is set in a popular l...

Churchills Estate Agents (York)

Bishopthorpe Road, York, Yorkshire, YO23 1NA

01904 646611

How much is your home worth?

Use our short form to request a valuation of your property.

Request a Valuation

Mortgage Calculator

Amount Borrowed: £
Total Amount Repayable: £
Total Monthly Payment: £
©2026 The Guild of Property Professionals. All rights reserved. Terms and Conditions | Privacy Policy | Cookie Policy | Complaints Policy | Members Login
The Guild of Property Professionals Trading Address: 121 Park Lane, London W1K 7AG. GPEA Limited. Registered in England & Wales.  Company No: 02819824.  Registered Office Address: 2 St. Stephen's Court, St. Stephen's Road, Bournemouth, Dorset, England, BH2 6LA.  VAT Registration No: 576 8795 61
Book a Property Valuation Update Cookies Preferences