Easingwold Road, Stillington

Guide Price
£1,850,000

5 Bedroom Farm for sale in York

3 5 2
  • 5 BEDROOM FARM HOUSE
  • NO ONWARD CHAIN
  • LOCATED BETWEEN EASINGWOLD AND STILLINGTON
  • DELIGHTFUL COUNTRYSIDE VIEWS
  • LARGE DEVELOPMENT POTENTIAL
  • CALF SHED - 90FT X 30fT WITH PLANNING PERMISSION
  • IN TOTAL APPROX 7.55 ACRES

A unique and rare opportunity to purchase a beautiful farmhouse with outbuildings set in the stunning North Yorkshire countryside on the outskirts of the sought after village of Stillington and close to the traditional market town of Easingwold. Stonecote Farm is a much-loved family home built for our client 40 years ago. Nestled in private gardens, set back from the road via a private driveway it enjoys an elevated position with southerly views back towards the historic City of York. The spacious and versatile ground floor accommodation includes, kitchen, breakfast/morning room, dining room, large lounge stretching the length of the home, and four-piece white bathroom suite. Heading upstairs, the grand, galleried landing leads you to the five bedrooms, each benefiting from glorious views. Although ready to move into there is a wealth of potential to extend and reconfigure subject to further planning permission. Can be sold as a whole or three separate plots - discuss with the agent.

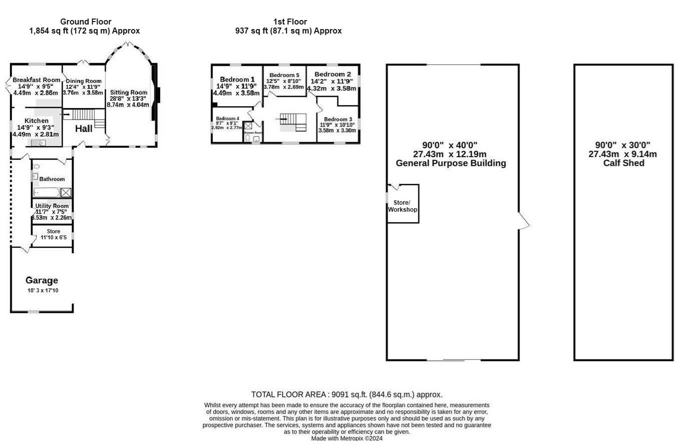
Stonecote Farm is of stone construction under a pantiled roof and provides accommodation as follows:

Six panel entrance door opens to:

Staircase Reception Hall - with exposed beams and a timber turned staircase leading to the first floor.

Sitting Room - Attractive and characterful with a wealth of exposed beams and joists. Central exposed brick fireplace and tiled hearth. To the rear and a slight step up to a stone floor complimented by a curved bay with windows and French Doors leading out, taking full advantage of the superb southerly views over the adjoining paddocks and countryside beyond.

Dining Room - An archway leads through with further exposed beams, timber doors leading out to a pleasant patio.

Breakfast Room - From the dining room a six-panel door leads through with windows to the front and double timber doors lead out to the side lawned garden. To one side an oil-fired AGA on an Inglenook Fireplace with stone hearth and exposed brickwork.

Kitchen - Fitted with a range of cupboard and drawer units complimented by work surfaces. including two bowl sink unit with side drainer and space for a low-level fridge.

Rear Reception Lobby a further archway leads from the kitchen to a glazed panel door accessing the rear.

Family Bathroom - a white four-piece bathroom suite with low suite WC, wash hand basin on a pedestal. Shaped bath, Separate plumbed shower cubical. To one side there is useful shelving.

Spacious first floor gallery landing with rear timber window overlooking the rear courtyard.

Five bedrooms, three with outstanding elevated views over the front paddock, whilst to the rear two further bedrooms overlook with rear courtyard and side garden outlook.

Shower Room with low suite WC, wash hand basin on a pedestal and a plumbed shower cubical.

Outside - There is a lawned garden surrounding the dwelling, with maturing woodland and a patio area to the east and south side.



The farmstead is accessed off Stillington Road and the farm lies on the outskirts of Stillington with private drive access. The gardens and grounds are most notable and a delight. The Calf Barn has been granted planning permission for change of use to a residential dwelling. It may also be possible to seek planning permission to convert the general purpose building into another residential dwelling. The house is surrounded by lawn with a range of mature trees and borders, interspersed with trees and a delightful pond.

The property comprises:

Stonecote Farmhouse 2,700 sq ft , a steel portal framed General Purpose Building extending to 3,600 sq ft, Calf Shed of 2,700 with planning permission and 5.5 acres of agricultural pastureland with frontage to Stillington Road in total 7.55 acres or thereabouts.

Over 6,300 square feet of agricultural buildings: -

General Purpose Building - 90ft x 40ft (27.43 m x 12.19 m) Steel Portal Framed Building with concrete floor, store, one set of double timber sliding doors and one set of rolling doors.

Calf Shed - 90ft x 30ft x (27.43 m x 9.14 m) Planning Application No. ZB23/02457/MBN with permission granted for change of use and associated works to the barn forming a single detached residential dwelling with access and garden area (0.43 of an acre) and adjoining paddock - Granted January 2024


POSTCODE - Y0611LS.
TENURE - Freehold.
COUNCIL TAX BAND - G
Local Authority - Hambleton District Council.

SERVICES - Mains Water, Electricity and Septic Tank Drainage with Oil Fired Central Heating.

LOCATION - The property lies midway between the Market town of Easingwold and the village of Stillington, just within the parish of the latter. The villages together lie north of York and offer a wide range of amenities. Stillington is a well-tended and popular village. It has a thriving community hall, a church and bus service to York. In addition, Stillington has a post office/general store and public houses. The independent schools in York and Ampleforth can be reached within half an hour. York railway station has a mainline railway service offering regular services to to Edinburgh, Manchester and to London Kings Cross in under two hours. Connections to York ring road provide access to the retail shopping parks as well as to the A64, A1M and beyond.

DIRECTIONS - From our central Easingwold office, proceed along Long Street, and turn left onto Stillington Road. Proceed for some distance taking the second turning on the left after G H Brooks Timber where upon Stonecote Farm is positioned on the left-hand side identified by the Churchills 'For Sale' board.

VIEWING - Strictly by prior appointment through the sole selling agents, Churchills of Easingwold Tel: 01347 822800 Email: easingwold@churchillsyork.com.

AGENTS NOTE - Stonecote Farm has an Agricultural Occupancy Clause - As part of the planning permission received by Hambleton District Council when Stonecote Farm was built, there is a restriction as to the occupation of Stonecote Farm to be 'limited to a person solely or last employed in agriculture as defined in Section 336 of the Town & Country Planning Act 1990, or in forestry, or a dependant of such a person residing with him or her, or a widow or widower of such a person'.

Plans, Areas and Measurements - The plans, areas and measurements provided are for guidance and subject to verification with the title deeds. It must be the responsibility of any prospective Purchaser to carry out an adequate inspection and site survey to satisfy themselves where the extent of the boundaries will lie.

Planning Permission Link - https://planning.hambleton.gov.uk/online-applications/simpleSearchResults.do?action=firstPage

Property Ref: 564472_34292041

Share:

Similar Properties

Easingwold Road, Stillington

5 Bedroom Detached House | Guide Price £1,850,000

A unique and rare opportunity to purchase a beautiful farmhouse with outbuildings set in the stunning North Yorkshire co...

The Poplars, Newton On Ouse, York

3 Bedroom Detached House | Guide Price £750,000

A RARE OPPORTUNITY TO PURCHASE THIS FAMILY HOME WITH OUTSTANDING REAR PANORAMIC VIEWS OVER THE RIVER OUSE AND FARMLAND,...

Stillington Road, Sutton-On-The-Forest, York

5 Bedroom Detached House | £750,000

ROCARR IS A RARE OPPORTUNITY TO ACQUIRE AN INDIVIDUALLY DESIGNED 5 BEDROOMED TREBLE-FRONTED DETACHED FAMILY HOME, SET AM...

Churchills Estate Agents (Easingwold)

Chapel Street, Easingwold, North Yorkshire, YO61 3AE

01347 822800

How much is your home worth?

Use our short form to request a valuation of your property.

Request a Valuation

Mortgage Calculator

Amount Borrowed: £
Total Amount Repayable: £
Total Monthly Payment: £
©2025 The Guild of Property Professionals. All rights reserved. Terms and Conditions | Privacy Policy | Cookie Policy | Complaints Policy | Members Login
The Guild of Property Professionals Trading Address: 121 Park Lane, London W1K 7AG. GPEA Limited. Registered in England & Wales.  Company No: 02819824.  Registered Office Address: 2 St. Stephen's Court, St. Stephen's Road, Bournemouth, Dorset, England, BH2 6LA.  VAT Registration No: 576 8795 61
Book a Property Valuation Update Cookies Preferences