Haggwood Barn, Broad Highway, Wheldrake, York

£850,000

4 Bedroom Barn Conversion for sale in York

2 4 2
  • STUNNING 4 BEDROOM BARN CONVERSION SET IN LARGE GARDENS
  • CLOSE TO WHELDRAKE WOODS YET WITH ACCESS TO VILLAGE AMENITIES
  • WITHIN FULFORD SCHOOL CATCHMENT AREA
  • Bright and Spacious Living Accommodation with Lots of Period Charm
  • Double Brick Garage
  • Fabulous Lawned Rear Gardens with Covered Brick Store
  • Internal Viewing of this Superb Family Home is Strongly Recommended
  • Council Tax Band: E
  • EPC: D61

A STUNNING 4 BEDROOM BARN CONVERSION SET IN LARGE GARDENS WITHIN A SMALL DEVELOPMENT CLOSE TO WHELDRAKE WOODS YET WITH ACCESS TO VILLAGE AMENITIES AND WITHIN FULFORD SCHOOL CATCHMENT AREA.
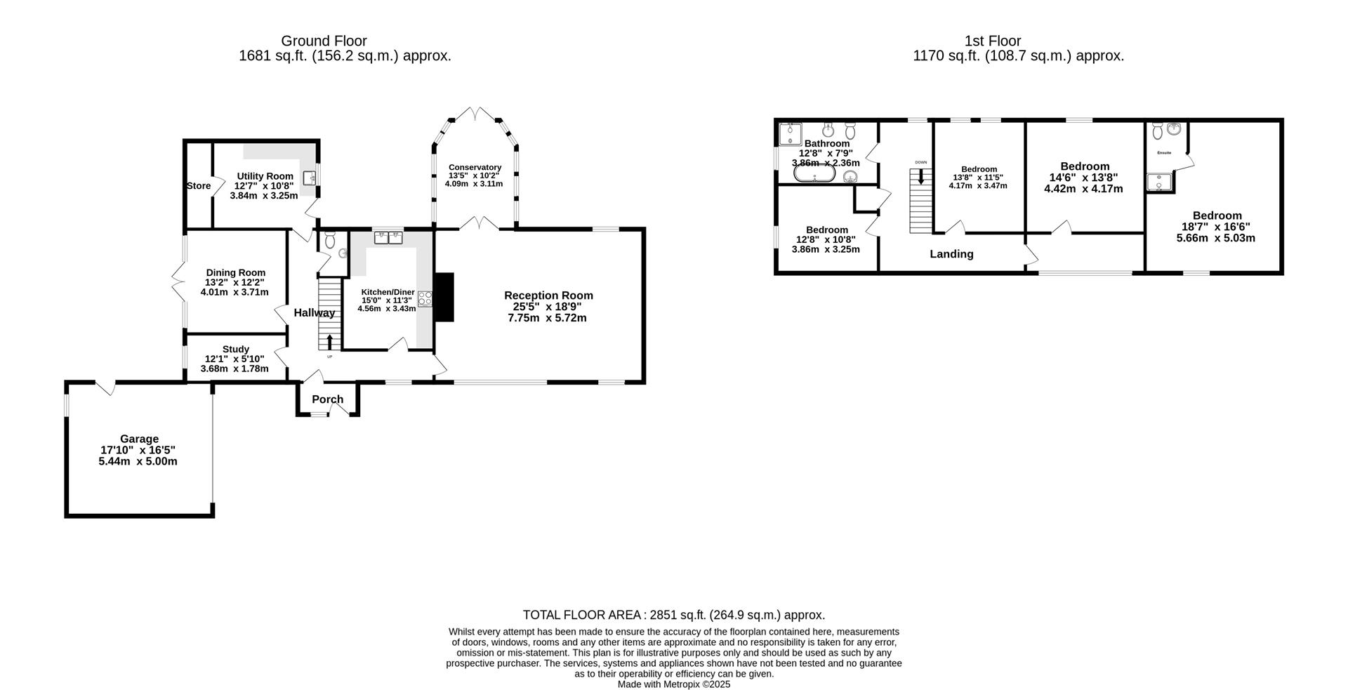
The property provides bright and spacious living accommodation with lots of period charm including many original beams and comprises entrance porch, hallway, cloaks/w.c. large Drawing Room with feature fire and stove and double doors to a conservatory, separate dining room, study, breakfast kitchen with fitted units, large utility room, landing, master bedroom with en suite shower room/w.c., 3 further double bedrooms, family bathroom with freestanding bath and separate shower. Front garden with long driveway leading to a double brick garage. Fabulous lawned rear gardens with covered brick store.
An internal viewing of this superb family home is strongly recommended.

Agents Notes:
To be able to purchase a property in the United Kingdom all agents have a legal requirement to conduct Identity checks on all customers involved in the transaction to fulfil their obligations under Anti Money Laundering regulations. A charge to carry out these checks will apply. Please ask our branch for further details.

Porch - Entrance door. Door to

Hallway - Stairs to first floor, window to front. Doors leading to

Cloaks/W.C - Wash hand basin, w.c

Drawing Room - 7.75m x 5.72m (25'5" x 18'9") - Fabulous large reception room with windows to front and rear, ceiling beams, feature fireplace with cast iron stove. Double doors to

Conservatory - 4.09m x 3.10m (13'5" x 10'2") - A lovely additional room with views across the rear garden

Study - 3.68m x 1.78m (12'1" x 5'10") - Window to side

Dining Room - 4.01m x 3.71m (13'2" x 12'2") - Double doors leading to a small private courtyard

Breakfast Kitchen - 4.57m x 3.43m (15' x 11'3") - Well fitted traditional kitchen incorporating base and wall units, belfast sink unit, built in oven and hob with extractor above, solid work surfaces, window to rear

Utility Room - 3.84m x 3.25m (12'7" x 10'8") - A large utility room with feature beams, window to side, large built in storage and door to garden

Landing - Arched window to front and rear, balustrade. doors to

Bedroom 1 - 5.66m x 5.03m (18'7" x 16'6") - Bright and spacious master bedoom with beams and windows to 2 aspects. Door to

En Suite - Walk in shower, wash hand basin and w.c.

Bedroom 2 - 4.42m x 4.17m (14'6" x 13'8") - Window to rear

Bedroom 3 - 4.17m x 3.48m (13'8" x 11'5") - Two windows to rear

Bedroom 4 - 3.86m x 3.25m (12'8" x 10'8") - Window to side

Bathroom - 3.86m x 2.36m (12'8" x 7'9") - Large bathroom with freestanding bath, walk in shower cubicle, wash hand basin, bidet and w.c., window to side

Outside - Long front garden set to lawn with well stocked flower borders and driveway giving ample parking leading to a brick double garage (17'10" x 16'5"). Large private rear garden to to lawn with well stocked flower borders, patio areas and open brick sore.

Agents Notes - To be able to purchase a property in the United Kingdom all agents have a legal requirement to conduct Identity checks on all customers involved in the sales transaction to fulfil their obligations under Anti Money Laundering regulations. A charge to carry out these checks will apply. Please ask our office for further details

Property Ref: 34375516

Share:

Similar Properties

York Road, Haxby

4 Bedroom Detached House | Guide Price £760,000

A STUNNING EXECUTIVE 4 BEDROOM DETACHED HOUSE SET IN THIS SOUGHT AFTER LOCATION CLOSE TO HAXBY'S MANY AMENITIES AND WITH...

Harmony House, Leeds Road, Selby

4 Bedroom Detached House | Guide Price £750,000

A substantial family sized home (over 3000 sq ft) with indoor swimming pool and spa. Located on the very desirable Leeds...

Main Street, Thorganby, York

4 Bedroom Detached House | Guide Price £725,000

A FABULOUS 4 BEDROOM EXECUTIVE DETACHED HOUSE SET IN THIS POPULAR VILLAGE TO THE SOUTH OF YORK WITHIN FULFORD SCHOOL CAT...

Gillcroft, Tadcaster Road

6 Bedroom Semi-Detached House | Guide Price £950,000

Overlooking The Knavesmire, Gillcroft is a substantial period property on York's prestigious Tadcaster Road.We believe t...

The Old Post Office, Wheldrake, York

6 Bedroom Detached House | £950,000

A FABULOUS LARGE PERIOD GRADE 11 LISTED 5/6 BEDROOM GEORGIAN HOUSE SET IN LARGE GARDENS ON THE MAIN STREET OF THIS HIGHL...

The Old Manor, Leppington

6 Bedroom Detached House | Guide Price £1,250,000

ONE OF THE AREA'S MOST STUNNING LARGE MODERN CONTEMPORARY FAMILY HOMES WITH OVER 6300 SQ FT OF LIVING SPACE SET IN APPRO...

Churchills Estate Agents (York)

Bishopthorpe Road, York, Yorkshire, YO23 1NA

01904 646611

How much is your home worth?

Use our short form to request a valuation of your property.

Request a Valuation

Mortgage Calculator

Amount Borrowed: £
Total Amount Repayable: £
Total Monthly Payment: £
©2026 The Guild of Property Professionals. All rights reserved. Terms and Conditions | Privacy Policy | Cookie Policy | Complaints Policy | Members Login
The Guild of Property Professionals Trading Address: 121 Park Lane, London W1K 7AG. GPEA Limited. Registered in England & Wales.  Company No: 02819824.  Registered Office Address: 2 St. Stephen's Court, St. Stephen's Road, Bournemouth, Dorset, England, BH2 6LA.  VAT Registration No: 576 8795 61
Book a Property Valuation Update Cookies Preferences