Market Street, York

Guide Price
£180,000
SSTC
This property listing is now SSTC

1 Bedroom Apartment for sale in York

1 1 1
  • No Onward Chain
  • Charming 1 Bedroom Top Floor Apartment
  • Located in Heart of York City Centre
  • Abundance of Shop, Cafes and Restuarants on Doorstep
  • Ideal Property for First Time Buyers or Investors
  • Holiday Let Opportunity
  • Council Tax Band A
  • EPC D

Fabulous holiday let opportunity! This charming one-bedroom top floor apartment is located right in the heart of York City Centre and is sold with no onward chain. With an abundance of shops, cafes & restaurants on your doorstep, this property is a rare opportunity for a savvy first time buyer or investor looking for a great return.

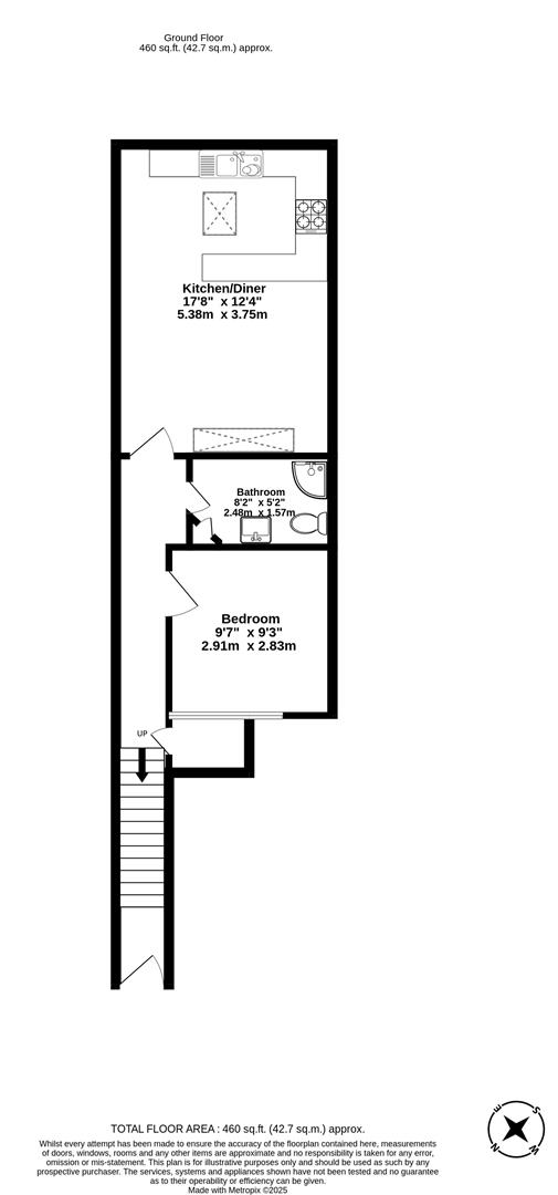
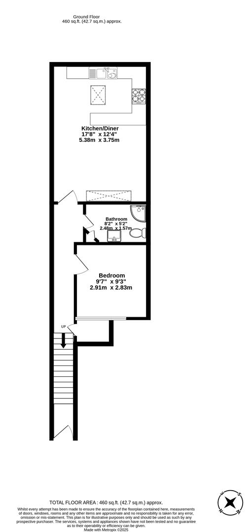
As you enter the apartment, you are greeted with the staircase that takes you to the landing. There is a useful storage unit to the top of the stairs that houses the boiler, and a good size double bedroom. The bathroom features a three piece suite with W.C, shower cubicle & hand basin, whilst the spacious open plan living area is flooded with natural light via Velux windows. Boasting fitted wall & base unit storage, breakfast bar & fitted appliances such as oven, hobs & extractor hood, there is also ample space for a fridge/freezer and undercounter washer/dryer.

A must see.

Agents Notes:
To be able to purchase a property in the United Kingdom all agents have a legal requirement to conduct Identity checks on all customers involved in the transaction to fulfil their obligations under Anti Money Laundering regulations. A charge to carry out these checks will apply. Please ask our branch for further details.

Kitchen/Diner - 5.38m x 3.75m (17'7" x 12'3") -

Bedroom - 2.91m x 2.83m (9'6" x 9'3") -

Bathroom - 2.48m x 1.57m (8'1" x 5'1") -

Property Ref: 34256027

Share:

Similar Properties

Brailsford Crescent, York

2 Bedroom Semi-Detached House | £180,000

A 2 BEDROOM SEMI-DETACHED PROPERTY SET IN THIS POPULAR RESIDENTIAL AREA CONVENIENT FOR LOCAL AMENITIES AND WITH EASY ACC...

Acomb Road, York

1 Bedroom Apartment | Guide Price £180,000

A large one double bedroom apartment with private courtyard, part of this striking period building located close to York...

Nunnery Lane, York

1 Bedroom Apartment | £175,000

A LARGE 1 BEDROOM GROUND FLOOR APARTMENT WITH PRIVATE COURTYARD SET IN THIS HIGHLY SOUGHT AFTER LOCATION JUST AROUND THE...

High Lane, Sutton On Derwent

2 Bedroom Park Home | £184,995

'The Victory Franklin' has everything you would want from a lodge and more. Inspired by the sunset tones of Morocco and...

George Cayley Drive, York

2 Bedroom Apartment | £185,000

SUPERB TWO BEDROOM GROUND FLOOR APARTMENT WITH ITS OWN PRIVATE GARDEN & ALLOCATED PARKING. Churchills are delighted to o...

Dairy Farm Court, Main Street, Fulford,

2 Bedroom Apartment | Guide Price £185,000

IMPRESSIVE FIRST FLOOR APARTMENT JUST OFF MAIN STREET FULFORD Churchills are pleased to offer to the market this bright...

Churchills Estate Agents (York)

Bishopthorpe Road, York, Yorkshire, YO23 1NA

01904 646611

How much is your home worth?

Use our short form to request a valuation of your property.

Request a Valuation

Mortgage Calculator

Amount Borrowed: £
Total Amount Repayable: £
Total Monthly Payment: £
©2026 The Guild of Property Professionals. All rights reserved. Terms and Conditions | Privacy Policy | Cookie Policy | Complaints Policy | Members Login
The Guild of Property Professionals Trading Address: 121 Park Lane, London W1K 7AG. GPEA Limited. Registered in England & Wales.  Company No: 02819824.  Registered Office Address: 2 St. Stephen's Court, St. Stephen's Road, Bournemouth, Dorset, England, BH2 6LA.  VAT Registration No: 576 8795 61
Book a Property Valuation Update Cookies Preferences