Westwood Terrace, York

Guide Price
£395,000
SSTC
This property listing is now SSTC

3 Bedroom Terraced House for sale in York

2 3 1
  • Three Bedroom Three Storey Townhouse
  • Extended and Improved
  • In One of South Banks Popular Streets
  • Close to Sought After Schools and Excellent Amenities
  • Versatile and Sizeable Living Space
  • Council Tax Band B
  • EPC C

An extended and greatly improved three bedroom three storey townhouse in one of South Bank's most popular streets close to sought after schools, excellent amenities and open space.
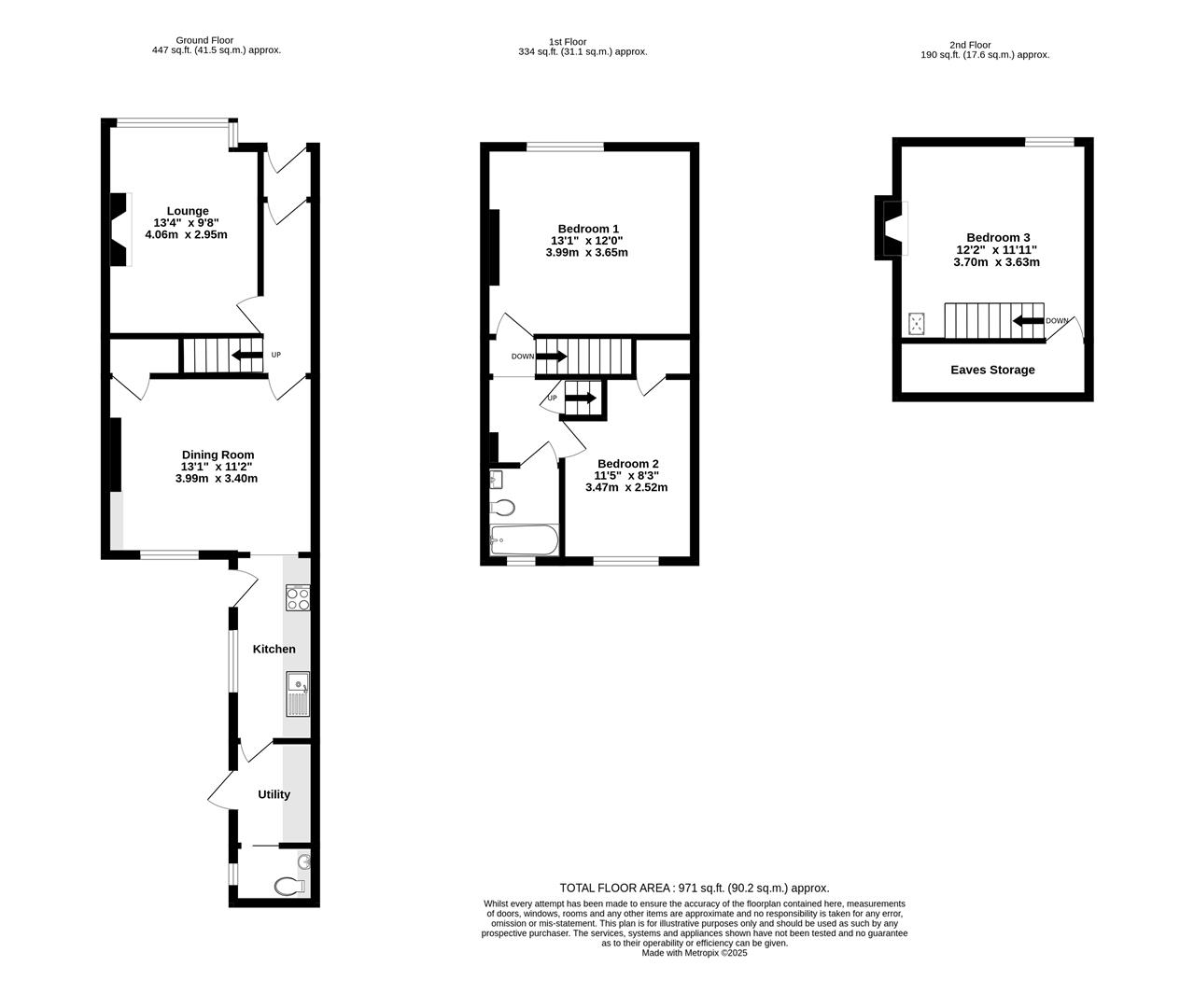
Originally built over three floors and therefore providing versatile and sizeable rooms, the property also benefits from uPVC double glazing, gas central heating and recently upgraded kitchen and bathroom. The bright and spacious living accommodation comprises; entrance vestibule with original tiling, entrance hallway, 13ft lounge, dining room, fitted kitchen, utility room, WC/cloaks, first floor landing, two first floor double bedrooms, three piece house bathroom, second floor double bedroom with large eaves storage.
To the outside is a landscaped rear courtyard garden with sitting areas and gate to service alleyway. The property also benefits from front and rear solar panels (reducing electricity costs) and a Hive thermostat.
An accompanied of this highly impressive property is strongly recommended.

Entrance Vestibule - Composite entrance door, tiled flooring, glazed panel door to;

Entrance Hallway - Laminate flooring, radiator, carpeted stairs to first floor

Lounge - 4.06m x 2.95m (13'4" x 9'8") - uPVC bay window to front, period fire with surround, carpeted flooring (to note: under the carpet are finished floorboards), TV and power points.

Dining Room - 3.99m x 3.40m (13'1" x 11'2") - uPVC window to rear, understairs cupboard, laminate flooring, double panelled radiator, power points

Kitchen - Built-in wood effect cream Shaker style wall and base units with quartz countertop, sink with mixer tap, column radiator, built-in fridge and freezer, oven and hob, integrated dishwasher, recessed spotlights, window to side, door to courtyard, laminate flooring, power points

Utility - Fitted units with Oak countertop, space and plumbing for appliances, recessed spotlights, power points, glazed door to side, laminate flooring - includes an 'appliance garage' where the cupboards lift up to make it a useable worktop, power point

Wc/Cloaks - Low level WC, wash hand basin, opaque window to side, laminate flooring, extractor fan, towel radiator

First Floor Landing - Carpeted flooring, stairs to second floor

Bedroom 1 - 3.99m x 3.66m (13'1" x 12') - uPVC window to front, carpeted flooring (to note: under the carpet are finished floorboards), double panelled radiator, power points

Bedroom 2 - 3.48m x 2.51m (11'5" x 8'3") - uPVC window to rear, carpeted flooring (to note: under the carpet are finished floorboards), double panelled radiator, power points, large storage cupboard

Bathroom - Opaque window to rear, panelled bath with shower head over, low level WC, wash hand basin, laminate flooring, towel radiator, recessed spotlights, extractor fan

Second Floor Bedroom - 3.71m x 3.63m (12'2" x 11'11") - uPVC window to front, period fireplace, exposed timber floorboards, large eaves storage.. This room is original to the house and not a conversion.

Outside - Rear paved courtyard garden with access gate and outside tap

Agents Notes - To be able to purchase a property in the United Kingdom all agents have a legal requirement to conduct Identity checks on all customers involved in the transaction to fulfil their obligations under Anti Money Laundering regulations. A charge to carry out these checks will apply. Please ask our branch for further details.

Property Ref: 34537439

Share:

Similar Properties

Thorntree Grove, York

3 Bedroom Detached House | £395,000

An impressive 3 bedroom detached house located at the end of this residential cul-de-sac off Water Lane close to Clifton...

The Crescent, Heslington. York

3 Bedroom Semi-Detached House | Guide Price £390,000

NO FORWARD CHAIN! HIGHLY DESIRABLE VILLAGE LOCATION! Churchills are delighted to have the opportunity to offer to the ma...

Nunnery Lane, York

1 Bedroom Detached House | Guide Price £385,000

Great opportunity to purchase this corner freehold property consisting of a ground floor lock up shop unit and a beautif...

20 Flaxman Croft, Copmanthorpe, York

4 Bedroom Detached House | £399,995

*In need of modernisation* A fantastic opportunity to acquire this four-bedroom detached home situated in the highly sou...

Fordlands Road, Fulford, York

3 Bedroom Semi-Detached House | Offers Over £400,000

An extended three bedroom semi-detached house within Fulford School catchment and close to York city centre, nearby amen...

Dalmally Close, York

3 Bedroom Detached House | Guide Price £400,000

A superb, detached house with south-facing rear garden and ready to move in to. Churchills Estate Agents are delighted t...

Churchills Estate Agents (York)

Bishopthorpe Road, York, Yorkshire, YO23 1NA

01904 646611

How much is your home worth?

Use our short form to request a valuation of your property.

Request a Valuation

Mortgage Calculator

Amount Borrowed: £
Total Amount Repayable: £
Total Monthly Payment: £
©2026 The Guild of Property Professionals. All rights reserved. Terms and Conditions | Privacy Policy | Cookie Policy | Complaints Policy | Members Login
The Guild of Property Professionals Trading Address: 121 Park Lane, London W1K 7AG. GPEA Limited. Registered in England & Wales.  Company No: 02819824.  Registered Office Address: 2 St. Stephen's Court, St. Stephen's Road, Bournemouth, Dorset, England, BH2 6LA.  VAT Registration No: 576 8795 61
Book a Property Valuation Update Cookies Preferences