Lister Way, York

£385,000

3 Bedroom Semi-Detached House for sale in York

1 3 1
  • Impressive 3 Bedroom Semi-Detached Property
  • Good Sized Plot
  • 23 ft Lounge/Dining Room
  • Recently fitted kitchen and appliances
  • Located in a Residential Cul-De-Sac
  • Close to York City Centre, Railway Station
  • Two south-facing gardens
  • Well Cared for Property
  • Council Tax Band: C
  • EPC: D68

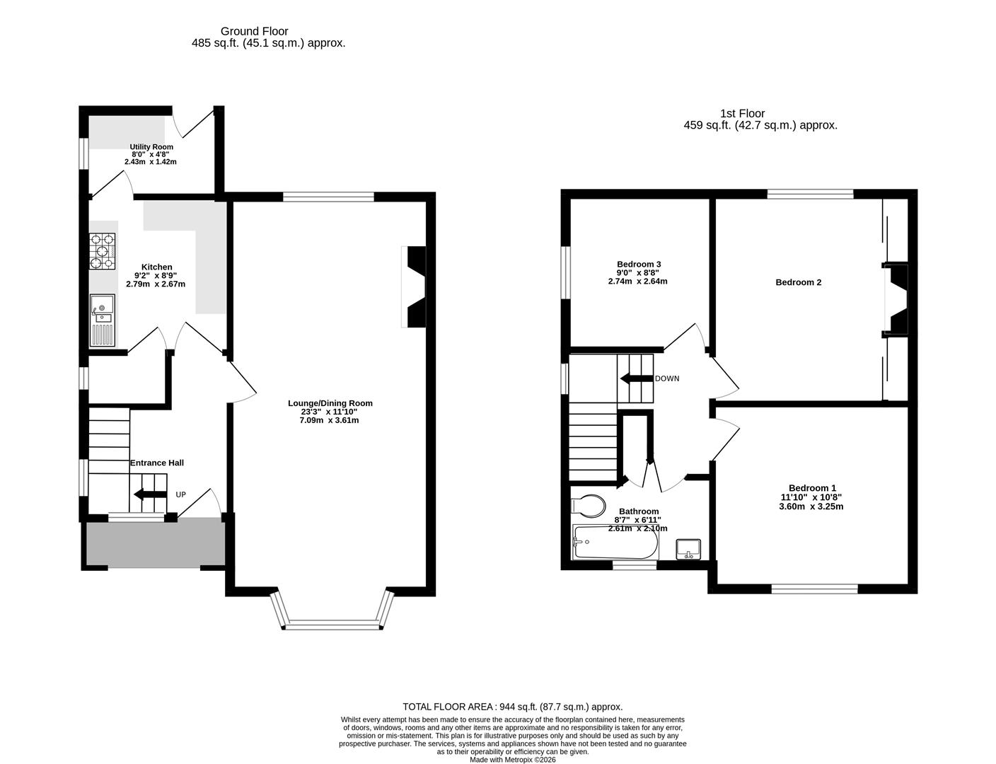
An impressive three bedroom semi-detached house on a very good sized plot located on this residential cul-de-sac close to York city centre, railway centre and Clifton Moor retail park. Also benefitting from nearby schools, sports clubs as well as useful amenities, this well cared for property also benefits from uPVC double glazing and gas central heating. Suitable for a range of buyers, the property comprises; entrance hallway, 23ft lounge/dining room, recently fitted kitchen with pantry, utility room, first floor landing, three first floor double bedrooms and a three piece house bathroom.
To the outside is a generous driveway providing ample off street parking, south facing side lawned garden with single garage, patio and brick store and an enclosed rear garden with patio and artificial turf which is also south facing.
An accompanied viewing of this property is strongly recommended.

Entrance Hallway - uPVC entrance door, laminate flooring, windows to front and side, door to;

Lounge/Dining Room - uPVC bay window to front, fire with surround, two double panelled radiators, laminate flooring, TV and power points, uPVC window to rear

Kitchen - Recently fitted wall and base units with Oak countertop, five ring gas hob, one and half sink with draining board and mixer tap, uPVC window to side, space for appliances, pantry cupboard, vinyl flooring, power points. The kitchen and appliances are less than a year old.

Utility Room - uPVC glazed door to rear garden, wall mounted gas combination boiler, uPVC window to side, plumbing for washing machine, power points

First Floor Landing - uPVC window to side, carpeted flooring, loft access

Bedroom 1 - uPVC window to rear, fitted wardrobes, period fire, laminate flooring, double panelled radiator, power points

Bedroom 2 - uPVC window to front, carpeted flooring, double panelled radiator, power points

Bedroom 3 - uPVC window to side, laminate flooring, double panelled radiator, power points

Bathroom - Opaque uPVC window to front, panelled bath, wash hand basin, low level WC, storage cupboard, radiator

Outside - Front driveway for at least 7 vehicles and the potential for electric car charging, detached single garage with up and over door and power and lighting, side lawn with patio, timber fence and hedge boundary, rear enclosed garden with artificial turf, flower borders, timber fence boundary and paved patio, outside tap. Both garden areas are south facing.

Agents Notes - To be able to purchase a property in the United Kingdom all agents have a legal requirement to conduct Identity checks on all customers involved in the transaction to fulfil their obligations under Anti Money Laundering regulations. A charge to carry out these checks will apply. Please ask our branch for further details

Property Ref: 34450266

Share:

Similar Properties

Nunnery Lane, York

1 Bedroom Detached House | Guide Price £385,000

Great opportunity to purchase this corner freehold property consisting of a ground floor lock up shop unit and a beautif...

Byland Avenue

3 Bedroom Semi-Detached House | Guide Price £385,000

Situated on a good-sized plot at the end of this residential street, Churchills Estate Agents are delighted to offer for...

St Chads Wharf, York

2 Bedroom Apartment | Guide Price £375,000

An impressive two bedroom, two bathroom second floor apartment part of this highly regarded and sought after development...

The Crescent, Heslington. York

3 Bedroom Semi-Detached House | Guide Price £390,000

NO FORWARD CHAIN! HIGHLY DESIRABLE VILLAGE LOCATION! Churchills are delighted to have the opportunity to offer to the ma...

Darnborough Street, York

2 Bedroom Terraced House | Guide Price £395,000

NO ONWARD CHAIN!A characterful period two bedroom terrace house with front forecourt, moments from Bishopthorpe Road sho...

Moorfield Drive, Wilberfoss, York

4 Bedroom Detached House | Guide Price £395,000

A SPACIOUS 4 BEDROOM DETACHED HOUSE IN A QUIET CUL-DE-SAC WITHIN THIS POPULAR VILLAGE, OFFERING EASY ACCESS TO YORK AND...

Churchills Estate Agents (York)

Bishopthorpe Road, York, Yorkshire, YO23 1NA

01904 646611

How much is your home worth?

Use our short form to request a valuation of your property.

Request a Valuation

Mortgage Calculator

Amount Borrowed: £
Total Amount Repayable: £
Total Monthly Payment: £
©2026 The Guild of Property Professionals. All rights reserved. Terms and Conditions | Privacy Policy | Cookie Policy | Complaints Policy | Members Login
The Guild of Property Professionals Trading Address: 121 Park Lane, London W1K 7AG. GPEA Limited. Registered in England & Wales.  Company No: 02819824.  Registered Office Address: 2 St. Stephen's Court, St. Stephen's Road, Bournemouth, Dorset, England, BH2 6LA.  VAT Registration No: 576 8795 61
Book a Property Valuation Update Cookies Preferences