Upper Newborough Street, York

£215,000
SSTC
This property listing is now SSTC

2 Bedroom Terraced House for sale in York

1 2 1
  • Spacious 2-bedroom period townhouse
  • Popular location just off Bootham
  • Gas central heating
  • uPVC double glazing
  • Walled rear courtyard
  • Council Tax Band: B
  • EPC: D62

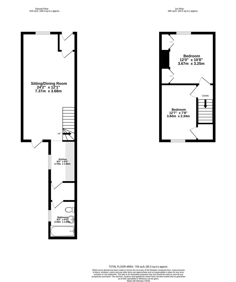
A SPACIOUS 2 BEDROOM PERIOD TOWN HOUSE IN THIS POPULAR LOCATION JUST OFF BOOTHAM WITHIN A SHORT WALK IN TO THE CITY CENTRE. The property which has the benefit of gas central heating and upvc double glazing comprises entrance porch, large lounge/dining room, kitchen, rear lobby and bathroom/w.c., landing, 2 double sized bedrooms. Walled rear courtyard.

Entrance Vestibule - Entrance door. Door to

Lounge/Dining Room - 7.37m x 3.68m (24'2 x 12'1) - Upvc double glazed window to front, recessed firebreast, tv point, power points, dining area with french door to rear courtyard, stairs to first floor and door to kitchen. Laminate wood flooring

Kitchen - 2.74m x 1.65m (9' x 5'5) - Kitchen is fitted (although dated) and comprises base and wall units, work surfaces, uPVC double glazed window to side, electric cooker point, power points. Door to

Rear Lobby - Door to

Bathroom - 2.44m x 1.65m (8' x 5'5) - Suite in white comprising panelled bath, wash hand basin, w.c., upvc double glazed window to side, 1/2 tiled walls, single panelled radiator

Landing - Doors to

Bedroom 1 - 3.66m inc wardrobe x 3.25m (12 inc wardrobe x 10'8 - Upvc double glazed window to front, built in cupboard, single panelled radiator, power points

Bedroom 2 - 3.84m x 2.29m (12'7 x 7'6) - Upvc double glazed window to rear, built in cupboard, single panelled radiator, power points.

Outside - Walled rear courtyard with gate giving access to rear

Agents Notes: - To be able to purchase a property in the United Kingdom all agents have a legal requirement to conduct Identity checks on all customers involved in the sales transaction to fulfil their obligations under Anti Money Laundering regulations. A charge to carry out these checks will apply. Please ask our office for further details.

Property Ref: 34490758

Share:

Similar Properties

Burlington Avenue, York

2 Bedroom Semi-Detached House | Guide Price £215,000

NO ONWARD CHAIN!. A two bedroom extended end of terrace house on a decent plot located on this residential street off Me...

Fulford Place, Hospital Fields Road

2 Bedroom Apartment | £215,000

A LARGE 2 BEDROOM SECOND FLOOR APARTMENT SET IN THIS SOUGHT AFTER LOCATION WITHIN WALKING DISTANCE FROM THE CITY CENTRE....

Principal Rise, Dringhouses, York

2 Bedroom Apartment | £210,000

SUPERB TWO DOUBLE BEDROOM, TWO BATHROOM, GROUND FLOOR APARTMENT! Conveniently located for easy access in to York City Ce...

Lindsey Avenue, York

3 Bedroom Terraced House | Guide Price £220,000

Offered with no onward chain, this well-proportioned three-bedroom end of terrace home presents a fantastic opportunity...

York Road, Acomb, York

2 Bedroom Apartment | £220,000

A modern ground floor apartment in central Acomb situated in a convenient position within a popular residential developm...

Horner Street

2 Bedroom Terraced House | £224,950

NO FORWARD CHAIN! CHARMING 2 BED MID TERRACE PROPERTY. We as Agents are delighted to have the opportunity to present to...

Churchills Estate Agents (York)

Bishopthorpe Road, York, Yorkshire, YO23 1NA

01904 646611

How much is your home worth?

Use our short form to request a valuation of your property.

Request a Valuation

Mortgage Calculator

Amount Borrowed: £
Total Amount Repayable: £
Total Monthly Payment: £
©2026 The Guild of Property Professionals. All rights reserved. Terms and Conditions | Privacy Policy | Cookie Policy | Complaints Policy | Members Login
The Guild of Property Professionals Trading Address: 121 Park Lane, London W1K 7AG. GPEA Limited. Registered in England & Wales.  Company No: 02819824.  Registered Office Address: 2 St. Stephen's Court, St. Stephen's Road, Bournemouth, Dorset, England, BH2 6LA.  VAT Registration No: 576 8795 61
Book a Property Valuation Update Cookies Preferences