Brecon Road, Builth Wells, LD2

£595pcm

2 Bedroom Apartment for rent in Builth Wells

1 2 1
  • Two bedroom apartment in a character building
  • Gas central heating and double glazing
  • Off-road parking
  • Close to town centre location
  • Council tax band 'B'
  • Energy performance certificate - C
  • Deposit - £650
  • Available March 2026
  • Recently Decorated!

The property has the benefit of an off-road parking space at the rear of the property, which leads to the communal entrance. A buzzer entry system gives access to the building and the apartment itself is located on the first floor.

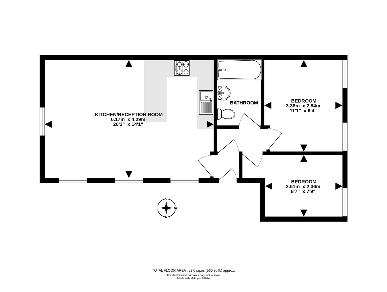
The front door of the apartment gives access into an entrance hallway, which in turn leads into the accommodation. Firstly, there is a good sized kitchen/reception room, with modern fitted kitchen, and large space for dining area and living room. The entrance hallway also gives access into the two bedrooms, and the modern bathroom with shower over the bath.

Available beginning of March 2026!

Council Tax Band 'B'

Rent - £595.00 per calendar month

Deposit required - £650.00

PLEASE NOTE: ALL CONTRACT HOLDERS ARE REQUIRED TO COMPLETE AN APPLICATION FORM PROVIDING REFERENCES. WE WILL ALSO REQUIRE INFORMATION TO CARRY OUT A CREDIT CHECK WHICH IS PROVIDED BY A THIRD PARTY.

Telephone & Broadband: Telephone- subject to BT transfer regulations. According to comparethemarket.com the property has a broadband speed of: 32.50 Mbps (average speed of Mbps).

Please note you should always confirm this by speaking to the specific provider you would like to use. This is for guidance only.

The property is situated centrally, within the market town Builth Wells, which has a range of amenities and facilities in a thriving high street as well as primary and secondary schools, a cinema, leisure centre, cricket, rugby, football and golf clubs. It is also home to the internationally famous Royal Welsh Show which is the largest agricultural show in Europe. The town has good transport links, is on a bus route between Cardiff and North Wales and is also served by Builth Road Railway Station on the Heart of Wales Line. Situated within the Wye Valley, an area of natural beauty and close to the Elan Valley at Rhayader, it is well-known as a walker’s paradise whilst the Red Kite feeding centre at Gigrin Farm offers a truly unique experience to see the rare and magnificent birds on a daily basis.

Property Ref: 29749723

Share:

Similar Properties

Llangammarch Wells, LD4

5 Bedroom House | £800pcm

A rare opportunity to rent a spacious 5-bed home and generous garden - full of charm, flexibility, and space. Perfectly...

Mill Stream Close, Llanddewi, Llandrindod Wells, LD1

4 Bedroom Detached House | £1,250pcm

A spacious and well-presented four-bedroom detached home, ideally suited to modern family living. Offering generous rece...

High Street, Builth Wells, LD2

Shop | £5,000pa

Centrally located ground floor shop premises in the heart of the bustling market town of Builth Wells, benefiting from s...

James Dean The Estate Agents Builth (Builth Wells)

Builth Wells, Powys, LD2 3AB

01982 552 537

How much is your home worth?

Use our short form to request a valuation of your property.

Request a Valuation
©2026 The Guild of Property Professionals. All rights reserved. Terms and Conditions | Privacy Policy | Cookie Policy | Complaints Policy | Members Login
The Guild of Property Professionals Trading Address: 121 Park Lane, London W1K 7AG. GPEA Limited. Registered in England & Wales.  Company No: 02819824.  Registered Office Address: 2 St. Stephen's Court, St. Stephen's Road, Bournemouth, Dorset, England, BH2 6LA.  VAT Registration No: 576 8795 61
Book a Property Valuation Update Cookies Preferences