Orchard Close, Sandford, EX17

£1,400pcm

3 Bedroom Not Specified for rent in Crediton

2 3 2
  • Modern, very well presented property
  • Very popular village location
  • Versatile property layout
  • Three bedrooms, one with ensuite and walk in wardrobe
  • Ground floor bathroom
  • Partially furnished

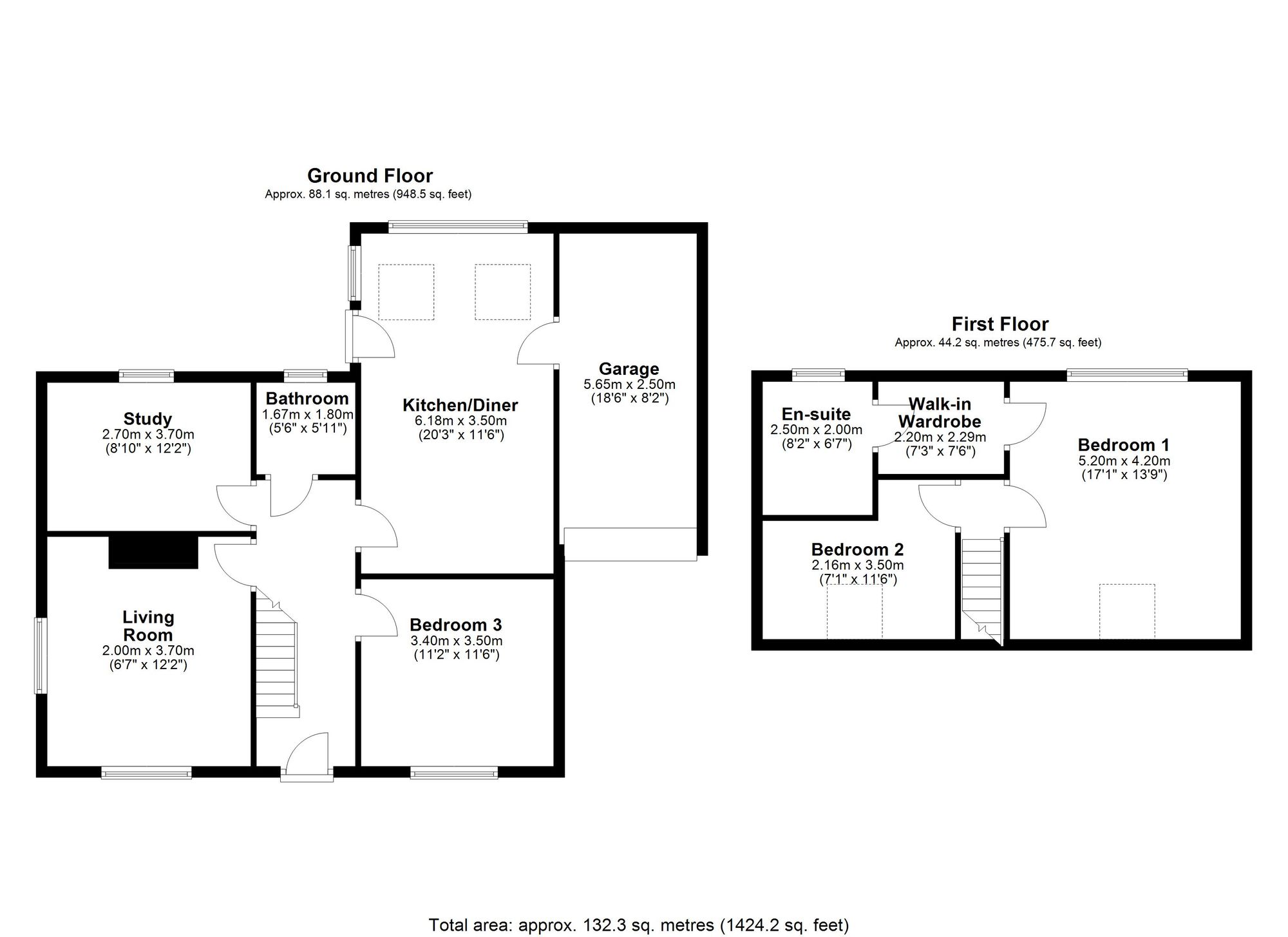
7 Orchard Close is very well presented, three bedroom property in the ever popular village of Sandford. The accommodation consists of a well appointed and equipped kitchen/diner, study, bathroom and lounge on the ground floor as well as the third bedroom. There is also access to the garage from the kitchen/diner. On the first floor there are two double bedrooms, one of which has its own walk-in wardrobe and ensuite shower room. The property is fully double glazed and is serviced by oil fired central heating. The property is available very soon and for a minimum of 6 months but potentially longer and comes partially furnished and fully equipped in regards to white goods with dishwasher, cooker, hob, microwave, washing machine and dryer and a freezer in the garage.

Interested in a viewing?
Give us a call or drop us an email with a couple of dates and times that work for you and we will get you booked in. You will always find our latest opening hours on the Helmores website so you know when the team is available.

Ready to apply?
We can send you a simple online application form or provide a paper copy if you prefer. We will also need to check your ID to meet the Right to Rent rules, which apply to all tenancies. Full government guidance can be found here:
https://www.gov.uk/government/publications/right-to-rent-document-checks-a-user-guide

Need help with the renting process?
Our rentals team is here to guide you from first enquiry to move in day, keeping everything clear and straightforward. If you’d like to read ahead, our step by step renting guide is here:
https://helmores.com/guide-to-renting-property

Available: Very soon
Tenancy: 6 months minimum
Rent: £1400pcm
Deposit: £1400 - Protected with the Deposit Protection Scheme (DPS) https://www.depositprotection.com/
Furnished: Partly
Pets: Considered
Heating: Oil
Council Tax: Band C
EPC Rating: D65
Tenancy Type: Assured Shorthold Tenancy

Broadband: Check local providers and speeds at https://checker.ofcom.org.uk/broadband-coverage
Mobile Signal: Coverage varies by network. Check your provider at https://checker.ofcom.org.uk/mobile-coverage
Redress Scheme: Helmores is a member of The Property Ombudsman (TPO) https://www.tpos.co.uk/
Client Money Protection: Helmores is covered by Propertymark Client Money Protection https://www.propertymark.co.uk/professional-standards/client-money-protection/

Tenant Checks: All applicants will undergo full referencing and must meet Right to Rent requirements. Government guidance: https://www.gov.uk/government/publications/right-to-rent-document-checks-a-user-guide

Tenant Fees: No other tenant fees apply under the Tenant Fees Act 2019.

Energy Efficiency Current: 65.0
Energy Efficiency Potential: 73.0

Important Information

  • This Council Tax band for this property is: C

Property Ref: d1181cfd-c333-4942-9c39-8ee7274b37fd

Share:

Similar Properties

Down St Mary, Crediton, EX17

4 Bedroom Not Specified | £1,400pcm

Large rural thatched property on edge of popular village

Rowan Terrace, Cheriton Bishop, EX6

3 Bedroom Semi-Detached House | £1,250pcm

Modern, well appointed 3 bedroom property in excellent condition, located in sought after village with great transport l...

Bewsley Hill, Copplestone, EX17

2 Bedroom Cottage | £1,125pcm

Stylishly and tastefully refurbished 2 bedroomed Cottage.

Brampford Speke, Exeter, EX5

4 Bedroom Cottage | £1,500pcm

Recently renovated, 4 bedroom cottage in very popular village location

Yeoford, Crediton, EX17

4 Bedroom Detached House | £1,950pcm

Enjoy relaxed Devon countryside living in this spacious Edwardian farmhouse with beautiful rural views, brilliant family...

High Street, Crediton, EX17

Not Specified | Guide Price £54,995

Commercial shop 35sq metres, (380sq ft) in High Street location, store room & WC

Helmores (Crediton)

Crediton, Devon, EX17 3LF

01363 777999

How much is your home worth?

Use our short form to request a valuation of your property.

Request a Valuation
©2025 The Guild of Property Professionals. All rights reserved. Terms and Conditions | Privacy Policy | Cookie Policy | Complaints Policy | Members Login
The Guild of Property Professionals Trading Address: 121 Park Lane, London W1K 7AG. GPEA Limited. Registered in England & Wales.  Company No: 02819824.  Registered Office Address: 2 St. Stephen's Court, St. Stephen's Road, Bournemouth, Dorset, England, BH2 6LA.  VAT Registration No: 576 8795 61
Book a Property Valuation Update Cookies Preferences