- Council Tax Band: B
- Deposit: 1,442
- 3 Bedroom House
- Downstairs bathroom
- Upper Gillingham
- On street permit parking
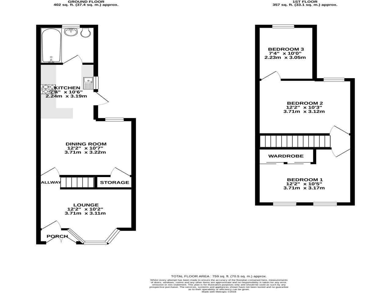
A three bedroom mid terraced house with a family friendly layout located within walking distance to Medway hospital. The property has an entrance porch, a separate lounge which leads to the dining room, kitchen and downstairs family bathroom. The kitchen has a breakfast bar area with a fitted electric oven, ceramic hobs and a built in freezer. Upstairs are two double bedrooms, the third single bedroom is accessed via bedroom two. The master bedroom has a large fitted wardrobe with shelves and rails. The rear garden area is paved and measures approximately 50ft long by 12ft wide. Additional benefits include a gas fireplace in the living room and double glazing. Viewings are by appointment with Greyfox only.
Available Late March/Early April
Unfurnished
EPC Rating D66
Council tax band B
A holding deposit of 80 is required to secure this property
The required tenants security deposit amount is 1,442.31
Lounge - 3.71m ( 12'3'') x 3.11m ( 10'3'')
Dining room - 3.71m ( 12'3'') x 3.22m ( 10'7'')
Kitchen - 2.24m ( 7'5'') x 3.19m ( 10'6'')
Bedroom 1 - 3.71m ( 12'3'') x 3.17m ( 10'5'')
Bedroom 2 - 3.71m ( 12'3'') x 3.12m ( 10'3'')
Bedroom 3 - 2.23m ( 7'4'') x 3.05m ( 10'1'')
Property Ref: 1411
2 Bedroom House | £1,200pcm
Ingram Road , Gillingham , Kent
2 Bedroom House | £1,200pcm
104 High Street , Rainham, Kent
1 Bedroom Flat | £950pcm
2 Bedroom End of Terrace House | £1,300pcm
4 Bedroom House | £1,350pcm
3 Bedroom House | £1,400pcm
Greyfox Sales & Lettings (Walderslade)
Walderslade Village Centre, Walderslade, Walderslade, Kent, ME5 9LR
Use our short form to request a valuation of your property.
Request a Valuation