Llangammarch Wells, LD4

£800pcm

5 Bedroom House for rent in Llangammarch Wells

3 5 2
  • Available immediately
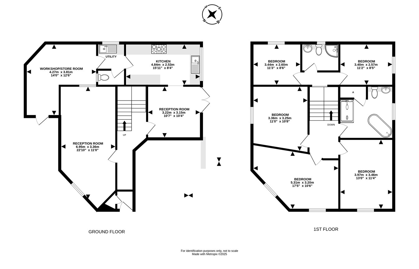
  • Spacious 5-bedroom family home with two reception rooms, large kitchen, utility, and two bathrooms
  • Private wraparound garden with woodland backdrop and useful external storage - perfect for relaxing or growing your own fruit/veg
  • Unrestricted on-street parking and superb village location serving nearby communities
  • Energy performance certificate - D
  • Council tax band - D (2025-6 £2,201.75)
  • Deposit - £900

The House enjoys its own private access, leading into a porch with built-in corner storage, and through to a central hallway with useful understairs cupboard. From here, you can access the main reception room, and a second reception room which opens into a spacious kitchen. Off the kitchen is a utility room, downstairs WC, and a wraparound store that connects back to the front of the property.

Upstairs, the property offers five well-proportioned double bedrooms, a large family bathroom, and an additional shower room – perfect for families.

Outside, the home benefits from unrestricted street parking to the front, and a generous garden that wraps around the rear of the property. The gently sloping grounds offer privacy, views towards surrounding woodland, and a peaceful setting complete with a useful garden shed at the boundary.

Please note the photographs were taken for a previous marketing campaign.

Available immediately.

Council Tax Band 'D'

Rent - £900.00 per calendar month

Deposit required - £900.00

PLEASE NOTE: ALL CONTRACT HOLDERS ARE REQUIRED TO COMPLETE AN APPLICATION FORM PROVIDING REFERENCES. WE WILL ALSO REQUIRE INFORMATION TO CARRY OUT A CREDIT CHECK WHICH IS PROVIDED BY A THIRD PARTY.

Telephone & Broadband: Telephone- subject to BT transfer regulations. According to comparethemarket.com the property has a broadband speed of: 57.24 Mbps (average speed of Mbps).

Please note you should always confirm this by speaking to the specific provider you would like to use. This is for guidance only.

The property occupies a prime position in the heart of Llangammarch Wells, a picturesque Mid-Wales village on the scenic Heart of Wales railway line, connecting Shrewsbury to Swansea. Despite its tranquil setting, the village enjoys excellent transport links and a warm, welcoming community. At the heart of village life is Alexandra Hall, hosting a variety of regular events including Tai Chi, short bowls, coffee mornings, and toddler groups - ideal for those looking to get involved and meet neighbours. Just four miles away is Llanwrtyd Wells, officially Britain’s smallest town, known for its quirky charm and offbeat annual events like the World Bog Snorkelling Championships and Man versus Horse Marathon. Originally a Victorian spa town, it retains plenty of heritage and sits beautifully between the Tywi and Irfon valleys. Around eight miles away, the bustling market town of Builth Wells offers a full range of amenities, including primary and secondary schools, a leisure centre, cinema, sports clubs, and a golf course. It's also home to the Royal Welsh Show, the largest agricultural show in Europe, drawing visitors from across the UK and beyond. Nature lovers will be spoilt for choice, with the Wye Valley on the doorstep and the stunning Elan Valley nearby - perfect for walking, cycling, and soaking up breathtaking landscapes. The Red Kite Feeding Centre at Gigrin Farm offers a unique opportunity to witness these majestic birds up close. Offering a blend of rural tranquillity, rich culture, and easy accessibility, Llangammarch Wells is an exceptional place to call home.

Property Ref: 29640767

Share:

Similar Properties

Brecon Road, Builth Wells, LD2

2 Bedroom Apartment | £595pcm

A well-maintained two bedroom second floor apartment with designated parking space and buzzer entry system, located just...

Mill Stream Close, Llanddewi, Llandrindod Wells, LD1

4 Bedroom Detached House | £1,250pcm

A spacious and well-presented four-bedroom detached home, ideally suited to modern family living. Offering generous rece...

High Street, Builth Wells, LD2

Shop | £5,000pa

Centrally located ground floor shop premises in the heart of the bustling market town of Builth Wells, benefiting from s...

High Street, Builth Wells, LD2

Not Specified | £7,000pa

A Ground floor shop with a retail frontage, basement and garage storage. Located in a prominent location on the High Str...

James Dean The Estate Agents Builth (Builth Wells)

Builth Wells, Powys, LD2 3AB

01982 552 537

How much is your home worth?

Use our short form to request a valuation of your property.

Request a Valuation
©2026 The Guild of Property Professionals. All rights reserved. Terms and Conditions | Privacy Policy | Cookie Policy | Complaints Policy | Members Login
The Guild of Property Professionals Trading Address: 121 Park Lane, London W1K 7AG. GPEA Limited. Registered in England & Wales.  Company No: 02819824.  Registered Office Address: 2 St. Stephen's Court, St. Stephen's Road, Bournemouth, Dorset, England, BH2 6LA.  VAT Registration No: 576 8795 61
Book a Property Valuation Update Cookies Preferences