Partridge Way, Oakham

£1,495pcm
Let Agreed
This property listing is now Let Agreed

4 Bedroom Detached House for rent in Oakham

2 4 2
  • 4 Bedroom Detached Family Home
  • Well Presented Throughout
  • 2 Reception Rooms
  • Additional Sun Room
  • Well Appointed Kitchen
  • En Suite & Family Bathroom
  • Established Gardens
  • Driveway Parking for 2 & Single Garage
  • Please Refer to Attached KFB For Material Information Disclosures


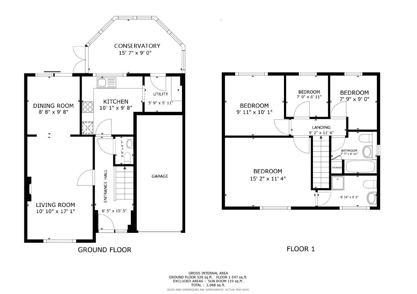
Briefly the accommodation comprises; Ground Floor - Entrance Hall, Living Room, Dining Room, Kitchen, Utility, Conservatory. First Floor - Landing, Bedroom 1 with En-Suite Shower Room, 3 Further Bedrooms, and a Family Bathroom.

Outside - To the front there is a driveway providing off road parking for 2 vehicles and in turn leads to a single garage. The rear Garden is established with mature planting and has a good sized patio area adjacent to the rea of the house.

Agents Note:
Holding Deposit - £345
Tenancy Security Deposit – £1725
Local Authority – Rutland
Council Tax Band – E
EPC Rating - D

Entrance Hall
1.96m x 4.70m (6'5" x 15'5")

Living Room
3.30m x 5.21m (10'10" x 17'1")

Dining Room
2.64m x 2.95m (8'8" x 9'8")

Kitchen
3.07m x 2.95m (10'1" x 9'8")

Utility
1.75m x 1.80m (5'9" x 5'11")

Conservatory
4.75m x 2.74m (15'7" x 9'0")

Landing
2.79m x 3.51m (9'2" x 11'6")

Bedroom 1
4.62m x 3.45m (15'2" x 11'4")

En Suite
3.00m x 1.57m (9'10" x 5'2")

Bedroom 2
3.02m x 3.07m (9'11" x 10'1")

Bedroom 3
2.36m x 2.74m (7'9" x 9'0")

Bedroom 4
2.13m x 2.11m (7'0" x 6'11")

Family Bathroom
2.31m x 2.11m (7'7" x 6'11")


Sizes and dimensions are calculated using a laser measuring modelling device and as such whilst representative it must be noted that they are all approximate, actual sizes may vary.

Important Information

  • This Council Tax band for this property is: E
  • EPC Rating is D

Property Ref: 34508169

Share:

Similar Properties

Cecil Court, Wharf Road, Stamford

2 Bedroom Detached House | £1,350pcm

Uniquely situated in a tucked away location in the very heart of Stamford’s Town Centre, sits this two-bedroom detached...

Barnack Road, Stamford

2 Bedroom Detached House | £1,350pcm

A charming two bedroom character cottage positioned opposite Burghley Park and within easy walking distance of Stamford...

Water Street, Stamford

2 Bedroom Semi-Detached House | £1,295pcm

A beautifully presented two-bedroom town house in the heart of Stamford, offering stylish interiors, a private sheltered...

Kipling Close, Stamford

3 Bedroom Detached House | £1,500pcm

COMPLETELY REFURBISHED TO AN EXCEPTIONALLY HIGH STANDARD THROUGHOUT - this beautifully presented three-bedroom home enjo...

Conduit Road, Stamford

3 Bedroom End of Terrace House | £1,500pcm

Finished to an exceptionally high standard throughout this 3 bedroom family home is modern and spacious with family bath...

North Street, Stamford

4 Bedroom Terraced House | £1,750pcm

A deceptively spacious and beautifully renovated, highly individual 4-bedroom, 3-bathroom townhouse in the heart of Stam...

Goodwin Property (Stamford)

St Johns Street, Stamford, Lincolnshire, PE9 2DA

01780 750000

How much is your home worth?

Use our short form to request a valuation of your property.

Request a Valuation
©2026 The Guild of Property Professionals. All rights reserved. Terms and Conditions | Privacy Policy | Cookie Policy | Complaints Policy | Members Login
The Guild of Property Professionals Trading Address: 121 Park Lane, London W1K 7AG. GPEA Limited. Registered in England & Wales.  Company No: 02819824.  Registered Office Address: 2 St. Stephen's Court, St. Stephen's Road, Bournemouth, Dorset, England, BH2 6LA.  VAT Registration No: 576 8795 61
Book a Property Valuation Update Cookies Preferences