Craigmount, Radlett, Hertfordshire, WD7

£1,900pcm
Let Agreed
This property listing is now Let Agreed

2 Bedroom Apartment for rent in Radlett

1 2 1
  • Fully Refurbished Throughout
  • Stunning Condition
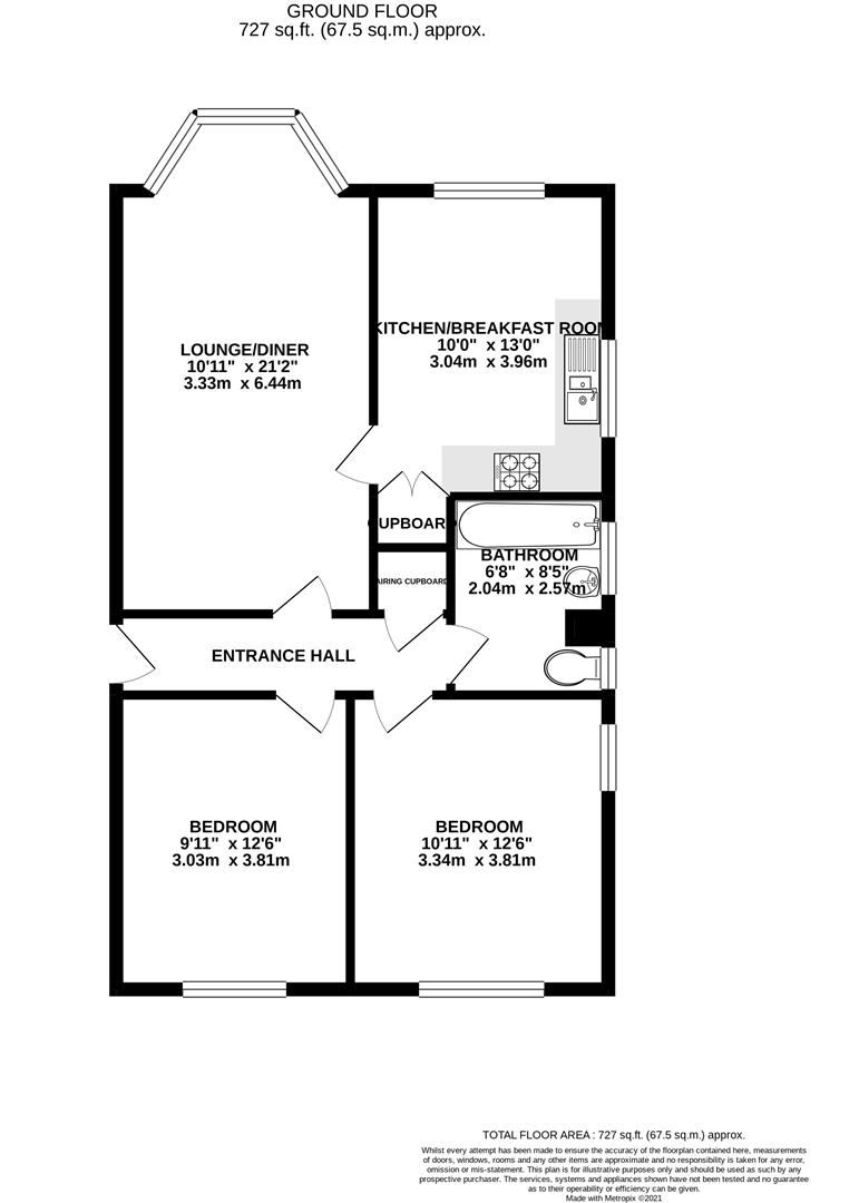
  • Over 720 Sq.Ft
  • 2 Double Bedrooms
  • 2 Allocated Parking Spaces
  • Central Location

***6 month tenancy considered***
A stunning two double bedroom, first floor apartment located in a quiet and sought after residential road in the heart of Radlett.

The property provides bright and spacious accommodation, measuring over 700 sq ft and comprises; entrance hall, spacious living/dining room with an attractive bay window and mood lighting, large dual aspect kitchen/breakfast room, two good sized double bedrooms and a lovely bathroom suite.

Externally, there are two parking spaces. One undercover and one allocated spot.

The property is well situated within a short walk of Radlett Mainline Railway Station, providing direct links to Kings Cross/St Pancras within 25 minutes and Radlett Village, offering a plethora of shops and restaurants.

Property Ref: LUM220051_L

Share:

Similar Properties

Watling Street, Radlett, Hertfordshire, WD7

3 Bedroom Apartment | £1,900pcm

***Recently redecorated throughout*** A stunning three bedroom duplex penthouse apartment located on Radlett High Street...

Watling Street, Radlett, Hertfordshire, WD7

2 Bedroom Apartment | £1,900pcm

A two-bedroom ground floor apartment with its own garden, located in the heart of Radlett, a couple of minutes’ walk fro...

Common Lane, Letchmore Heath, Watford, Hertfordshire, WD25

2 Bedroom Terraced House | £1,800pcm

A charming 2-Bedroom Cottage in the Heart of Letchmore HeathNestled in the picturesque and highly sought-after village o...

Lady Aylesford Avenue, Stanmore, HA7

2 Bedroom Apartment | £2,000pcm

This spacious second-floor apartment features two double bedrooms and two bathrooms, situated on Lady Aylesford Avenue.

Watling Street, Radlett, Hertfordshire, WD7

2 Bedroom Apartment | £2,000pcm

An exceptionally presented 2 bedroom apartment, located in the heart of the sought-after Radlett.Conveniently placed loc...

Nightingale Court, Park Road, Radlett, Hertfordshire, WD7

2 Bedroom Apartment | £2,000pcm

A fabulous opportunity to rent a bright and spacious, 915 sq. ft second floor, 2 bedroom, 2 bathroom apartment.

Lumley Estates (Radlett)

72 Watling Street, Radlett, Hertfordshire, WD7 7NP

01923 853366

How much is your home worth?

Use our short form to request a valuation of your property.

Request a Valuation
©2026 The Guild of Property Professionals. All rights reserved. Terms and Conditions | Privacy Policy | Cookie Policy | Complaints Policy | Members Login
The Guild of Property Professionals Trading Address: 121 Park Lane, London W1K 7AG. GPEA Limited. Registered in England & Wales.  Company No: 02819824.  Registered Office Address: 2 St. Stephen's Court, St. Stephen's Road, Bournemouth, Dorset, England, BH2 6LA.  VAT Registration No: 576 8795 61
Book a Property Valuation Update Cookies Preferences