Parkside Lane, Ropley, Alresford, Hampshire, SO24

£2,400pcm
Let Agreed
This property listing is now Let Agreed

3 Bedroom Cottage for rent in Alresford

2 3 1
  • EPC Rating E
  • Holding Deposit £553.84
  • Deposit £2,769.20
  • Council Tax Band E
  • Countryside Setting
  • Far Reaching Views
  • Three Bedrooms
  • Two Reception Rooms
  • Study Area
  • Off Road Parking

A perfect countryside retreat with far reaching views over neighbouring farmland.
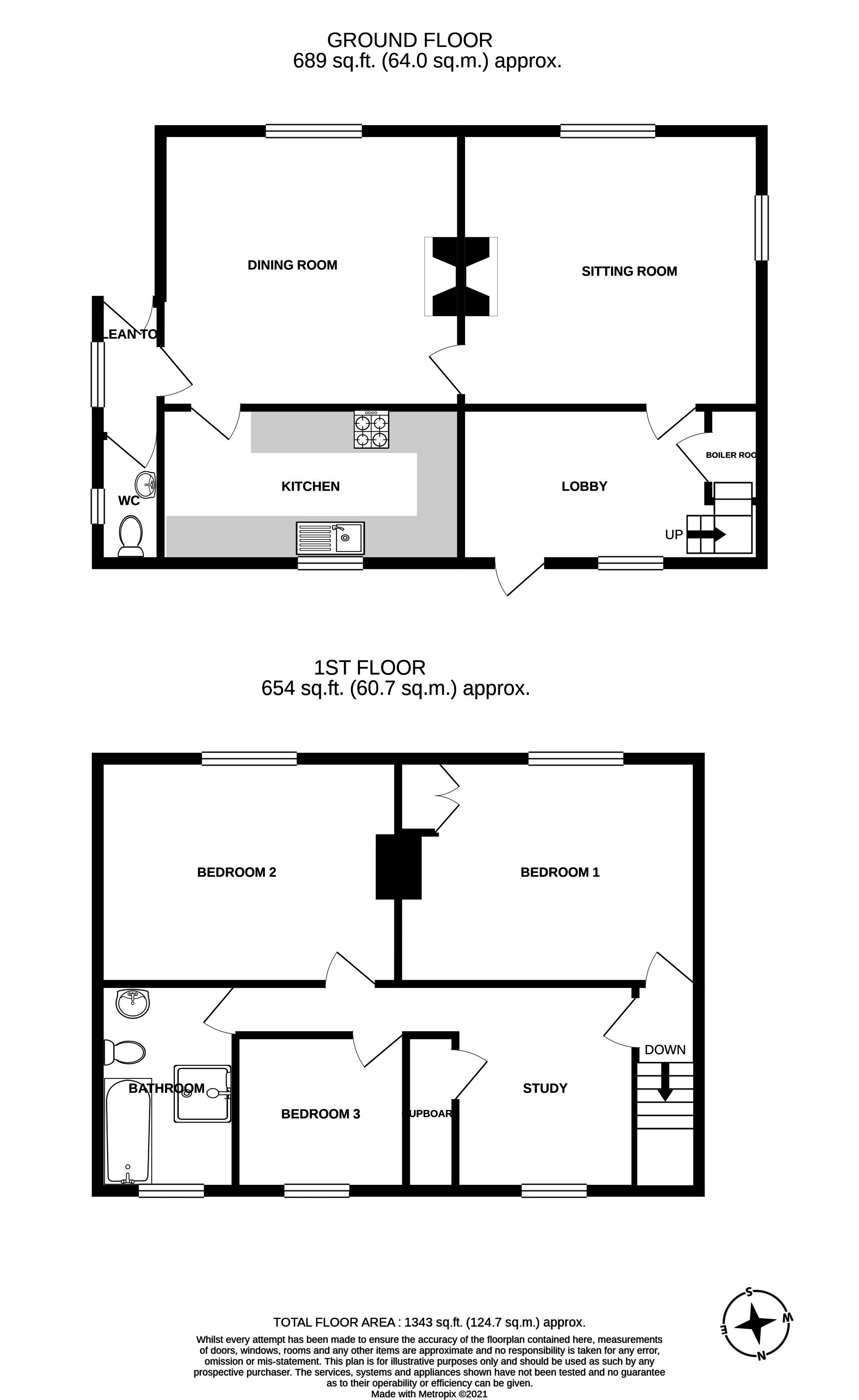
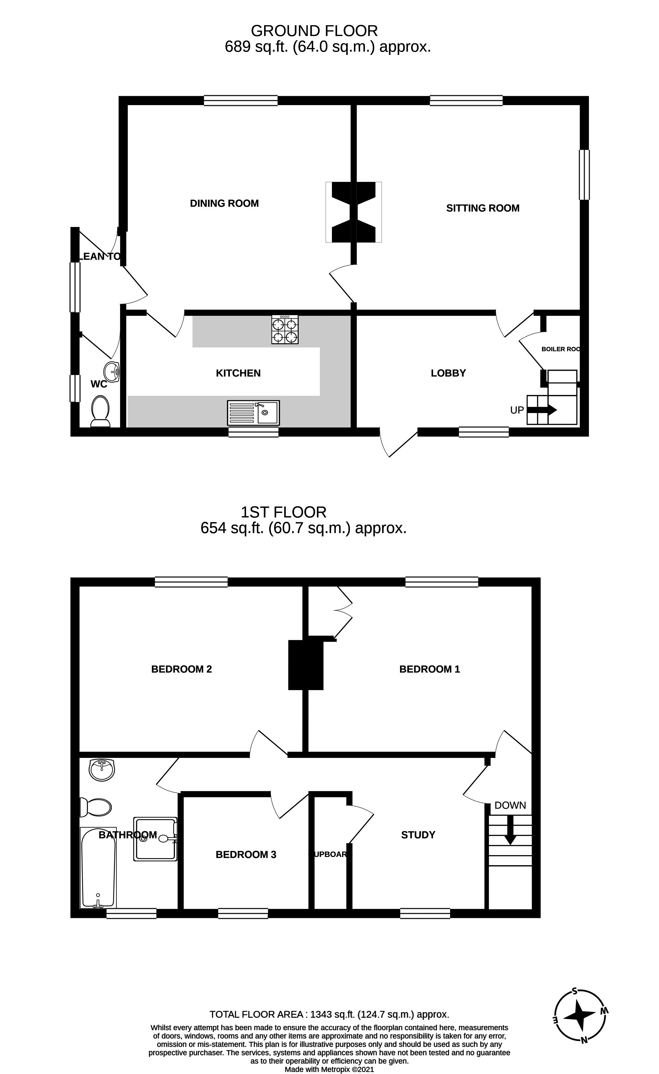
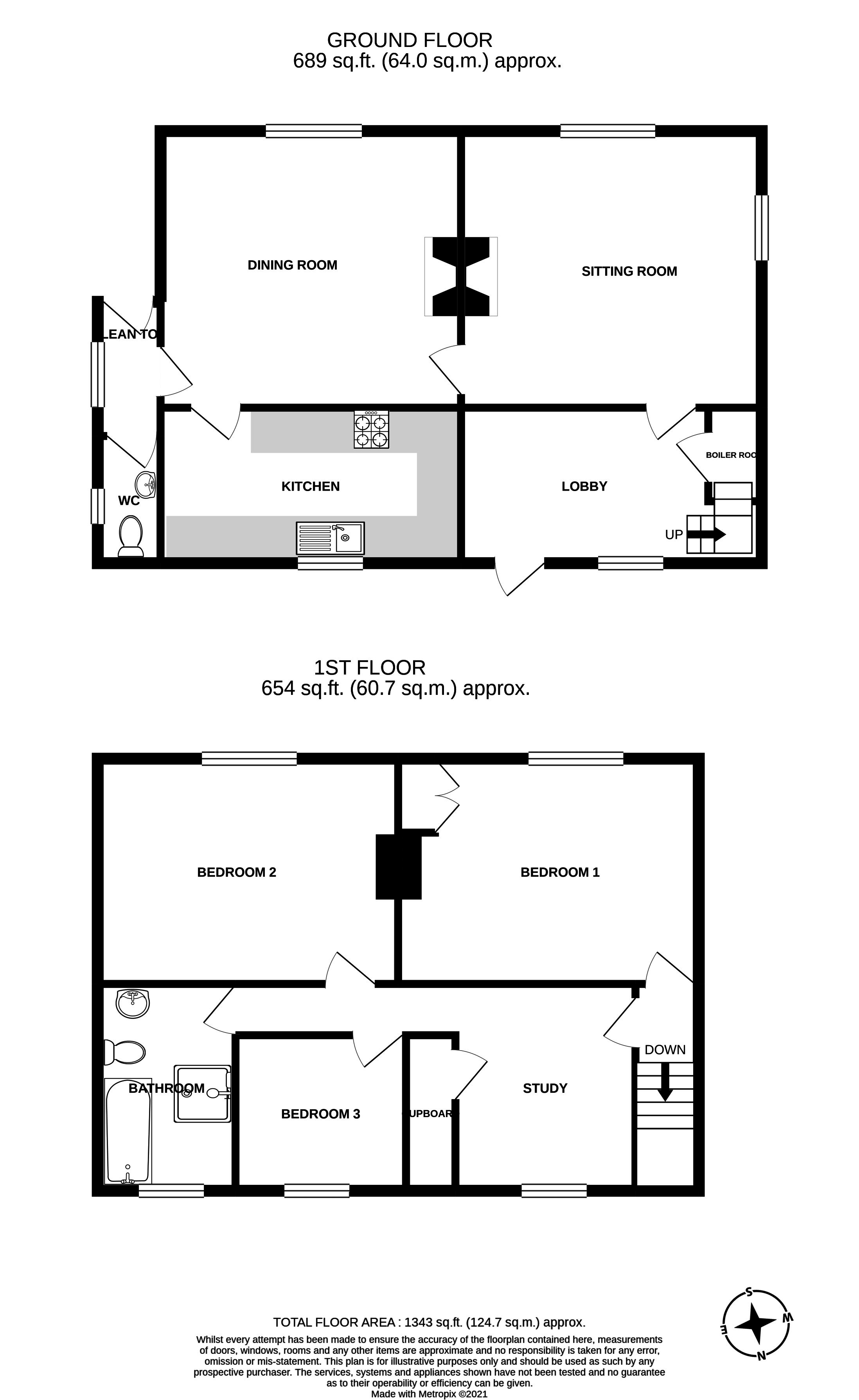
From the entrance lobby, there is a door through to the versatile downstairs accommodation with a sitting room, dining room and modern fitted kitchen. There is also a 'lean to' to the side with WC and door to the garden.
Stairs lead up from the entrance lobby to the study / family room. There are doors through to the three double bedrooms, and family bathroom.
Outside, there is a good-sized front garden with mature borders, and off road parking to the side.
Standard broadband is available (surce:Ofcom). A mobile signal is limited from EE, Three, O2 and Vodafone (source: Ofcom).
The cottage is located on the edge of the popular village of Ropley and within easy reach of the historic market town of Alresford, notable for its charming Georgian buildings and eclectic mix of independent shops, coffee shops and public houses. There is easy access to London, Winchester and Southampton on the A31, and rail access to London from Alton or Winchester.

Property Ref: 420420_10160080

Share:

Similar Properties

Wayfarer Place The Dean, Alresford, Hampshire, SO24

1 Bedroom Apartment | £2,000pcm

A bright and airy ground floor apartment with parking , conveniently located in the centre of Alresford. Wayfarer Place...

Copse View, Four Marks, Alton, Hampshire, GU34

3 Bedroom End of Terrace House | £2,000pcm

A superbly presented home, with parking and a garden.

Thornton Close, Alresford, SO24

4 Bedroom Detached House | £2,000pcm

A superbly presented detached home set in a popular residential road with garden and garage.

23 East Street, Alresford, Hampshire, SO24

3 Bedroom Townhouse | £2,500pcm

A lovely Grade II listed Georgian town-house, located in the heart of Alresford's conservation area. The property is bea...

Mill Hill, Alresford, Hampshire, SO24

3 Bedroom Barn Conversion | £2,500pcm

A charming detached character home with a separate annexe, located at the bottom of Broad Street in the heart of Alresfo...

Haig Road, Alresford, Hampshire, SO24

4 Bedroom Detached House | £2,500pcm

A versatile family home, located in a popular residential close and within walking distance from the Town centre.

Hellards Estate Agents (Alresford)

11 Broad Street, Alresford, Hampshire, SO24 9AR

01962 736333

How much is your home worth?

Use our short form to request a valuation of your property.

Request a Valuation
©2026 The Guild of Property Professionals. All rights reserved. Terms and Conditions | Privacy Policy | Cookie Policy | Complaints Policy | Members Login
The Guild of Property Professionals Trading Address: 121 Park Lane, London W1K 7AG. GPEA Limited. Registered in England & Wales.  Company No: 02819824.  Registered Office Address: 2 St. Stephen's Court, St. Stephen's Road, Bournemouth, Dorset, England, BH2 6LA.  VAT Registration No: 576 8795 61
Book a Property Valuation Update Cookies Preferences