Primrose Cottages, Hinton Ampner, Alresford, Hampshire, SO24

£1,600pcm
Let Agreed
This property listing is now Let Agreed

3 Bedroom Cottage for rent in Alresford

1 3 1
  • Energy Performance Rating Exempt
  • Holding Deposit £369.23
  • Deposit £1,846.15
  • Council Tax Band D
  • Newly Refurbished
  • Three Bedrooms
  • Kitchen / Breakfast Room
  • Sitting Room
  • Garden
  • Off Road Parking

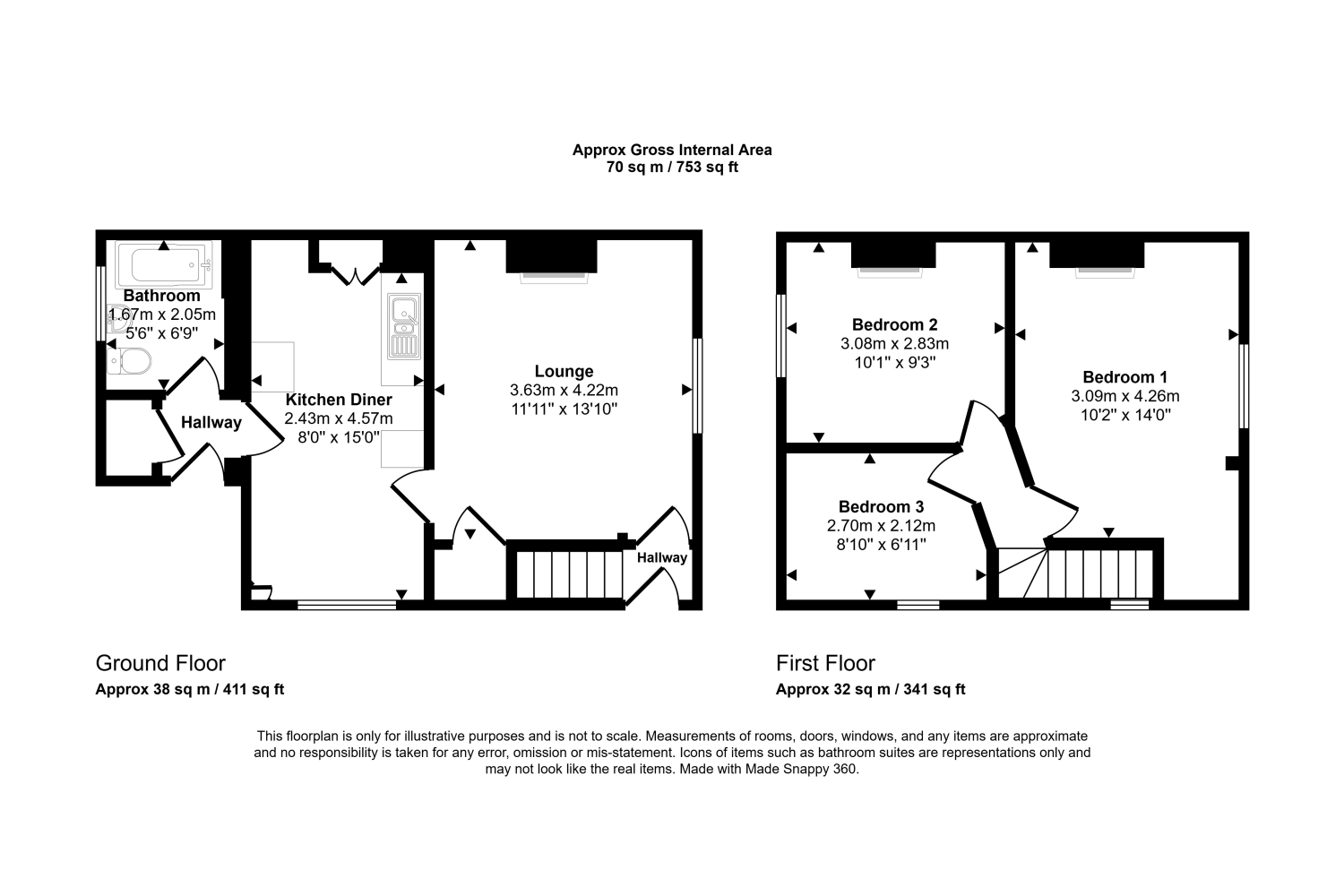
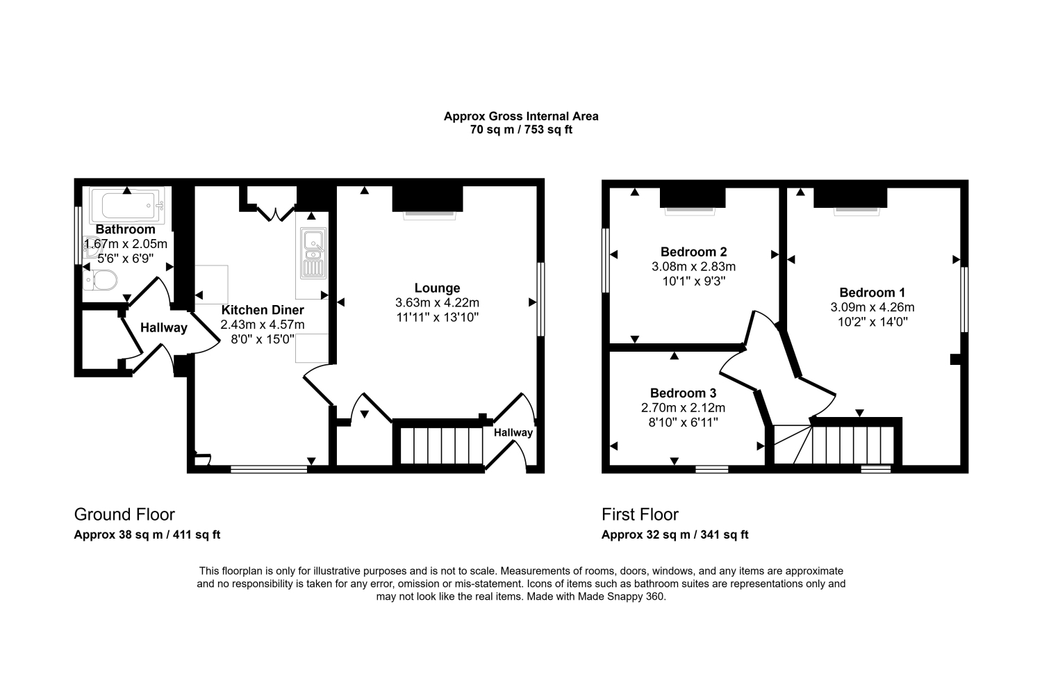
A semi-detached cottage, which has been newly refurbished and has views over surrounding countryside.
Currently undergoing refurbishment, this pretty cottage has an entrance lobby, with a door through to the ground floor bathroom. This comprises of a white suite, with a shower over the bath. From the lobby, there is als a door through to the kitchen / breakfast room. The kitchen has been newly fitted with a range of gloss white units and wooden worktop. From the kitchen, there is a door through to the sitting room, which overlooks the garden. Upstairs, there are three bedrooms.

Outside, there is a good-sized garden, and off road parking to the rear.

Ultrafast broadband is available (source:Ofcom). A mobile signal is likely from EE and Three, but limited from O2 and Vodafone.

Property Ref: 420420_10678508

Share:

Similar Properties

Pebble Beach Apartments, 6 Marine Parade East, Lee-on-the-Solent, Hampshire, PO13

2 Bedroom Apartment | £1,600pcm

A superbly presented ground floor flat, located on the seafront.

Links Cottages, Tichborne Down, Alresford, SO24

2 Bedroom Cottage | £1,500pcm

A two bedroom character cottage on the southern fringe of the town, close to open countryside and the golf course. The p...

The Goodens, Cheriton, Alresford

3 Bedroom Semi-Detached House | £1,500pcm

A spacious home situated within a short walk of Cheriton village centre with its picture-postcard village green, lying b...

Little Hayes Lane, Itchen Abbas, Winchester, Hampshire, SO21

3 Bedroom Semi-Detached House | £1,700pcm

A charming three bedroom cottage set in the popular hamlet of Itchen Abbas, overlooking a green and with lovely views be...

The Soke, Broad Street, Alresford, Hampshire, SO24

3 Bedroom Apartment | £1,700pcm

An individual and spacious apartment that forms the upper part of an old inn located at the bottom of Broad Street in th...

Whyteways, Eastleigh, Hampshire, SO50

3 Bedroom End of Terrace House | £1,700pcm

An extended end of terrace two/three bedroom home, located in the desirable Boyatt Wood area of Eastleigh.

Hellards Estate Agents (Alresford)

11 Broad Street, Alresford, Hampshire, SO24 9AR

01962 736333

How much is your home worth?

Use our short form to request a valuation of your property.

Request a Valuation
©2025 The Guild of Property Professionals. All rights reserved. Terms and Conditions | Privacy Policy | Cookie Policy | Complaints Policy | Members Login
The Guild of Property Professionals Trading Address: 121 Park Lane, London W1K 7AG. GPEA Limited. Registered in England & Wales.  Company No: 02819824.  Registered Office Address: 2 St. Stephen's Court, St. Stephen's Road, Bournemouth, Dorset, England, BH2 6LA.  VAT Registration No: 576 8795 61
Book a Property Valuation Update Cookies Preferences