- EPC Rating E
- Holding Deposit £300.00
- Deposit £1500.00
- Council Tax Band B
- Self Contained Flat
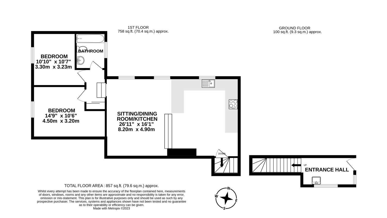
- Two Bedrooms
- Bathroom
- Split-level Open Plan Living Space
- One Parking Space
- Superb Location
An unique opportunity to rent this self-contained flat set within the curtilage of a country home, on the outskirts of the popular village of Cheriton.
From the front door, there is an entrance way with plumbing for a washing machine, and stairs to the first floor. The main living space is open plan, with a country kitchen / breakfast room. There is a step down to the sitting / dining area, which features a woodburning stove. A door leads off to an inner hallway, with further doors through to the two bedrooms and bathroom, with shower over the bath.
The heating is provided by and air-source heat pump, whilst water comes from a borehole.
An allocated parking space will be provided.
Cheriton is a sought after village located in the beautiful South Downs National Park. There is good walking in several directions from the doorstep one of which is to the village pub, with another pub nearby in Tichborne. The village has an Ofsted 'outstanding' primary school, a shop and post office, cricket and tennis clubs, an amateur dramatics society and much more. Cheriton is located just a few minutes' drive from the popular market town of Alresford and has good road access to Winchester and beyond.
Property Ref: 420420_10324438
35 Orchard Close, Alresford, SO24
2 Bedroom Terraced House | £1,300pcm
A newly redecorated home located in this popular residential road.
Bryony Gardens, Horton Heath, Eastleigh, Hampshire, SO50
2 Bedroom Terraced House | £1,250pcm
A newly redecorated two bedroom home, set in this popular residential location.
2 Bedroom Maisonette | £1,200pcm
A well presented maisonette, set over two floors, in the heart of Broad Street. With secure access to the alleyway from...
East Street, Alresford, Hampshire, SO24
2 Bedroom Terraced House | £1,400pcm
A beautifully presented two bedroom character cottage, set in the heart of the Town.
East Lodge, 2 Marine Parade East, Lee-on-the-Solent, Hampshire, PO13
2 Bedroom Apartment | £1,400pcm
A superb top floor apartment with far reaching views over the Solent, towards the Isle of Wight.
Bay Tree Yard, West Street, Alresford, Hampshire, SO24
3 Bedroom Apartment | £1,400pcm
A beautiful and spacious town centre split level apartment, set in the heart of Alresford's Georgian town centre.
 
                            Hellards Estate Agents (Alresford)
11 Broad Street, Alresford, Hampshire, SO24 9AR
Use our short form to request a valuation of your property.
Request a Valuation