Jesty Road, Alresford, Hampshire, SO24

£1,800pcm
Let Agreed
This property listing is now Let Agreed

3 Bedroom Semi-Detached House for rent in Alresford

2 3 1
  • Energy Performance Rating C
  • Holding Deposit £415.38
  • Deposit £2,076.90
  • Council Tax Band C
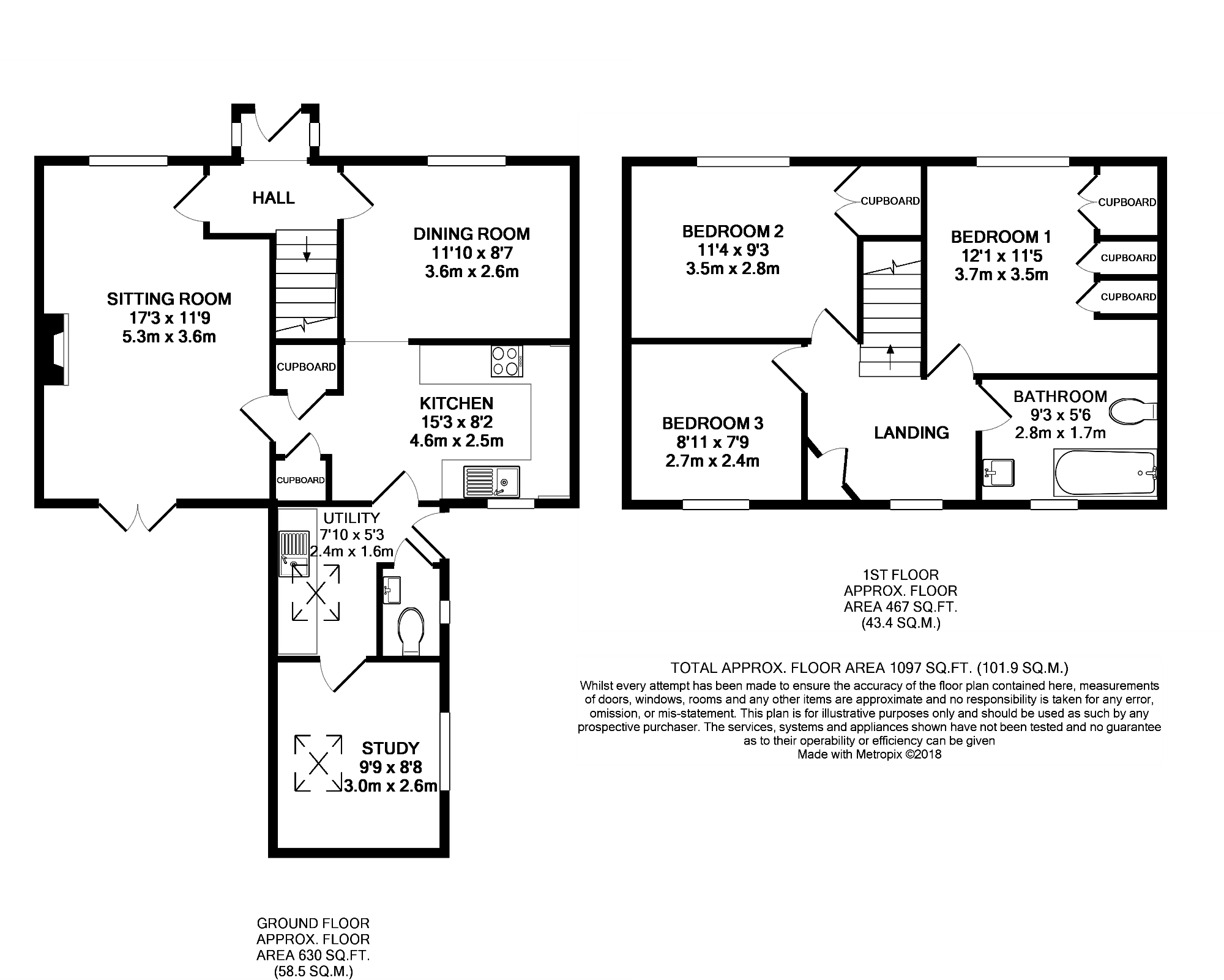
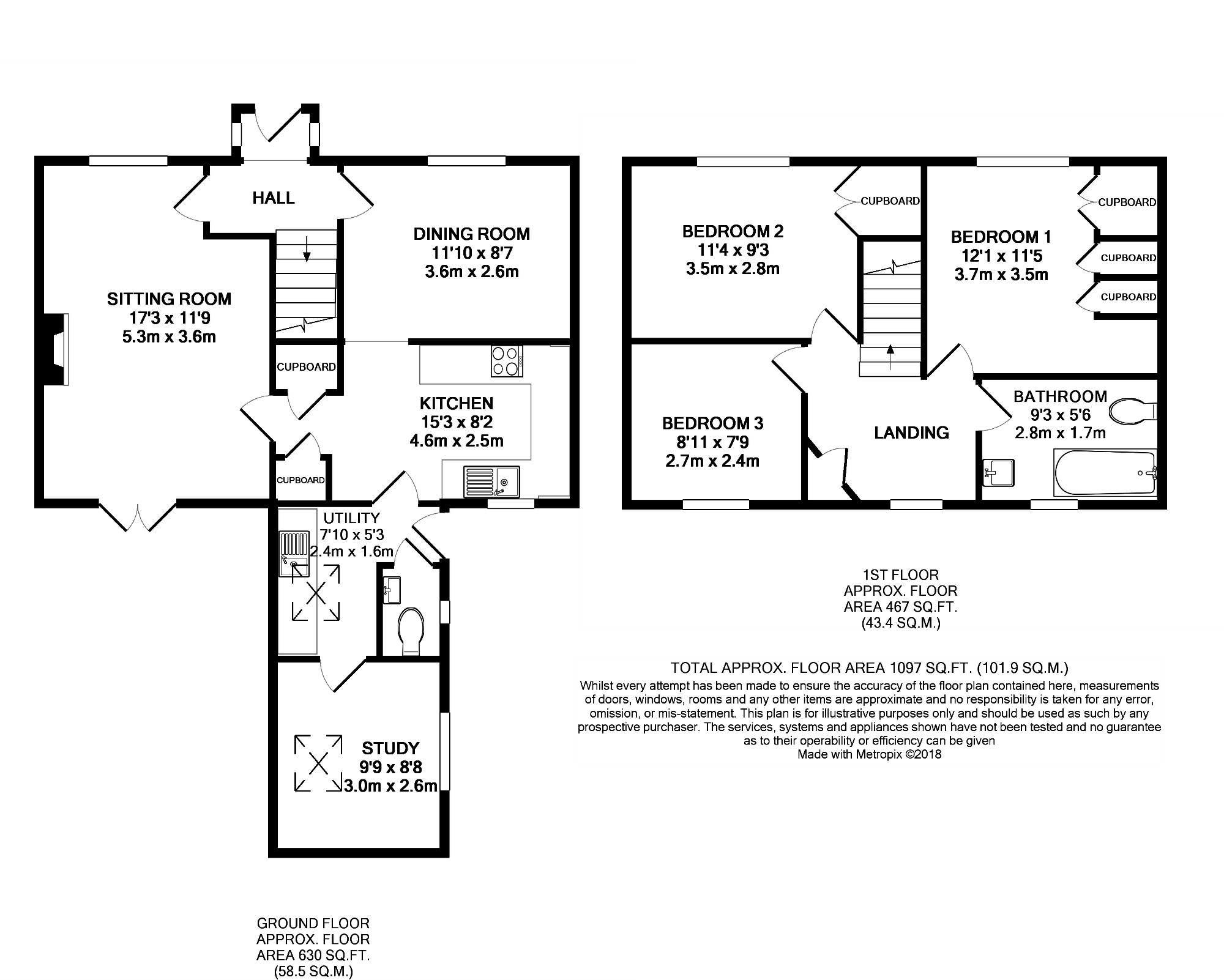
  • Three Bedrooms
  • Study
  • Sitting & Dining Rooms
  • Off Road Parking
  • Good size garden

A larger than average three bedroom family home set in a sought after location.
The property is approached via a path to the front door, with parking to the left and a samll front garden. Upon entering, there is a small entrance hall with stairs to the first floor. To the left is the dining room, with archway through to the kitchen. This has a modern range of base and eye-level units. There is a door through to the adjacent utility room with separate WC. There is a further door to the study.
The dual aspect sitting room can be accessed from both the kitchen and entrance hall.
Upstairs, there is the master bedroom with built-in wardrobes, two further bedrooms and the family bathroom.
Outside, there is off road parking on the grave drive. A side gate leads to the back garden and patio area.
Superfast broadband is available (source: Ofcom). A mobile signal is likely from Three, but limited from EE, O2 and Vodafone (source: Ofcom).

Alresford is a beautiful Georgian town known for its variety of independent shops, restaurants and inns located in stunning surroundings on the edge of the South Downs National Park. Attractions include the Watercress steam railway, schools for infant, junior and secondary education, several churches and an active and inclusive community. The cathedral city of Winchester is about 7 miles away and there is easy access to the south coast, the midlands and London via the road network. There is also mainline rail access to London from both Winchester and Alton. Southampton airport is only about half an hour away by car.

Property Ref: 10159870

Share:

Similar Properties

The Soke, Broad Street, Alresford, Hampshire, SO24

3 Bedroom Apartment | £1,700pcm

An individual and spacious apartment that forms the upper part of an old inn located at the bottom of Broad Street in th...

New Farm Road, Alresford, Hampshire, SO24

3 Bedroom Terraced House | £1,700pcm

A delightful mid-terrace three bedroom house conveniently located for Alresford town centre.

Hankins Court, Jacklyns Lane, Alresford, Hampshire, SO24

2 Bedroom Terraced House | £1,600pcm

A modern Georgian style house located in the centre of the popular market town of Alresford.

Watercress Meadow, Alresford, Hampshire, SO24

3 Bedroom End of Terrace House | £1,900pcm

A well proportioned family home, located in a popular cul-de-sac, with off road parking.

Dorian Grove, Alresford, Hampshire, SO24

4 Bedroom Detached House | £2,000pcm

A well presented family home with versatile accommodation, set in a slightly elevated position on a corner plot.

Wayfarer Place The Dean, Alresford, Hampshire, SO24

1 Bedroom Apartment | £2,000pcm

A bright and airy ground floor apartment with parking , conveniently located in the centre of Alresford. Wayfarer Place...

Hellards Estate Agents (Alresford)

11 Broad Street, Alresford, Hampshire, SO24 9AR

01962 736333

How much is your home worth?

Use our short form to request a valuation of your property.

Request a Valuation
©2026 The Guild of Property Professionals. All rights reserved. Terms and Conditions | Privacy Policy | Cookie Policy | Complaints Policy | Members Login
The Guild of Property Professionals Trading Address: 121 Park Lane, London W1K 7AG. GPEA Limited. Registered in England & Wales.  Company No: 02819824.  Registered Office Address: 2 St. Stephen's Court, St. Stephen's Road, Bournemouth, Dorset, England, BH2 6LA.  VAT Registration No: 576 8795 61
Book a Property Valuation Update Cookies Preferences