Brown Candover, Alresford, Hampshire, SO24

£2,995pcm
Let Agreed
This property listing is now Let Agreed

4 Bedroom Cottage for rent in Alresford

1 4 2
  • Energy Performance Rating E
  • Holding Deposit £691.15
  • Deposit £3455.75
  • Council Tax Band F
  • Character Brick and Flint Cottage
  • Four Bedrooms
  • Sitting / Dining Room
  • Newly Fitted Kitchen
  • Two Bathrooms
  • Garden

A character brick and flint cottage, formerly part of the old school, located in a tranquil setting within the pretty Candover Valley
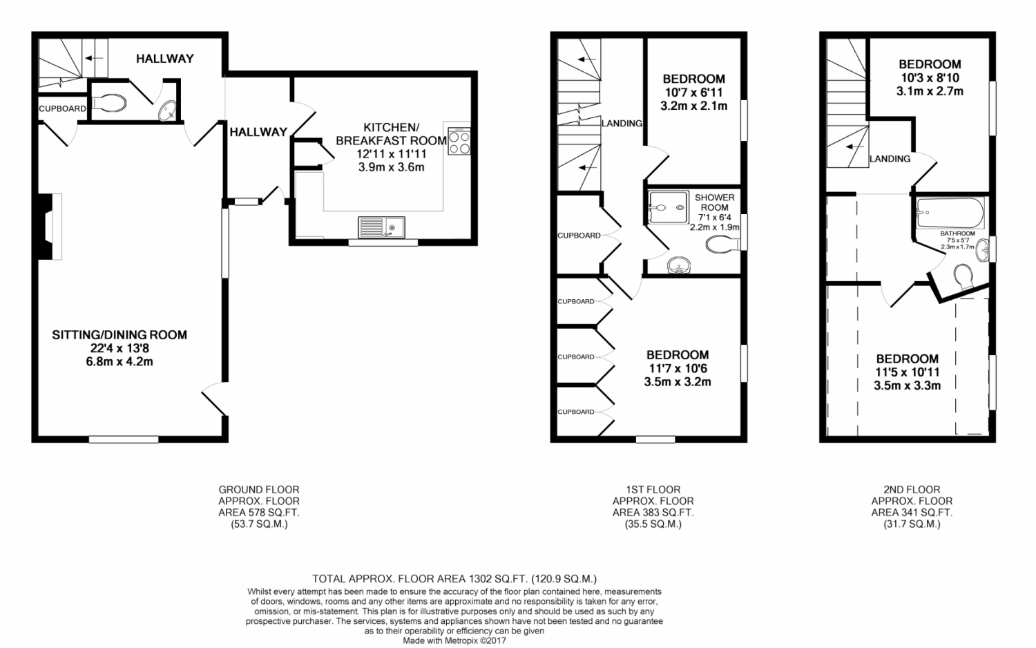
A path leads to the front door, which opens into a welcoming hallway. To the right is a newly fitted country kitchen, with a range of base and eye level units and contrastgn worktop. From the hall there is a door through to the impressive sitting / dining room, with wood burning stove and door to the patio. A cloakroom completes the ground floor.
On the first floor is the master bedroom, with views of the Church. There is second bedroom and shower room. On the top floor are two further bedrooms and a bathroom.
The pretty garden includes a patio area and raised lawn, with mature shrubs and trees.
There is off road parking.
The property has mains electricity and water. Calor gas for hob and electric storage heaters. Private drainage system.
Ultrafast broadband is available (source: Ofcom). For mobile coverage, please refer to the Ofcom website https://www.ofcom.org.uk/mobile-coverage-checker.
Brown Candover is located in the heart of the beautiful Candover Valley. It is surrounded by farmland and lovely countryside with a good choice of walks and long distance footpaths close by. The nearby village of Preston Candover has a local primary school, a well-known pub/restaurant and a village shop. A bus service runs to and the market town of Alresford, with its eclectic mix of independent shops and restaurants and Perins Secondary School. More extensive facilities can be found in Basingstoke (approx. 12 miles away), and the cathedral city of Winchester (approx. 8 miles away). Mainline rail services to London Waterloo are available from Winchester, Basingstoke and Micheldever Station.

Property Ref: 420420_10690450

Share:

Similar Properties

Park Lane, Ropley, Alresford, Hampshire, SO24

4 Bedroom Detached House | £2,600pcm

A detached well presented family home offering spacious accommodation in a rural setting within the village of Ropley.

Mill Hill, Alresford, Hampshire, SO24

3 Bedroom Barn Conversion | £2,500pcm

A charming detached character home with a separate annexe, located at the bottom of Broad Street in the heart of Alresfo...

23 East Street, Alresford, Hampshire, SO24

3 Bedroom Townhouse | £2,500pcm

A lovely Grade II listed Georgian town-house, located in the heart of Alresford's conservation area. The property is bea...

Hattingley, Medstead, Alton, Hampshire, GU34

5 Bedroom Farm House | £3,000pcm

This spacious farmhouse offers flexible accommodation comprising of an entrance hall with central staircase, kitchen/bre...

Northington, Alresford, Hampshire, SO24

4 Bedroom Cottage | £3,000pcm

A lovely period property set in a stunning location with far-reaching views over the Candover Valley.

Broad Street, Alresford, Hampshire, SO24

4 Bedroom Townhouse | £3,000pcm

Nestled in the heart of New Alresford, this exquisite property offers a perfect blend of modern elegance and traditional...

Hellards Estate Agents (Alresford)

11 Broad Street, Alresford, Hampshire, SO24 9AR

01962 736333

How much is your home worth?

Use our short form to request a valuation of your property.

Request a Valuation
©2025 The Guild of Property Professionals. All rights reserved. Terms and Conditions | Privacy Policy | Cookie Policy | Complaints Policy | Members Login
The Guild of Property Professionals Trading Address: 121 Park Lane, London W1K 7AG. GPEA Limited. Registered in England & Wales.  Company No: 02819824.  Registered Office Address: 2 St. Stephen's Court, St. Stephen's Road, Bournemouth, Dorset, England, BH2 6LA.  VAT Registration No: 576 8795 61
Book a Property Valuation Update Cookies Preferences