11 Church Street, Ballymoney

£15,000pa

Mixed Use for rent in Ballymoney

Prominent Town Centre location in Ballymoney with large frontage.


Former Bank premises.


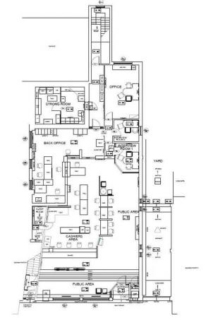
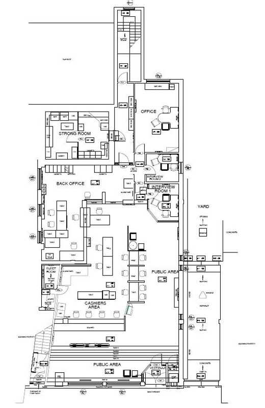
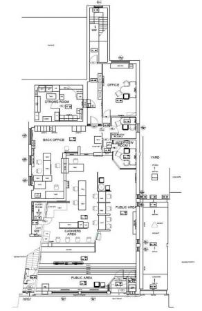
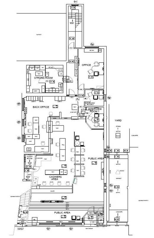
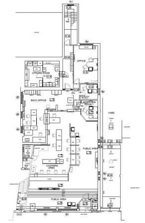
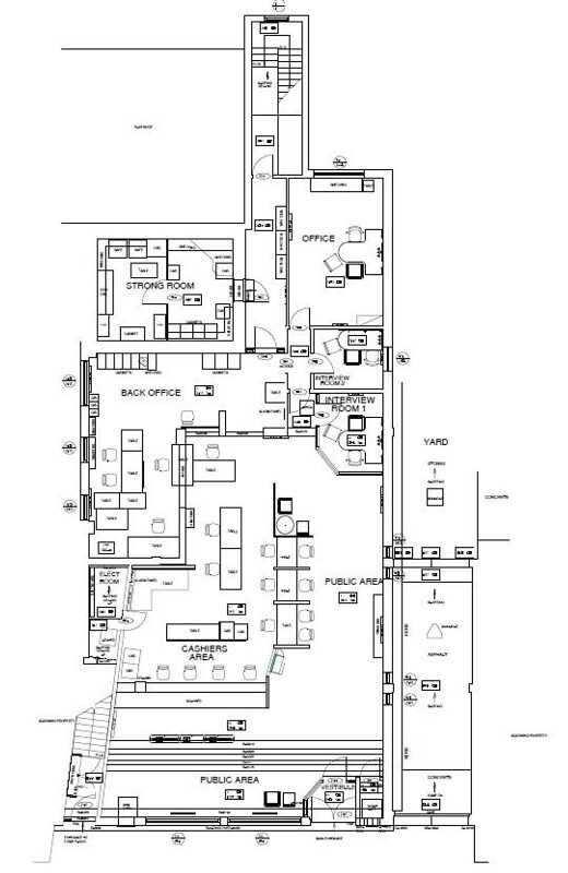
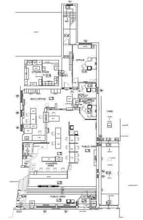
The unit comprises of the ground floor (circa 2750 sq ft).


Suitable for a range of uses (subject to any necessary consents or approvals).


 


Located on one of Ballymoneys busiest shopping streets.


The ground floor is configured to provide a former banking hall (a portion that is double height) open plan office, three private offices and a vault to the rear.


Lower ground floor comprising of two stores, kitchen and wc facilities included.


The property could be sub divided.


Car parking to rear of property (parks 3-4 cars).


Public car parking nearby.


 


 


Lease Details


Rent: £15,000 (plus vat if applicable).


 


Terms: Terms negotiable.


 


Rent Review: Negotiable.


 


Insurance: Landlord to ensure, tenant to reimburse.


 


Repairs: Effectively full repairing lease.


 


VAT: All outgoings and rentals are quoted exclusive of but may be liable to VAT.


 


Viewing strictly by appointment only.


 

Property Ref: ST0608216_975070

Share:

Similar Properties

14 High Street, Ballymoney

Mixed Use | £12,500pa

49 Main Street, Ballymoney

Shop | £12,000pa

7 High Street, Antrim

Shop | £20,000pa

Field (3), Boleran Road, Garvagh, Coleraine

Farm Land | Offers in region of £29,000

Field (4), Boleran Road, Garvagh, Coleraine

Farm Land | Offers in region of £29,000

McAfee Properties (Ballymoney)

Ballymoney, Ballymoney, County Antrim, BT53 6AN

028 2766 7676

How much is your home worth?

Use our short form to request a valuation of your property.

Request a Valuation
©2026 The Guild of Property Professionals. All rights reserved. Terms and Conditions | Privacy Policy | Cookie Policy | Complaints Policy | Members Login
The Guild of Property Professionals Trading Address: 121 Park Lane, London W1K 7AG. GPEA Limited. Registered in England & Wales.  Company No: 02819824.  Registered Office Address: 2 St. Stephen's Court, St. Stephen's Road, Bournemouth, Dorset, England, BH2 6LA.  VAT Registration No: 576 8795 61
Book a Property Valuation Update Cookies Preferences