The Elms, Barnes, SW13

£3,000pcm
Let Agreed
This property listing is now Let Agreed

2 Bedroom End of Terrace House for rent in Barnes

2 2 3
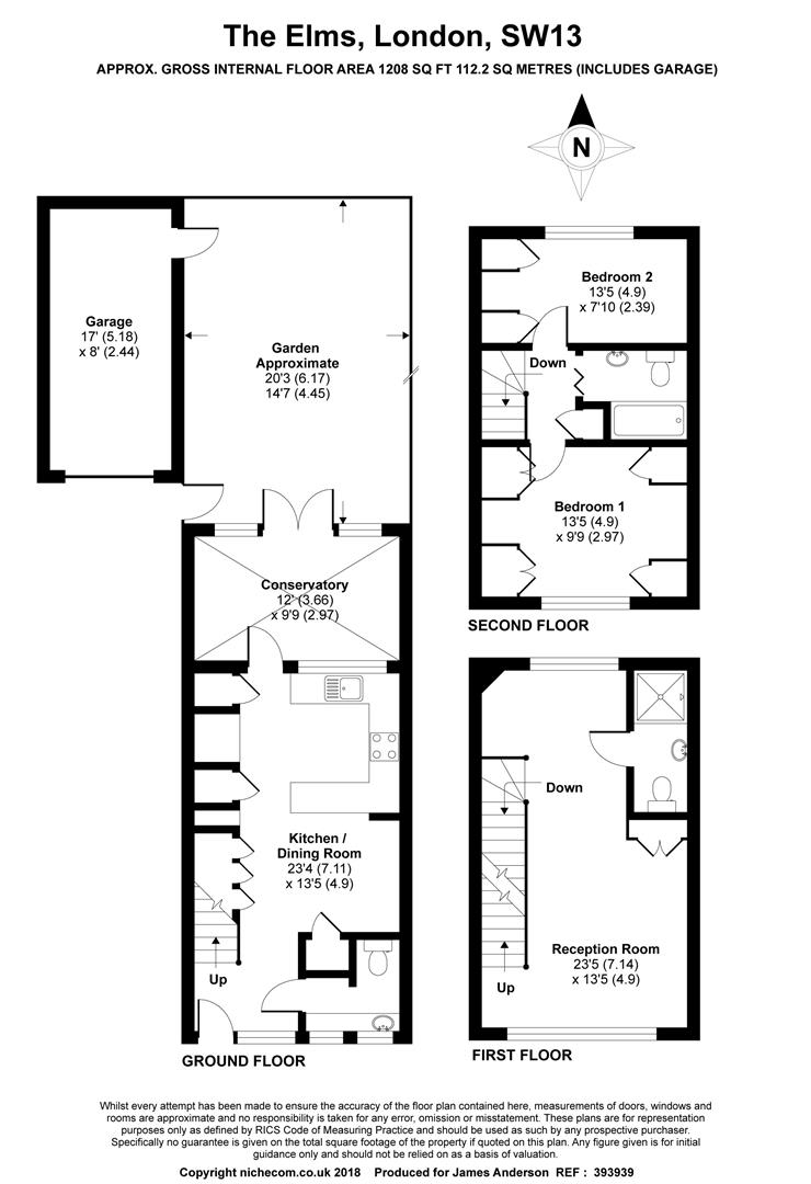
  • 2 Double Bedrooms
  • 2 Bathrooms and Seperate WC
  • Two Reception Rooms
  • Large Eat in Kitchen
  • EPC Rating D
  • Barnes Station
  • East Sheen Primary
  • Vine Road
  • Patio Garden
  • Council Tax Band F (£2920)

A beautifully presented modern three-bedroom mid-terrace house, ideally situated within a private gated cul-de-sac in the sought-after area of Barnes.
The ground floor features a fully fitted contemporary kitchen and a spacious open-plan living and dining area, with direct access to a private rear garden - ideal for both relaxing and entertaining.
On the first floor, there is a generous double bedroom with an en-suite bathroom, along with an additional reception room offering flexible living space, perfect as a family room, home office, or fourth bedroom if required.
The top floor comprises two further well-proportioned double bedrooms, both benefiting from ample built-in storage, as well as a newly fitted modern family bathroom.
Presented in beautiful condition throughout, this superb home further benefits from off-street parking and a separate garage, offering an excellent combination of style, comfort, and practicality in a highly desirable Barnes location.

Property Ref: 31703240

Share:

Similar Properties

Everdon Road, Barnes, SW13

3 Bedroom Terraced House | £3,000pcm

An exceptional family house located moments from Hammersmith Bridge. This stunning home has been recently refurbished to...

Ashleigh Road, Mortlake, SW14

4 Bedroom Flat | £3,000pcm

This is a top floor maisonette over 2 floors. Newly refurbished to a very high standard with new carpet and wooden floor...

Grange Road, Barnes, SW13.

3 Bedroom Flat | £3,000pcm

This stunning Townhouse is located in the heart of Barnes Village, only moments from the shops and amenities on Church R...

Castelnau Mansions, Barnes, SW13

3 Bedroom Flat | £3,095pcm

This top-floor mansion apartment in North Barnes, with views of the playing fields, offers spacious and elegant living....

Thorne Street, Barnes, SW13

2 Bedroom Terraced House | £3,200pcm

This beautiful family home, located in the sought-after Little Chelsea neighbourhood, is filled with natural light. The...

Thorne Street, Barnes, SW13

2 Bedroom Semi-Detached House | £3,200pcm

Nestled in the sought-after enclave of Little Chelsea, this well-appointed home boasts an abundance of character and nat...

James Anderson (Barnes - Lettings)

65 Barnes High Street, Barnes - Lettings, London, SW13 9LD

020 8878 8688

How much is your home worth?

Use our short form to request a valuation of your property.

Request a Valuation
©2026 The Guild of Property Professionals. All rights reserved. Terms and Conditions | Privacy Policy | Cookie Policy | Complaints Policy | Members Login
The Guild of Property Professionals Trading Address: 121 Park Lane, London W1K 7AG. GPEA Limited. Registered in England & Wales.  Company No: 02819824.  Registered Office Address: 2 St. Stephen's Court, St. Stephen's Road, Bournemouth, Dorset, England, BH2 6LA.  VAT Registration No: 576 8795 61
Book a Property Valuation Update Cookies Preferences