Charles Street, Barnes SW13

£3,600pcm
Let Agreed
This property listing is now Let Agreed

3 Bedroom Terraced House for rent in Barnes

1 3 2
  • Three Bedroom House
  • Two Bathroom
  • Allocated Off Street Parking
  • Private Garden
  • Dining Room
  • Bright Reception
  • Close to Barnes Primary School
  • Close to Transport

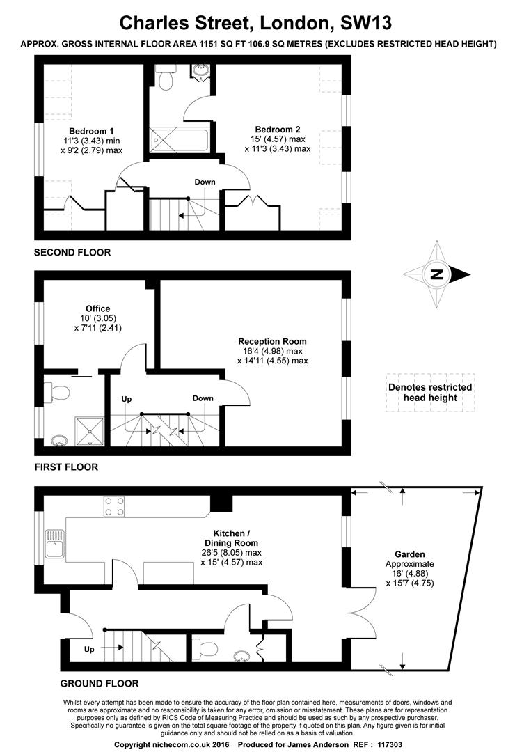
LET AGREED- A modern and well presented three bedroom, two bathroom town house that is situated in the desirable location of Little Chelsea in Barnes. The property offers a contemporary fully fitted open plan kitchen and dining, cloakroom/utility room and private patio garden on the ground floor. The first floor benefits a bright reception room and one double bedroom with an en-suite shower room. The second floor provides two further double bedrooms, one with ensuite bathroom. This modern home also boasts off street allocated parking and is within very close distance to Barnes Primary School. The shopping, pubs and restaurants of White Hart Lane are just at the end of Charles Street as is the River Thames. Local parks are close by and Richmond Park is easily accessible. Barnes Bridge station is very nearby and offers services to Waterloo in 26 minutes. Both the 209 and 419 buses provide frequent services to Hammersmith

Property Ref: 486486_33413294

Share:

Similar Properties

Victoria Road, Mortlake, SW14

2 Bedroom Terraced House | £3,550pcm

This charming two double bedroom cottage is located in the sought after Victoria Road just moments from Mortlake train s...

Lonsdale Road, Barnes, SW13

3 Bedroom Not Specified | £3,500pcm

Upper Richmond Road, SW15

3 Bedroom Detached House | £3,500pcm

St. Ann's Road, Barnes

3 Bedroom Flat | £3,750pcm

This beautifully presented 3-bedroom split level maisonette is ideally located near the River Thames, Barnes Bridge Stat...

White Hart Lane, Barnes, SW13

3 Bedroom Semi-Detached House | £3,750pcm

A lovely three bedroom end of terrace house situated on the popular White Hart Lane, Barnes. The property comprises of a...

The Broadway, London

3 Bedroom House | £3,750pcm

A unique and truly exceptional rental opportunity, this architecturally designed "hidden home" has been meticulously cra...

James Anderson (Barnes - Lettings)

65 Barnes High Street, Barnes - Lettings, London, SW13 9LD

020 8878 8688

How much is your home worth?

Use our short form to request a valuation of your property.

Request a Valuation
©2026 The Guild of Property Professionals. All rights reserved. Terms and Conditions | Privacy Policy | Cookie Policy | Complaints Policy | Members Login
The Guild of Property Professionals Trading Address: 121 Park Lane, London W1K 7AG. GPEA Limited. Registered in England & Wales.  Company No: 02819824.  Registered Office Address: 2 St. Stephen's Court, St. Stephen's Road, Bournemouth, Dorset, England, BH2 6LA.  VAT Registration No: 576 8795 61
Book a Property Valuation Update Cookies Preferences