Platinum Apartments, Branston Street, Birmingham

£900pcm

1 Bedroom Apartment for rent in Birmingham

1 1
  • Platinum Apartments
  • One Bed, One Bath
  • Fully Fitted Kitchen
  • Double bedroom
  • Open plan lounge/diner
  • Plenty of storage space
  • Allocated Parking
  • Large Terrace
  • Located In the Jewellery Quarter
  • Available 24th November

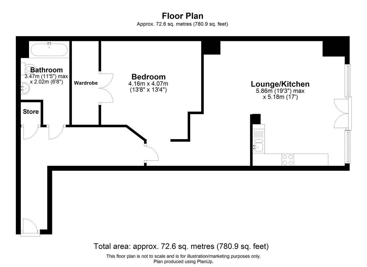
Platinum Apartments – Branston Street, Jewellery Quarter

A bright, spacious, and modern one-bedroom furnished apartment with a large private terrace and secure parking, located in the sought-after Platinum Apartments development.

Apartment Features:

-Generously sized open-plan living and dining area with floor-to-ceiling windows, allowing for plenty of natural light
-Direct access to a large private terrace – perfect for outdoor relaxation or entertaining
-Separate double bedroom with ample built-in storage
-Fully fitted kitchen with integrated appliances
-Spacious bathroom featuring both a bathtub and overhead shower
-Welcoming entrance hallway with an airing cupboard and dedicated coat storage space
-Offered fully furnished, ready to move in
-Includes secure allocated parking

Location Highlights:

-Situated in a prime location on Branston Street, this apartment offers easy access to:
-St. Paul's Square and the heart of the Jewellery Quarter
-Brindleyplace, Broad Street, and Fiveways
-The refurbished canal-side district, home to a variety of vibrant restaurants, bars, and cafés
-Excellent transport links with main bus routes within walking distance
-Approximately 15–20 minutes' walk to Birmingham New Street Station

Council Tax Band : D  

Property Ref: 457889_103655002289

Share:

Similar Properties

St Pauls Square, Birmingham,

Land | £900pcm

One room, ground floor office 7.78m x 4.58m (35.50 sq. m. or 383 sq. ft.) to let together with use of shared facilities...

Rotunda, Birmingham B2

1 Bedroom Apartment | £900pcm

ROTUNDA | One Bedroom | Furnished | Concierge | Prime City Centre Location | Available 27th November

Longleat Avenue, Birmingham, West Midlands

1 Bedroom Apartment | £875pcm

LONGLEAT AVENUE | One Bedroom | Balcony | Furnished | Views overlooking the park.

Arden Gate, William Street, Birmingham

1 Bedroom Apartment | £995pcm

Davidson Estates are delighted to bring to the market this one bedroom apartment at the popular Arden Gate development i...

Sherborne Lofts, Waterfront, Grosvenor Street West, Birmingham

1 Bedroom Apartment | £995pcm

SHERBORNE LOFTS | Canalside | Private Terrace | One Bedroom | Secure Parking | Unfurnished | Concierge | Close to Brindl...

The Bank, 60 Sheepcote Street, Birmingham

1 Bedroom Apartment | £1,000pcm

THE BANK | One Bedroom | Furnished | Concierge | Residents Gym | Available 29th November

Davidson Estates (Edgbaston)

Edgbaston, Birmingham, B15 1JD

0121 455 7727

How much is your home worth?

Use our short form to request a valuation of your property.

Request a Valuation
©2025 The Guild of Property Professionals. All rights reserved. Terms and Conditions | Privacy Policy | Cookie Policy | Complaints Policy | Members Login
The Guild of Property Professionals Trading Address: 121 Park Lane, London W1K 7AG. GPEA Limited. Registered in England & Wales.  Company No: 02819824.  Registered Office Address: 2 St. Stephen's Court, St. Stephen's Road, Bournemouth, Dorset, England, BH2 6LA.  VAT Registration No: 576 8795 61
Book a Property Valuation Update Cookies Preferences