The Pollards, Bourne

£750pcm

1 Bedroom Flat for rent in Bourne

1 1 1
  • Top Floor purpose built flat
  • Kitchen/Diner opening into Living Room Beyond
  • Double Bedroom
  • Separate Shower Room
  • Allocated Parking to Rear for 1 Car
  • Modern Electric Heating System
  • Please see Key Facts for Tenants for Material Information Disclosures


Entering this modern property to the front, via a communal entrance, the stairways lead to the private front door to the property itself. Inside there is a good sized hallway, with large storage cupboards, a kitchen/dining room opening into the living room beyond, a double bedroom and separate shower room. The property also benefits from electric heating and double glazing.
The Pollards forms part of the ever popular Elsea Park development on the outskirts of the thriving market Town of Bourne. Offering easy access to all the Towns local amenities as well as onward transport links in nearby Peterborough this property really is ideally situated. Single Allocated parking space.

Agents Note:
Holding Deposit - £173
Security Deposit – £865
Local Authority – South Kesteven District Council
Council Tax Band – A
EPC Rating - D

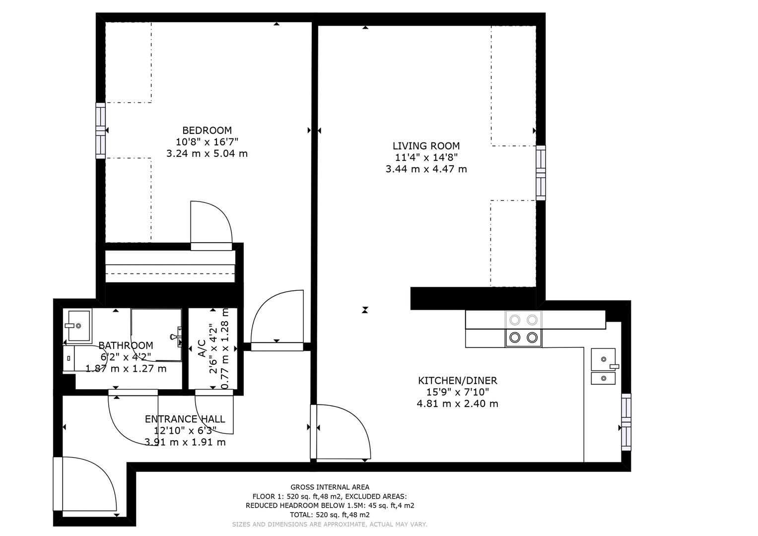
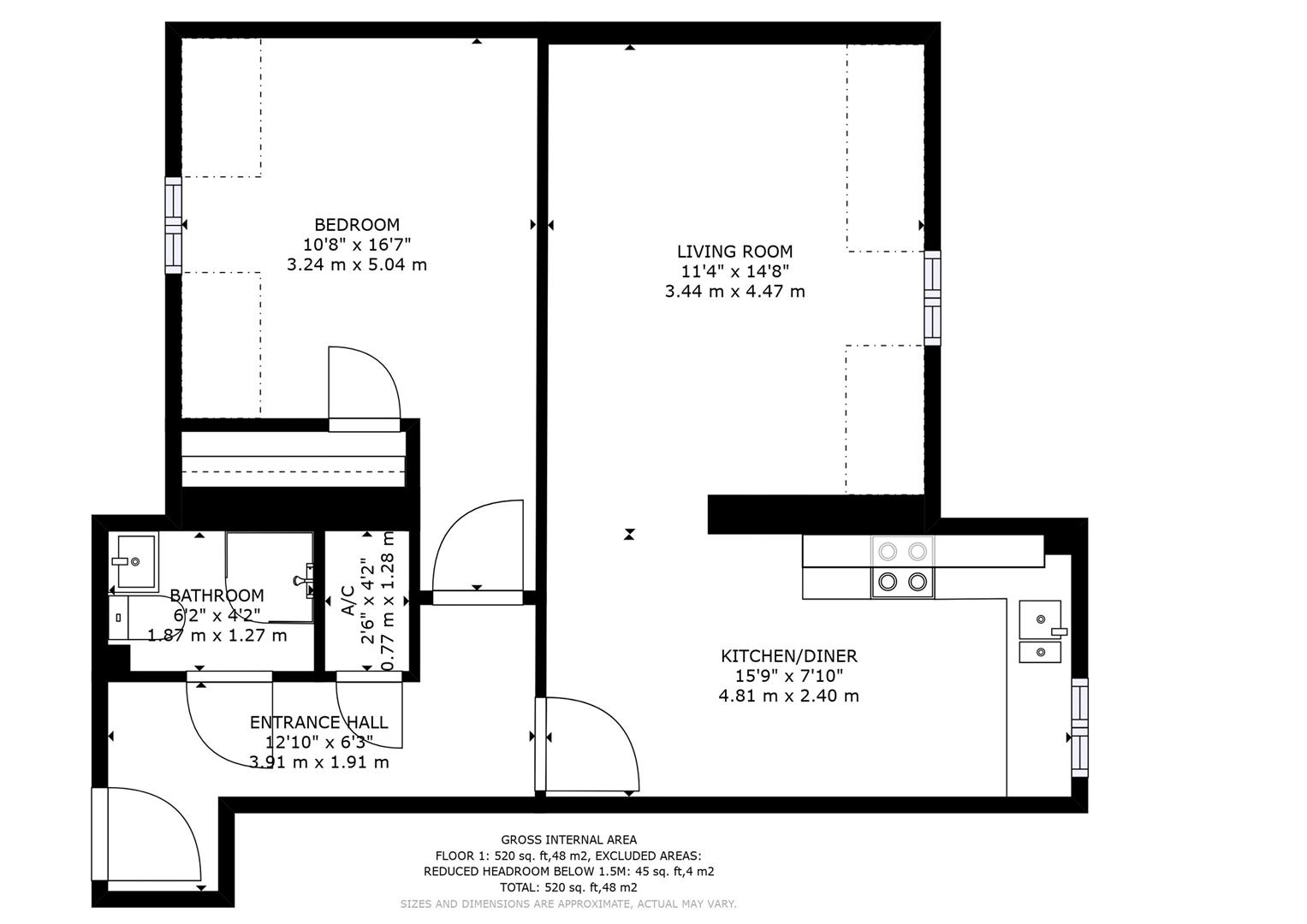
Entrance Hall

Kitchen/Diner
15' 9'' x 7' 10'' (4.80m x 2.39m)

Living Room
11' 4'' x 14' 8'' (3.45m x 4.47m)

Bedroom
10' 8'' x 16' 7'' (3.25m x 5.05m) max

Shower Room


Sizes and dimensions are calculated using a laser measuring modelling device and as such whilst representative it must be noted that they are all approximate, actual sizes may vary.

Important Information

  • This Council Tax band for this property is: A
  • EPC Rating is D

Property Ref: 43069_34419870

Share:

Similar Properties

Blackthorn Close, Deeping St. James

1 Bedroom Terraced House | £750pcm

Well-proportioned 1 bedroom terraced house in a residential part of Deeping St James, with the benefit of a conservatory...

Brownlow Terrace, Stamford

1 Bedroom Studio Apartment | £695pcm

Refitted ground floor studio - with Modern Kitchen & Shower Room. Brownlow Terrace sits in an elevated position on the a...

Ash Place, Stamford

1 Bedroom End of Terrace House | £795pcm

A one bedroom end of terrace house, close to local amenities, popular schools and transport routes. Benefitting from a m...

North Street, Stamford

1 Bedroom Studio Apartment | £795pcm

Modern furnished studio apartment on North Street, just moments from the High Street and in the very heart of Stamford T...

St Pauls Street, Stamford

1 Bedroom Flat | £795pcm

A beautifully presented first floor 1 bedroom apartment situated in the centre of Stamford, ideally placed to offer easy...

Goodwin Property (Stamford)

St Johns Street, Stamford, Lincolnshire, PE9 2DA

01780 750000

How much is your home worth?

Use our short form to request a valuation of your property.

Request a Valuation
©2026 The Guild of Property Professionals. All rights reserved. Terms and Conditions | Privacy Policy | Cookie Policy | Complaints Policy | Members Login
The Guild of Property Professionals Trading Address: 121 Park Lane, London W1K 7AG. GPEA Limited. Registered in England & Wales.  Company No: 02819824.  Registered Office Address: 2 St. Stephen's Court, St. Stephen's Road, Bournemouth, Dorset, England, BH2 6LA.  VAT Registration No: 576 8795 61
Book a Property Valuation Update Cookies Preferences