Camden High Street, Camden Town, London

£55,000pa

Commercial Property for rent in Camden Town

  • Excellent location
  • Established business
  • Two bedroom apartments
  • Two Studios
  • Cold room

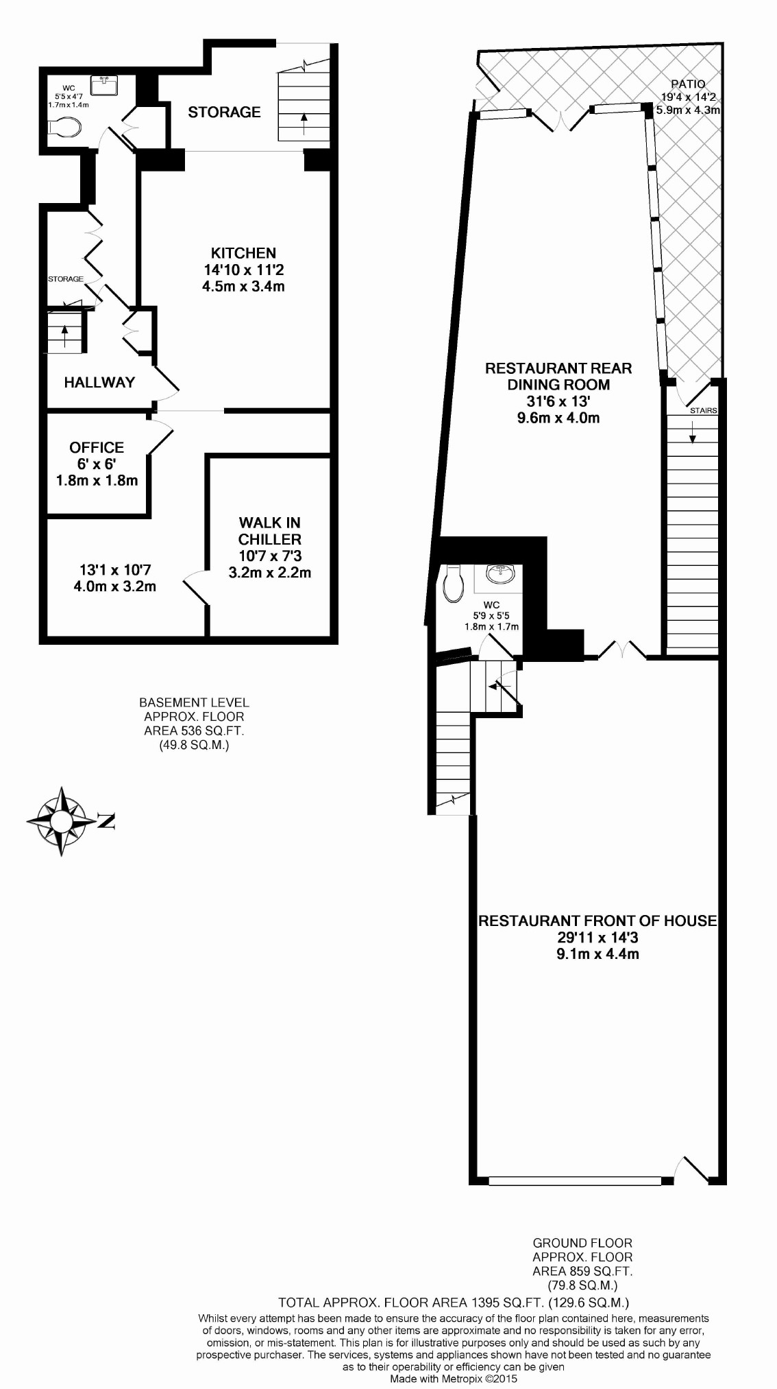
Restaurant Premises in a sought after location on Camden High Street. This premises offers 2 income sources under one lease, Restaurant on the ground floor & basement plus the added income from the residential units above (generating £56,400 per annum, approx). This is a rare opportunity to acquire this leasehold premises and business. Located on one of the trendiest and busiest High Streets in London during the day this premises benefits from heavy footfall to Camden Towns many shops & markets. In the evening numerous bars and clubs ensure the visitor numbers do not fall. Moments from Mornington Crescent Underground station and opposite well known KOKO night club which not only holds regular club nights but is also a regular concert venue. The Commercial unit is approximately 1,390 Sq Ft. The basement houses a large kitchen, cold room and storage space. The ground floor contains the seating area and preparation area. The residential upper units are spread over 3 floors, comprised of 3 x One Beds.

Restaurant Premises in a sought after location on Camden High Street. This premises offers 2 income sources under one lease, Restaurant on the ground floor & basement plus the added income from the residential units above (generating £56,400 per annum, approx).

This is rare opportunity to acquire this leasehold premises and business. Located on one of the trendiest and busiest High Streets in London during the day this premises benefits from heavy footfall to Camden Towns many shops & markets. In the evening numerous bars and clubs ensure the visitor numbers do not fall. Moments from Mornington Crescent Underground station and opposite well known KOKO night club which not only holds regular club nights but is also a regular concert venue.

The Commercial unit is approximately 1,390 Sq Ft. The basement houses a large kitchen, cold room and storage space. The front section of the ground floor is set up as a restaurant. The residential upper units are spread over 3 floors, comprised of 2 studio flats and 2 x One Beds.

Important notice: Victorstone, their clients and any joint agents give notice that: These particulars are prepared as a general guide to the property and do not form part of any offer or contract and must not be relied upon as statements or representations of fact. They have not conducted a structural survey and the services, appliances and specific fittings have not been tested. All photographs, measurements, floorplans and distances referred to are given as a guide only. Any and all fixtures and fittings listed in these particulars are deemed removable by the vendor. Any measurements should not be relied upon for the purchase of flooring or any other fixtures or fittings. Ground rent, service charges and any other lease details (where applicable) and council tax are given as a guide only and should be checked and confirmed by your Solicitor prior to exchange of contracts.

Property Ref: 25663_26727673

Share:

Similar Properties

Kilburn High Road, Kilburn, London

Commercial Property | £35,000pa

Newly refurbished ground floor commercial unit suitable for a variety of uses, Retail/Cafe/A1/B1. Located a short walk...

Royal College Street, Camden

2 Bedroom Shop | £27,000pa

Situated just at the junction between Camden Road and Royal College Street this Lock Up Shop is moments away from Camden...

Fulham Road, Fulham, London

Café | £25,000pa

A3 class use premises for lease Located on a populars through fare, the current business benefits from excellent take aw...

Torriano Mews, Kentish Town, London

Office | £60,000pcm

Commercial Premises - B1 use, CIRCA 2325 SQFT set over three floors, available on assignment of FRI lease. Location:...

Victorstone Property Consultants (Camden)

Plender Street, Camden, London, NW1 0JL

0207 388 5504

How much is your home worth?

Use our short form to request a valuation of your property.

Request a Valuation
©2026 The Guild of Property Professionals. All rights reserved. Terms and Conditions | Privacy Policy | Cookie Policy | Complaints Policy | Members Login
The Guild of Property Professionals Trading Address: 121 Park Lane, London W1K 7AG. GPEA Limited. Registered in England & Wales.  Company No: 02819824.  Registered Office Address: 2 St. Stephen's Court, St. Stephen's Road, Bournemouth, Dorset, England, BH2 6LA.  VAT Registration No: 576 8795 61
Book a Property Valuation Update Cookies Preferences