Queen Street, Castleford

£550pcm

1 Bedroom Flat for rent in Castleford

1 1 1
  • One Bedroom Flat
  • Open Plan Lounge Kitchen
  • Modern Bathroom
  • Gas Central Heated and Double Glazed Throughout
  • Shared Rear Garden
  • EPC GRADE D
  • Council Tax Band A

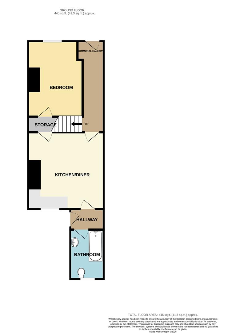
AVAILABLE NOW! We are delighted to present this conveniently located and realistically priced one double bedroom flat located within walking distance of Castleford town centre and public transport links. The accommodation offers an open plan lounge/kitchen, one double bedroom and a bathroom.

Communal Hall - The communal hall makes for a very welcome entrance in to the property.

Lounge/Kitchen - 13' 4'' x 13' 6'' (4.07m(max) x 4.11m(max)) - This excellent sized room is well presented with a picture window with a view to the front of the property. The electric fire in hearth makes the room feel homely, the room consists of TV point, gas central heated radiator and laminate flooring. The kitchen area is a well presented space with modern wall and base units with work surface over, single sink and drainer and mixer tap, it also has an electric oven in place.

Utility Room - 3' 7'' x 6' 0'' (1.10m x 1.82m) - Enter this room from the lounge area it has plumbing for a washing machine and laminate flooring there is also a door to the rear of the property.

Bedroom - 9' 7'' x 13' 3'' (2.91m(max) x 4.05m(max)) - This room has a window with views to the front of the property, its a good sized double with a gas central heated radiator.

Bathroom - 6' 2'' x 6' 6'' (1.87m x 1.99m) - The lovely three piece bathroom suite consists of low flush WC, wash hand basin and a panelled bath with an electric shower over. The tiled surround gives the room a nice clean finish, the combi boiler is situated in this room along with a gas central heated radiator.

Shared Yard -

Property Ref: 53422_34061243

Share:

Similar Properties

Pelham Street, Worksop

2 Bedroom Flat | £550pcm

Nestled in the heart of Worksop on Pelham Street, this two-bedroom maisonette is an excellent opportunity for those seek...

Station Lane, Featherstone

1 Bedroom Flat | £575pcm

This first-floor flat centrally located in Featherstone on Station Lane. The location of this apartment is truly ideal,...

Queen Street, Castleford

1 Bedroom Flat | £600pcm

We are pleased to present this well-situated and competitively priced one-bedroom flat, ideally located within walking d...

Shakespeare Crescent, Castleford

2 Bedroom Flat | £675pcm

Nestled within a serene cul-de-sac, this charming two-bedroom ground floor flat offers an ideal retreat for comfortable...

Castle Dwellings (Castleford)

22 Bank Street, Castleford, West Yorkshire, WF10 1JD

01977 285 111

How much is your home worth?

Use our short form to request a valuation of your property.

Request a Valuation
©2025 The Guild of Property Professionals. All rights reserved. Terms and Conditions | Privacy Policy | Cookie Policy | Complaints Policy | Members Login
The Guild of Property Professionals Trading Address: 121 Park Lane, London W1K 7AG. GPEA Limited. Registered in England & Wales.  Company No: 02819824.  Registered Office Address: 2 St. Stephen's Court, St. Stephen's Road, Bournemouth, Dorset, England, BH2 6LA.  VAT Registration No: 576 8795 61
Book a Property Valuation Update Cookies Preferences