Edinburgh Road, Chatham

£950pcm
Let Agreed
This property listing is now Let Agreed

3 Bedroom Terraced House for rent in Chatham

2 3 1
  • THREE BEDROOM HOUSE
  • Close to local schools
  • Popular Area
  • EPC Rating D (64)
  • Two Reception Rooms
  • Good sized Rooms
  • CALL NOW TO VIEW!
  • AVAILABLE MARCH

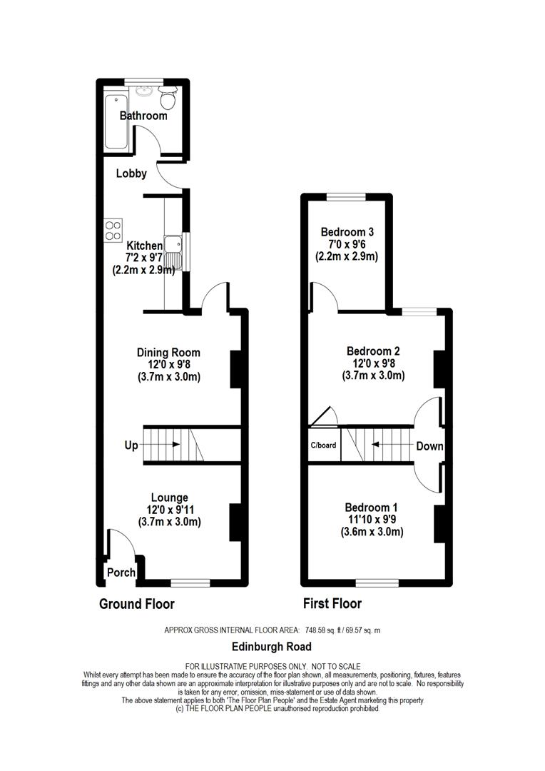
AVAILABLE JULY! Call now to view this three bedroom house in the popular Edinburgh Road. On the ground floor there is a Lounge, Dining Room, Kitchen and Bathroom. Upstairs there are two double bedrooms, with a single coming off the second. Externally there is an approx 55' rear garden. We would recommend you call us straight away as demand is expected to be high so call now on 01795 293000.

Property Ref: 22316_28603413

Share:

Similar Properties

St. Johns Avenue, Sittingbourne

3 Bedroom House | £950pcm

AVAILABLE IMMEDIATELY! Call now to view this large three bedroom house on St John's Avenue. The property has been refurb...

Gibbons Road, Sittingbourne

3 Bedroom Terraced House | £950pcm

IMMEDIATELY AVAILABLE PROPERTY IN ONE OF THE MOST SOUGHT AFTER LOCATIONS IN SITTINGBOURNE! We are delighted to present t...

Burley Road, Sittingbourne

3 Bedroom House | £950pcm

Available in March is this fantastic rental property on Burley Road, Sittingbourne. Properties of this condition are rar...

Hero Walk, Rochester

3 Bedroom Terraced House | £975pcm

IMMEDIATELY AVAILABLE! Call now to view this recently refurbished house on the popular Hero Walk. The property has plent...

Jacinth Drive, Sittingbourne

3 Bedroom Terraced House | £995pcm

Situated in the ever popular Sonora Fields this modern three bedroom property is presented to a high standard. To the gr...

Staplehurst Road, Sittingbourne

3 Bedroom End of Terrace House | £1,000pcm

EXCEPTIONAL DOWNSTAIRS ACCOMMODATION. Situated close to the Town Centre and Mainline station. The accommodation to the d...

LambornHill (Sittingbourne)

West Street, Sittingbourne, Kent, ME10 1AJ

01795 293000

How much is your home worth?

Use our short form to request a valuation of your property.

Request a Valuation
©2025 The Guild of Property Professionals. All rights reserved. Terms and Conditions | Privacy Policy | Cookie Policy | Complaints Policy | Members Login
The Guild of Property Professionals Trading Address: 121 Park Lane, London W1K 7AG. GPEA Limited. Registered in England & Wales.  Company No: 02819824.  Registered Office Address: 2 St. Stephen's Court, St. Stephen's Road, Bournemouth, Dorset, England, BH2 6LA.  VAT Registration No: 576 8795 61
Book a Property Valuation Update Cookies Preferences