Rookes Crescent, Nr City Centre, Chelmsford

£1,100pcm
Let Agreed
This property listing is now Let Agreed

2 Bedroom Apartment for rent in Chelmsford

1 2 2
  • EN-SUITE To Master Bedroom
  • Two DOUBLE Bedrooms
  • Modern FIRST FLOOR Apartment
  • Walking Distance to Chelmsford City Centre & Station
  • PRIVATE PARKING For Residents
  • Available ASAP

With the benefit of an EN-SUITE and TWO DOUBLE BEDROOMS is this spacious first floor apartment located within walking distance to Chelmsford's mainline Station. Offering a SPACIOUS LOUNGE/DINER, fitted kitchen, entrance hall, fitted bathroom and PRIVATE PARKING for residents.

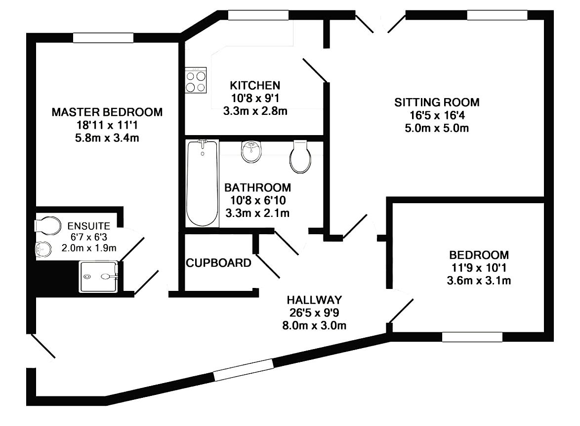
Communal Entrance: - Secure private telephone entry system, ***communal entrance only serving one other property***, stairs to first floor, entrance door to flat.

Entrance Hall: - Double glazed window to rear, doors to lounge, bedroom one, bedroom two, bathroom.

Lounge: - 4.42m > 3.66m x 4.22m (14'6" > 12' x 13'10") - Double glazed window to front, double glazed french doors to Juliet balcony, storage heater, door to kitchen, wood effect flooring.

Kitchen: - 2.82m x 2.59m (9'3" x 8'6") - Double glazed window to front, range of wall and base units, rolled edge work surfaces with stainless steel sink inset, integrated low level oven, electric hob, space for fridge freezer, washing machine, part tiled walls.

Bedroom One: - 5.00m > 2.90m x 3.15m (16'5" > 9'6" x 10'4") - Double glazed window to front, door to en-suite, storage heater, wood effect flooring.

En-Suite: - Fully tiled shower cubicle, wall mounted hand wash basin, low level W/C, part tiled walls.

Bedroom Two: - 3.23m x 2.51m (10'7" x 8'3") - Double glazed window to rear, storage heater.

Bathroom: - 2.21m x 1.68m (7'3" x 5'6") - Panel bath, wall mounted hand wash basin, low level W/C, part tiled walls, tiled flooring.

Agent Notes: - Council Tax Band: C

Property Ref: 56382_32250338

Share:

Similar Properties

Stanstrete Field, Great Notley, Braintree

2 Bedroom Semi-Detached House | £1,100pcm

AVAILABLE NOW and benefiting from a spacious lounge/diner, kitchen & well-proportioned UNOVERLOOKED rear garden is this...

Kings Road, Chelmsford

2 Bedroom Maisonette | £1,100pcm

Available from 23rd November for 12 month let is this SPACIOUS first floor MAISONETTE. With an OPEN PLAN LIVING AREA wit...

Church Road, Boreham, Chelmsford

2 Bedroom Apartment | £1,000pcm

Located on a PRIVATE GATED development and boasting an IMPRESSIVE 23' OPEN PLAN LIVING SPACE with modern kitchen and a B...

Gilson Close, Chelmer Village, Chelmsford

2 Bedroom Maisonette | £1,150pcm

AVAILABLE IMMEDIATELY to let is this SPACIOUS ground floor maisonette, boasting a WELL PRESENTED 21' OPEN PLAN LIVING AR...

Stanstrete Field, Great Notley, Braintree

2 Bedroom Apartment | £1,150pcm

**OPEN DAY: SAT 20TH JAN: 10.30am-12pm BY APPOINTMENT ONLY**An IMMACULATE & SPACIOUS ground-floor apartment with an OPEN...

Springfield Road, Springfield, Chelmsford

2 Bedroom Apartment | £1,150pcm

***Available Immediately*** Located within walking distance to the City Centre is this spacious first-floor apartment th...

Hamilton Piers (Great Notley)

Avenue West, Skyline 120 Business Park, Great Notley, Essex, CM77 7AA

1376341141

How much is your home worth?

Use our short form to request a valuation of your property.

Request a Valuation
©2025 The Guild of Property Professionals. All rights reserved. Terms and Conditions | Privacy Policy | Cookie Policy | Complaints Policy | Members Login
The Guild of Property Professionals Trading Address: 121 Park Lane, London W1K 7AG. GPEA Limited. Registered in England & Wales.  Company No: 02819824.  Registered Office Address: 2 St. Stephen's Court, St. Stephen's Road, Bournemouth, Dorset, England, BH2 6LA.  VAT Registration No: 576 8795 61
Book a Property Valuation Update Cookies Preferences