Upper Gladstone Road, Chesham

£1,775pcm
Let
This property listing is now Let

3 Bedroom Terraced House for rent in Chesham

2 3 2

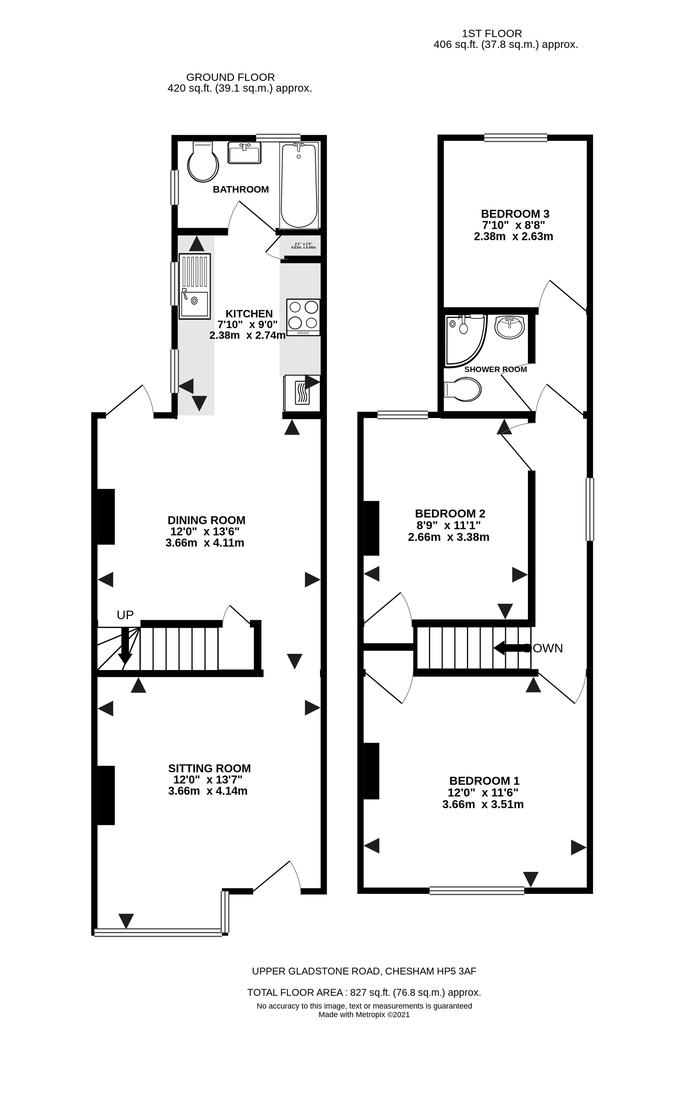
This character property has been tastefully refurbished throughout offering generous sized family living space.

The accommodation comprises of a sitting room with Square bay window, laminate flooring and spot lighting with dimmer switch. The rear of the property has been opened up to create a great entertaining space with laminate flooring throughout. The kitchen has been thoughtfully designed with a range of soft close base and wall mounted units, Zenith marble effect work surfaces, composite sink with mixer tap, touch screen electric fan oven, electric hob with tiled splash back and extractor above. Integrated appliances include a fridge/freezer, dishwasher and washing machine. The bathroom is fitted with a full-size bath with shower over and rainfall shower head with handheld attachment, basin with mixer tap and toilet.

To the first floor are three bedroom all with original cast iron fireplaces and two with a built-in cupboards, there is also a separate shower room.

Outside

To the front the property is accessed by a pathway to the front door, gravel area with Buxton hedging. The rear garden has a patio area with outside tap, there will be steps to the rear garden which is mainly laid to lawn.

Important Information

  • This Council Tax band for this property is: C
  • EPC Rating is C

Property Ref: SOV220056

Share:

Similar Properties

Upper Gladstone Road, Chesham

3 Bedroom Terraced House | £1,775pcm

A well presented three bedroom, two bathroom Victorian terrace house, offering a light and airy living space. Convenient...

Brockhurst Road, Chesham

3 Bedroom End of Terrace House | £1,750pcm

A well presented, three bedroom end of terraced character cottage with many original features. Conveniently located with...

Gladstone Road, Chesham

3 Bedroom Terraced House | £1,725pcm

A beautifully presented three bedroom Victorian cottage with parking, conveniently located within walking distance of Ch...

Hervines Court, Hervines Road

2 Bedroom Terraced House | £1,850pcm

A highly desirable modern two double bedroom house with attractive west facing garden, allocated parking and a garage in...

Old Mill Gardens, Berkhamsted

3 Bedroom Terraced House | £1,950pcm

A modern three bedroom house with garage and off street parking for two cars. Ideally located for the centre of town wit...

Charles Street, Berkhamsted

4 Bedroom Terraced House | £2,750pcm

A beautifully presented four-bedroom Victorian home arranged over four floors, ideally located in the heart of Berkhamst...

Sovereign Estates (Berkhamsted)

High Street, Berkhamsted, Hertfordshire, HP4 1AD

01442 967550

How much is your home worth?

Use our short form to request a valuation of your property.

Request a Valuation
©2026 The Guild of Property Professionals. All rights reserved. Terms and Conditions | Privacy Policy | Cookie Policy | Complaints Policy | Members Login
The Guild of Property Professionals Trading Address: 121 Park Lane, London W1K 7AG. GPEA Limited. Registered in England & Wales.  Company No: 02819824.  Registered Office Address: 2 St. Stephen's Court, St. Stephen's Road, Bournemouth, Dorset, England, BH2 6LA.  VAT Registration No: 576 8795 61
Book a Property Valuation Update Cookies Preferences