Barnsley, Cirencester

£1,850pcm
Let Agreed
This property listing is now Let Agreed

2 Bedroom Cottage for rent in Cirencester

1 2 1
  • Two Bedroom Cottage
  • Newley Converted
  • Open Plan Kitchen & Living Area
  • Stylish Modern Bathroom
  • Located Within A Private Estate
  • Gigaclear Ultrafast Fibre Broadband Option
  • Private Gravel Courtyard
  • Allocated Parking

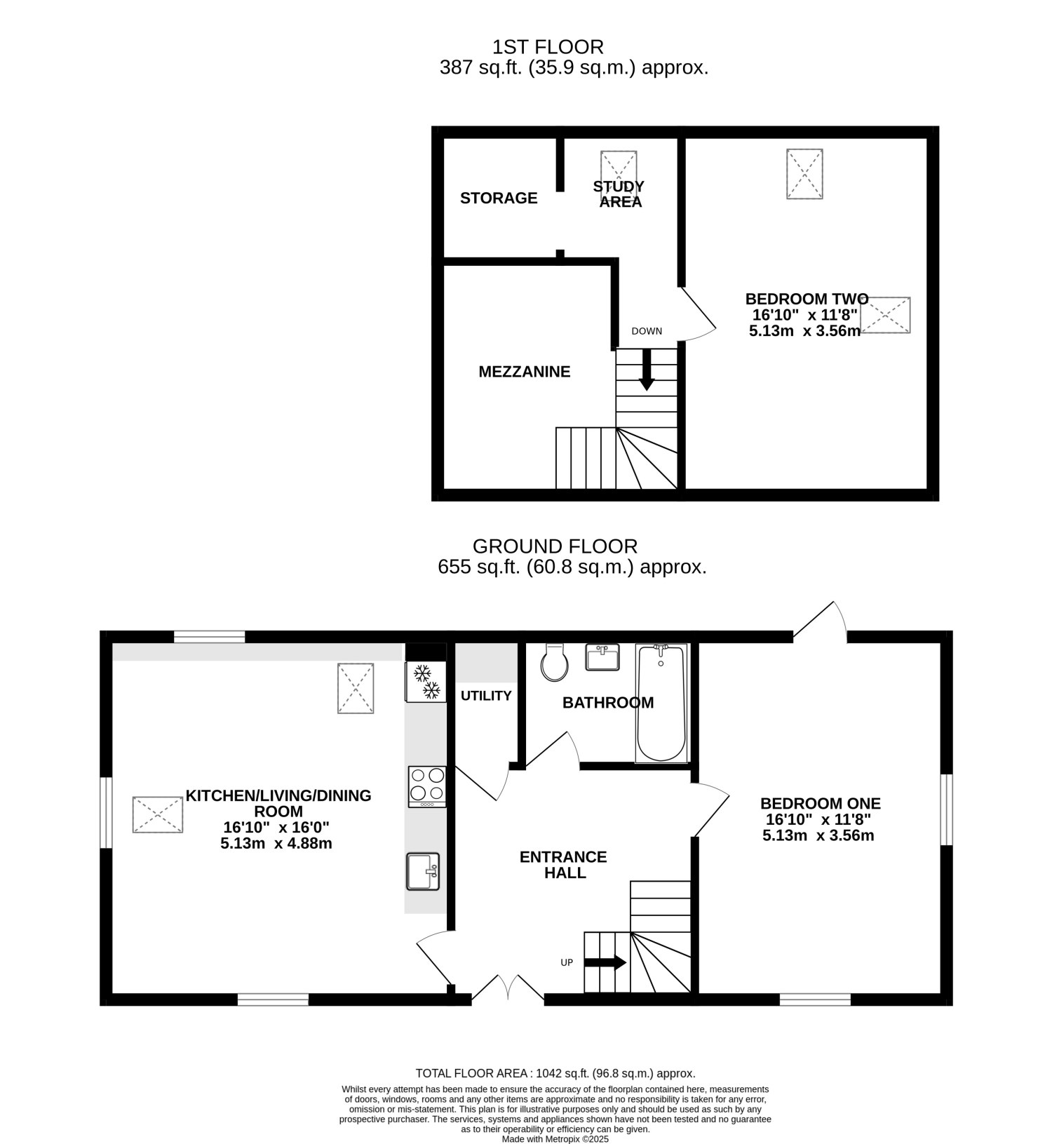
A Beautifully Converted Two-Bedroom Cottage, set within the grounds of the prestigious and picturesque Estate, this charming two-storey, two double bedroom cottage has been comprehensively and sympathetically converted to an exceptional standard. Available shortly and offered unfurnished, the property is ideal as a peaceful countryside retreat or a comfortable full-time home, with a long-term let available if desired.
Steeped in character, the cottage features beamed ceilings, exposed stonework, and other delightful period touches throughout. On the ground floor, the accommodation comprises a welcoming entrance hall, a spacious open-plan kitchen and living area with fitted units, integrated appliances, and a cooker, as well as a useful utility cupboard with plumbing for additional appliances. Also on this level is a stylish, well-appointed bathroom with a shower over the bath, and a generously sized second double bedroom or flexible reception room.

Upstairs, a versatile landing area offers space for a desk or reading nook, leading to a sizeable principal bedroom.

Outside, the property benefits from a sunny private courtyard and allocated parking. Residents also have the option to connect to Gigaclear ultrafast fibre broadband, ideal for home working or streaming.

This delightful cottage would best suit a single occupant or professional couple seeking a peaceful rural lifestyle within easy reach of local amenities.

Please note: Unfortunately, dogs, cats, and other free-roaming pets cannot be accommodated at this property.

Council Tax Band: Provisionally Band B
Viewings are welcomed by appointment 6 days a week although be aware that viewings may require at least 24 hours' notice to arrange access. Please note that prior to any subsequent tenancy offer being accepted, all prospective tenants will be required to supply identification documents and proof of affordability.

Agent notes: these particulars have been prepared as a general guide only. A detailed survey has not been carried out, nor the services, appliances, fittings, etc, been tested. If room sizes are included, they are for guidance and illustration purposes only. They may not be to scale and should not be relied upon for furnishing or other purposes. If there are any important matters likely to affect your decision to proceed, please contact us before viewing the property.

Tenant protection: Moore Allen & Innocent is a member of the royal institution of chartered surveyor's client money protection scheme, and a member of the property ombudsman independent redress scheme. You can find out more details via our website or by contacting the office directly.

Landlords: do you own a similar property? Moore Allen & Innocent are an independent, multi-award winning, sales and lettings estate agency with over 175 years of property experience across the Cotswolds and beyond. If you have a similar property that you would like rented out or are looking for an agent to take away the stress and manage a property for you, we would be delighted to discuss how we can help. For more information regarding our services and a free, no-obligation review, please contact us today.

Property Ref: 593341_10641957

Share:

Similar Properties

Bibury Lane, Winson

3 Bedroom Semi-Detached House | £1,850pcm

*** MOORE ALLEN & INNOCENT *** are delighted to offer for rent this EXTENDED 3 double bedroom Cotswold cottage on the ed...

Nutbeam, DUNTISBOURNE LEER

2 Bedroom Cottage | £1,850pcm

*** MOORE ALLEN & INNOCENT *** are delighted to offer this REFURBISHED 2 DOUBLE BEDROOM barn conversion within the STUNN...

Lower High Street, Burford

3 Bedroom Cottage | £1,850pcm

*** MOORE ALLEN & INNOCENT *** are delighted to offer this SPACIOUS 3 DOUBLE BEDROOM Period property occupying an enviab...

Sherborne Street, LECHLADE

3 Bedroom Semi-Detached House | £1,895pcm

* MOORE ALLEN & INNOCENT * are delighted to offer a Charming 3-bed semi-detached cottage with open plan living, in a qui...

COATES, GL7 6NQ

5 Bedroom Detached House | £1,895pcm

*** MOORE ALLEN & INNOCENT *** are very pleased to offer this well-proportioned 5 BEDROOM, 3 BATH /SHOWER ROOM detached...

Broadwell, Lechlade

3 Bedroom Cottage | £1,900pcm

*** MOORE ALLEN & INNOCENT *** are thrilled to offer this charming 3 DOUBLE BEDROOM, 1 RECEPTION ROOM COTTAGE with sizea...

Moore Allen & Innocent (Cirencester)

33 Castle Street, Cirencester, Gloucestershire, GL7 1QD

01285 648100

How much is your home worth?

Use our short form to request a valuation of your property.

Request a Valuation
©2026 The Guild of Property Professionals. All rights reserved. Terms and Conditions | Privacy Policy | Cookie Policy | Complaints Policy | Members Login
The Guild of Property Professionals Trading Address: 121 Park Lane, London W1K 7AG. GPEA Limited. Registered in England & Wales.  Company No: 02819824.  Registered Office Address: 2 St. Stephen's Court, St. Stephen's Road, Bournemouth, Dorset, England, BH2 6LA.  VAT Registration No: 576 8795 61
Book a Property Valuation Update Cookies Preferences