Nutbeam, DUNTISBOURNE LEER

£1,450pcm
Let Agreed
This property listing is now Let Agreed

1 Bedroom Cottage for rent in Cirencester

2 1 1
  • Newly Refurbished Barn Conversion
  • Very Well Appointed Throughout
  • Large Double Bedroom With Freestanding Bath
  • Beautifully Appointed Shower Room
  • 2 Reception Rooms
  • Oil Fired Central Heating
  • Garden, Patio & Parking
  • Private Rural Estate Position

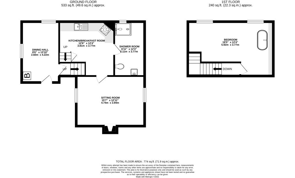
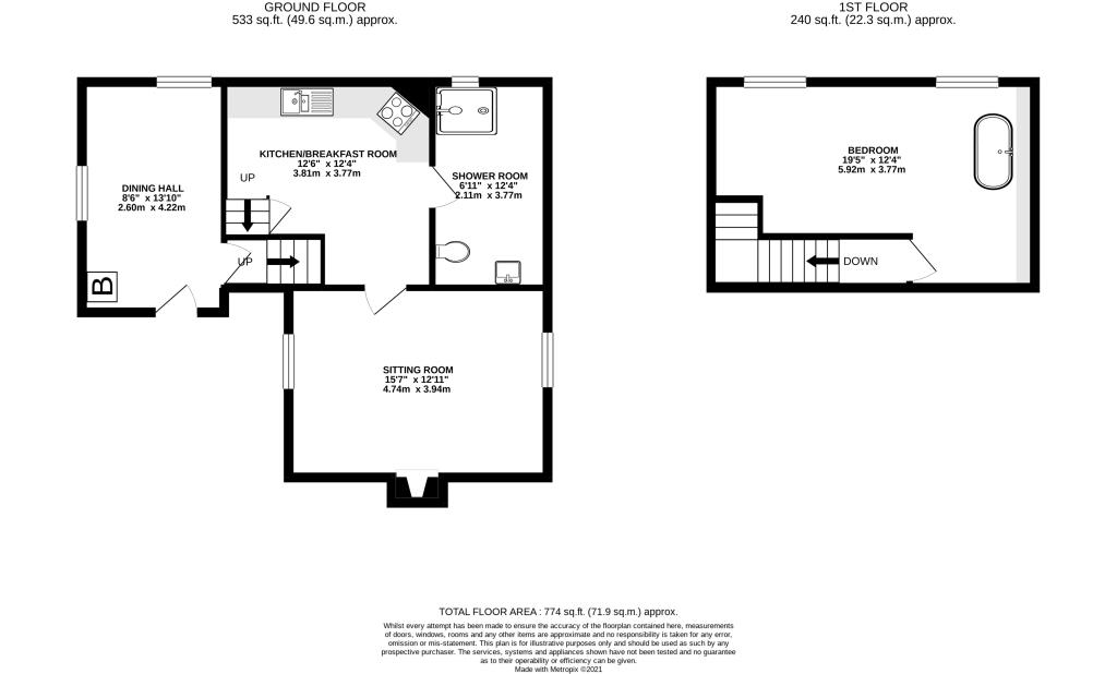
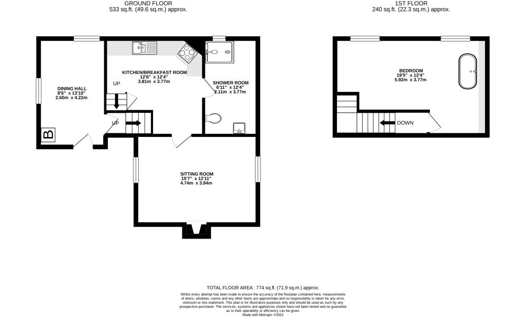
A beautifully appointed Cotswold stone barn conversion on a private country estate nestled within the stunning rural setting of the Duntisbourne valley between Cirencester and Cheltenham.
Available soon the deceptively spacious accommodation is presented to a very high standard including fitted kitchen diner and a luxurious shower /wet room with contemporary style fittings including a double walk in shower.
Tastefully decorated throughout, the centrally heated cottage provides well-proportioned and flexible accommodation full of charm and character features. The generously proportioned bedroom which occupies the entire upper floor and features a fabulous deep-sided roll top copper tone bath.In addition, the cottage offers a dual aspect sitting room - with beamed ceiling, and a feature fireplace with inset log burner. A second reception room, with its access to the patio terrace and views over the rear garden, could make an ideal study or home office perhaps? There is also the option of a Giga clear ultrafast Fibre broadband connection should you wish.Externally the cottage benefits from a sheltered seating terrace to the rear together with a large open plan lawned garden space (maintenance included within the rent) together with space for off-road parking. Whether as a full-time residence or maybe just an occasional rural retreat.

Viewings are welcomed by appointment 6 days a week although be aware that viewings may require at least 24 hours' notice to arrange access. Please note that prior to any subsequent tenancy offer being accepted, all prospective tenants will be required to supply identification documents and proof of affordability.

Agent notes: these particulars have been prepared as a general guide only. A detailed survey has not been carried out, nor the services, appliances, fittings, etc, been tested. If room sizes are included, they are for guidance and illustration purposes only. They may not be to scale and should not be relied upon for furnishing or other purposes. If there are any important matters likely to affect your decision to proceed, please contact us before viewing the property.
Tenant protection: Moore Allen & Innocent is a member of the royal institution of chartered surveyor's client money protection scheme, and a member of the property ombudsman independent redress scheme. You can find out more details via our website or by contacting the office directly.
Landlords: do you own a similar property? Moore Allen & Innocent are an independent, multi-award winning, sales and lettings estate agency with over 175 years of property experience across the Cotswolds and beyond. If you have a similar property that you would like rented out or are looking for an agent to take away the stress and manage a property for you, we would be delighted to discuss how we can help. For more information regarding our services and a free, no-obligation review, please contact us today.

Property Ref: 593341_9205255

Share:

Similar Properties

Furzey Hill, Meysey Hampton

3 Bedroom Cottage | £1,450pcm

*** MOORE ALLEN & INNOCENT *** are very pleased to offer this spacious 3-bedroom former granary conversion within a PICT...

Barnsley Park, BARNSLEY

2 Bedroom Barn Conversion | £1,450pcm

*** MOORE ALLEN & INNOCENT *** are very pleased to offer this BEAUTIFULLY CONVERTED 2 DOUBLE BEDROOM single storey cotta...

Hambidge Lane, LECHLADE

3 Bedroom Semi-Detached House | £1,450pcm

*** MOORE ALLEN & INNOCENT *** are delighted to offer this UPDATED 3 BEDROOM family home - with garden and GARAGE, posit...

Manor Farm, TURKDEAN

3 Bedroom Cottage | £1,475pcm

*** MOORE ALLEN & INNOCENT *** are delighted to offer this NEWLY RENOVATED 3 DOUBLE BEDROOM Cotswold stone cottage quiet...

Rectory Farm, DUNTISBOURNE ABBOTTS

3 Bedroom Semi-Detached House | £1,475pcm

*** MOORE ALLEN & INNOCENT *** are delighted to offer this UPDATED 3 BEDROOM estate cottage occupying an enviable positi...

The Street, OAKSEY

3 Bedroom Detached Bungalow | £1,495pcm

*** MOORE ALLEN & INNOCENT *** are delighted to offer this MODERN and DECEPTIVELY SPACIOUS 3 DOUBLE BEDROOM SINGLE STORE...

Moore Allen & Innocent (Cirencester)

33 Castle Street, Cirencester, Gloucestershire, GL7 1QD

01285 648100

How much is your home worth?

Use our short form to request a valuation of your property.

Request a Valuation
©2026 The Guild of Property Professionals. All rights reserved. Terms and Conditions | Privacy Policy | Cookie Policy | Complaints Policy | Members Login
The Guild of Property Professionals Trading Address: 121 Park Lane, London W1K 7AG. GPEA Limited. Registered in England & Wales.  Company No: 02819824.  Registered Office Address: 2 St. Stephen's Court, St. Stephen's Road, Bournemouth, Dorset, England, BH2 6LA.  VAT Registration No: 576 8795 61
Book a Property Valuation Update Cookies Preferences