Parliament Street, Parliament Square Parliament Street, EX17

£780pcm

Mixed Use for rent in Crediton

  • Prominent retail or office premises
  • Situated in high footfall area on town square
  • Flexible premises
  • 1 parking space included
  • Lots of customer parking in the vicinity
  • Kitchen and toilet on premises

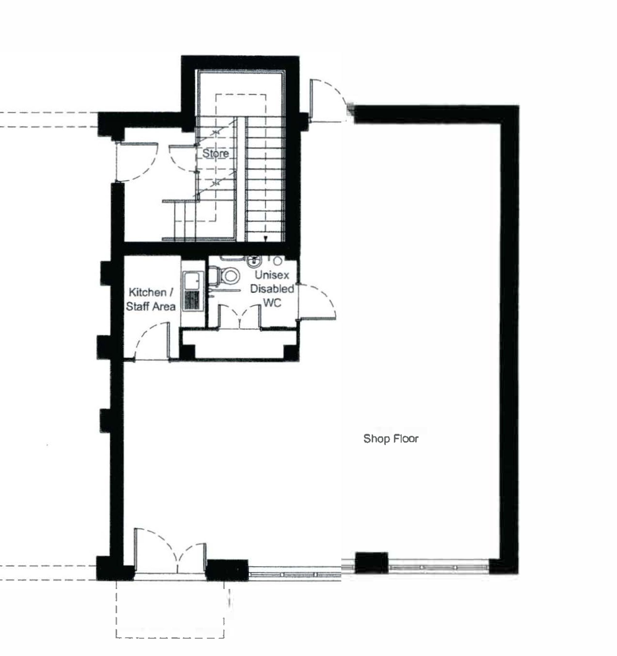
Unit B on Parliament Square, Crediton offers a great opportunity for lease of a very accessible, ground floor premises (78sqm) of space at the town square, which is the highest footfall and most sought after area for commercial and retail space in the growing town of Crediton. The premises have been occupied by the current lease holder for over 7 years and the business is closing due to retirement.

The premises consist of

Ground Floor Retail Area 10.43m x 8.99m (34’3” x 29’6”) max 2 large glazed display windows overlooking Parliament Square with a glazed entrance door and side panel to one side. Suspended ceiling with integrated LED lighting. Power as fitted in skirting trunking. Night store heaters with wall mounted aircon unit. UV film to the front window, along with

Kitchen 2.46m x 1.95m (8’1” x 6’5”) max, worktop with inset stainless steel sink unit and single drainer with cupboards under. Wall cupboards. Space for fridge. Tiled floor. Power points as fitted, accessible toilet with low level WC suite and wash hand basin. Storage cupboard. LED lighting.

To the rear of the premises there is one designated parking space as well as time limited parking on street at front and adjacent public local authority car park.

TERMS :

Available - Early to Mid March

Lease period - Flexible

Lease - £780pcm

Service charge - The Service Charge is currently £1,187.62 per annum. This covers a share of the exterior maintenance, buildings insurance, maintenance and lighting of the car park and electric gates plus window cleaning

Rateable value - £9900 (2023 valuation list) which for single premise operator would mean 100% relief from Business rates*

*Lessee responsible for confirming this

EPC - B28

Buildings insurance - Lessee will reimburse landlord for fair proportion

Services - Mains water, electricity

Legal costs - A contribution of 50% of landlords legal costs for lease preparation

Viewings - Normally able to offer viewings between 9-4pm Monday to Friday but only by appointment

Property Ref: f488b3ed-2b6b-46ef-b875-abdbe1fe450a

Share:

Similar Properties

Bewsley Hill, Copplestone, EX17

1 Bedroom End of Terrace House | £765pcm

Unexpectedly re available - 1 bedroomed barn conversion with a lovely cosy, homely feel in centre of popular village.

Flat 3 The Red House, St Lawrence Green, Crediton, EX17 3LN

1 Bedroom Flat | £695pcm

Well positioned, large one bedroom flat in excellent condition

Union Road, Redvers House Union Road, EX17

1 Bedroom Retirement Property | £650pcm

Well situated and appointed larger than average flat with views over the park with great access to Crediton High Street,...

Cleaveanger Farm, Coldridge, EX17

Commercial Property | £900pcm

Exciting opportunity to rent this large multi purpose building with parking for multiple vehicles

Bow, Crediton, EX17

2 Bedroom Semi-Detached House | £925pcm

2 bed semi-detached house, fitted kitchen and bathroom, parking, large garden with storage, rural location.

Iter Court, Bow, EX17

3 Bedroom Terraced House | £975pcm

A well-proportioned modern family house in a cul-de-sac location with 3 beds, kitchen/dining room overlooking the level...

Helmores (Crediton)

Crediton, Devon, EX17 3LF

01363 777999

How much is your home worth?

Use our short form to request a valuation of your property.

Request a Valuation
©2026 The Guild of Property Professionals. All rights reserved. Terms and Conditions | Privacy Policy | Cookie Policy | Complaints Policy | Members Login
The Guild of Property Professionals Trading Address: 121 Park Lane, London W1K 7AG. GPEA Limited. Registered in England & Wales.  Company No: 02819824.  Registered Office Address: 2 St. Stephen's Court, St. Stephen's Road, Bournemouth, Dorset, England, BH2 6LA.  VAT Registration No: 576 8795 61
Book a Property Valuation Update Cookies Preferences