Gosterwood Street, London

£700pw
Let Agreed
This property listing is now Let Agreed

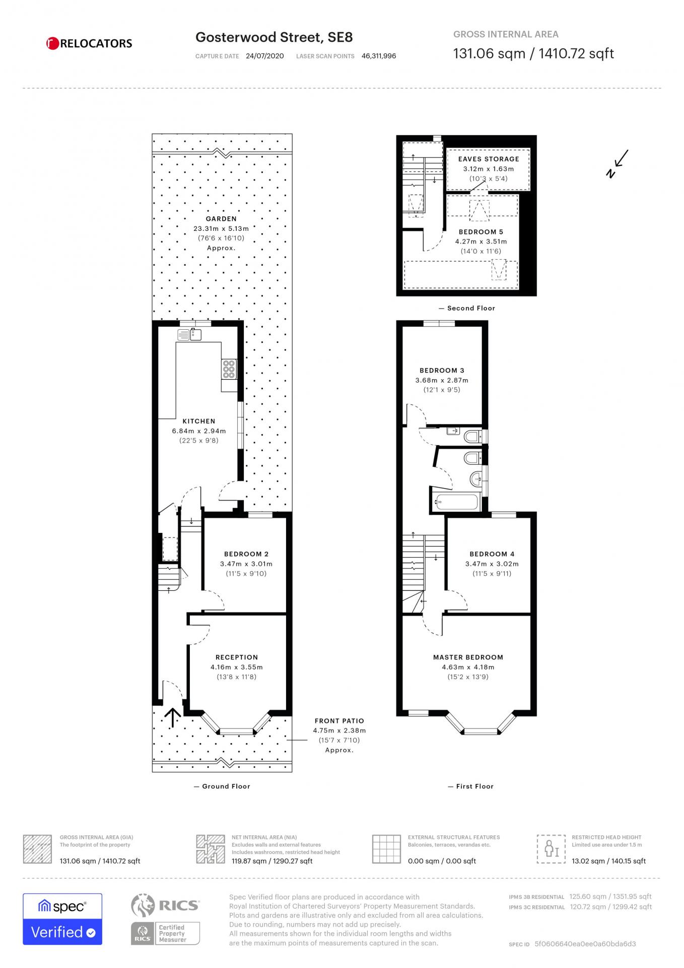
5 Bedroom House for rent in Deptford

1 5 1
  • LARGE FIVE BEDROOM HOUSE
  • RECENTLY REDECORATED THROUGHOUT
  • LARGE KITCHEN/DINER
  • ADDITIONAL WC
  • HIGH CEILINGS
  • EPC RATING D

**VIRTUAL TOUR AVAILABLE ON ADVERT**RECENTLY REDECORATED THROUGHOUT** Relocators are delighted to offer to the rentals market this spacious five double bedroom Victorian. house. This large bright and airy property has recently been redecorated throughout with neutral decor and boasts a spacious reception room, large kitchen/diner, double bedrooms are all large, bathroom, additional WC and a huge rear garden. Conveniently located for Surrey Quays (London Overground), Canada Water (Jubilee Line), and Deptford (DLR) as well as various bus routes this property will attract a lot of interest and an early viewing is a must!

Property Ref: EAXML10347_10415015

Share:

Similar Properties

Meath Crescent, London

2 Bedroom Flat | £500pw

Relocators are delighted to bring this larger than average, two double bedroom duplex penthouse to the rentals market. T...

Mile End Place, E1

2 Bedroom Apartment | £426pw

Virtual Tour available in advert. Relocators are please to offer this large newly converted two double bedroom apartment...

White Horse Lane

2 Bedroom House | £400pw

Relocators are pleased to offer this beautiful two double bedroom house to the rentals market. This property boasts a la...

Second Avenue, Walthamstow E17

4 Bedroom End of Terrace House | £784pw

**Available for four sharers**Virtual tour available in advert** Relocators are delighted to offer this larger than aver...

Alderney Road, E1

6 Bedroom End of Terrace House | £1,084pw

Virtual Tour available in advert. Relocators are delighted to offer this rare opportunity to rent a large SIX double bed...

Forest View Road, Walthamstow, E17

1 Bedroom End of Terrace House | £1,200pcm

Loft ROOM available to rent in a professionally managed HOUSE SHARE. This property is spread over three floors with four...

Relocators (Stepney)

Stepney, London, E1 4AA

0207 791 1210

How much is your home worth?

Use our short form to request a valuation of your property.

Request a Valuation
©2025 The Guild of Property Professionals. All rights reserved. Terms and Conditions | Privacy Policy | Cookie Policy | Complaints Policy | Members Login
The Guild of Property Professionals Trading Address: 121 Park Lane, London W1K 7AG. GPEA Limited. Registered in England & Wales.  Company No: 02819824.  Registered Office Address: 2 St. Stephen's Court, St. Stephen's Road, Bournemouth, Dorset, England, BH2 6LA.  VAT Registration No: 576 8795 61
Book a Property Valuation Update Cookies Preferences