Caen Street, Braunton, Devon

£600pcm

1 Bedroom Apartment for rent in Devon

1 1 1
  • CONVENIENTLY located 1 bedroom flat
  • Situated in Braunton village location
  • Within easy access to local amenities and facilities
  • Double bedroom
  • Living room
  • Bathroom with shower cubicle
  • Available January 2026
  • Long term unfurnished let
  • EPC rating D

CONVENIENTLY located 1 bedroom flat
Situated in Braunton village location
Within easy access to local amenities and facilities
Double bedroom
Living room
Bathroom with shower cubicle
Available January 2026
Long term unfurnished let
EPC rating D

Centrally located 1-Bedroom Apartment in the Heart of Braunton.

This well positioned apartment in the centre of Braunton is now available for a long term let.
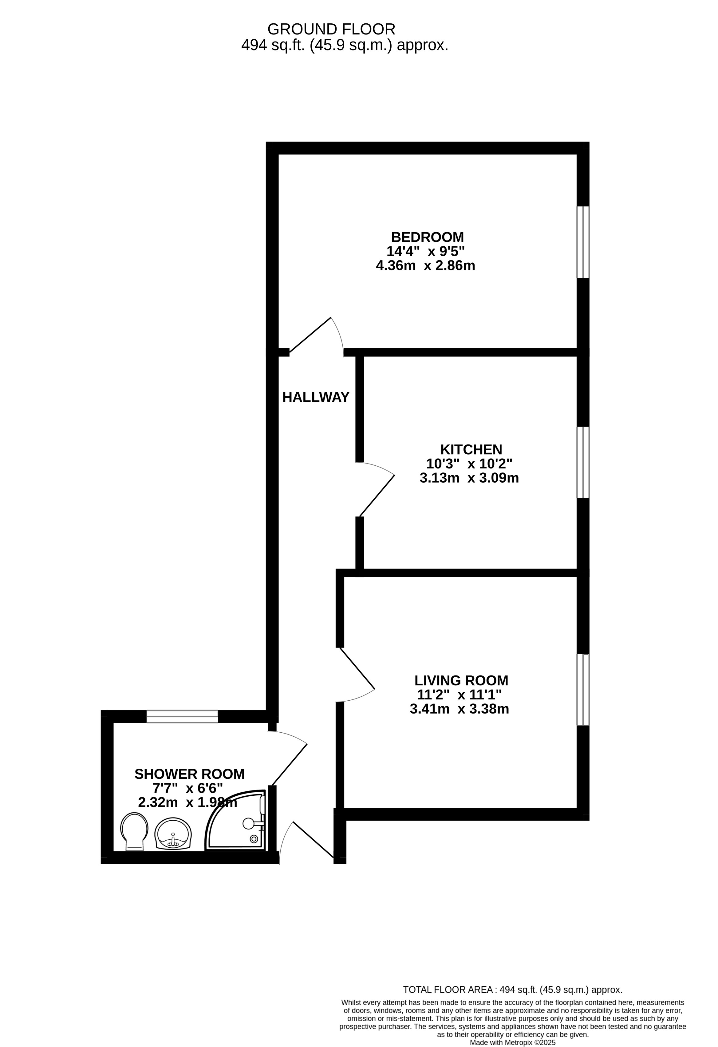
Situated on the first-floor this apartment features a comfortable living room, a well-proportioned kitchen with space for a fridge/freezer and washing machine, a double bedroom, and a shower room.

Although there is no allocated parking, Caen Street car park is just across the road, with annual parking permits available for purchase.

This ideal location places you within easy walking distance of local shops, restaurants and transport links.

The property will be let unfurnished and is available from January 2026

Sorry no smokers or sharers.

EPC D.
Council Tax Band A.

Communal entrance

Living room 11'2" x 11'11" (3.4m x 3.63m). Window to front elevation, fitted carpet, radiator, TV point.

Bedroom 12'3" x 9'5" (3.73m x 2.87m). Window to front elevation, radiator, fitted carpet.

Bathroom 7'7" x 6'6" (2.3m x 1.98m). Shower cubicle, low level W/C, hand wash basin, heated towel rail, extractor fan, vinyl.

Kitchen 10'10" x 10'3" (3.3m x 3.12m). Fitted kitchen with cupboards and drawers, space for cooker, space and plumbing for washing machine, space for fridge/freezer. Vinyl flooring, window to front elevation, radiator.

From the main set of traffic lights in Braunton (with our office on your right hand side), turn left into Caen Street and number 27 can be found opposite Cawthornes super market (overlooking village green).

Property Ref: 55635_BAR160108_L

Share:

Similar Properties

East Street, Braunton, Devon

2 Bedroom Apartment | £880pcm

CONVENIENT 2 bedroom 1st floor apartment in the centre of Braunton. Availble early November for a long term let. EPC-E....

West Meadow Road, Braunton

2 Bedroom Bungalow | £975pcm

CHARMING 2 Bedroom Bungalow To Let! Located close to the Braunton village centre and within approximately a 5-minute dri...

South Park, Braunton, Devon

3 Bedroom House | £1,200pcm

Located in a popular residential area of Braunton is this fantastic 3 bedroom bungalow with off road parking and a garag...

Webbers Braunton (Braunton)

Braunton, Devon, EX33 2JF

01271 812263

How much is your home worth?

Use our short form to request a valuation of your property.

Request a Valuation
©2025 The Guild of Property Professionals. All rights reserved. Terms and Conditions | Privacy Policy | Cookie Policy | Complaints Policy | Members Login
The Guild of Property Professionals Trading Address: 121 Park Lane, London W1K 7AG. GPEA Limited. Registered in England & Wales.  Company No: 02819824.  Registered Office Address: 2 St. Stephen's Court, St. Stephen's Road, Bournemouth, Dorset, England, BH2 6LA.  VAT Registration No: 576 8795 61
Book a Property Valuation Update Cookies Preferences