Copleston Road, East Dulwich, London

£554pw

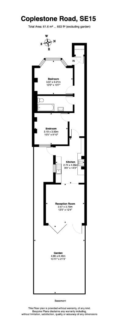
2 Bedroom Flat for rent in East Dulwich

1 2 1
  • Two Bedroom Flat
  • Private Garden
  • Large Modern Kitchen
  • Wooden Floors
  • Spacious Reception
  • Good Size Bathroom
  • Unfurnished
  • Short Walk To East Dulwich

This extremely well presented two bedroom garden flat is situated on one of Peckham Rye’s premier roads. The property is fantastically located around the corner from the vibrant Bellenden Road Village and the ever popular Lordship Lane.
Comprising; two bedrooms, a bright and spacious reception room, modern bathroom, large open plan kitchen and an incredible private garden.
Rail links to London are extremely close with Peckham Rye (Central London and Clapham Junction) and East Dulwich (London Bridge) stations both a short walk away, you will find a great selection of Gastropubs, unique shops and some amazing cafés.

All data and information set forth on this website regarding real property, for sale, purchase, rental and/or financing, are from sources regarded as reliable. No warranties are made as to the accuracy of any descriptions and/or other details and such information is subject to errors, omissions, changes of price, tenancies, commissions, prior sales, leases or financing, or withdrawal without notice. Square footages are approximate and may be verified by consulting a professional architect or engineer.

Important Information

  • This Council Tax band for this property is: B

Property Ref: WWhPek9YSFZZcXVlK3JwSGRSclpkZz09

Share:

Similar Properties

1 Ashley Road, Tottenham Hale, London

1 Bedroom Flat | £495pw

An amazing one bedroom apartment within this modern development in Tottenham Hale which completed in 2023. This is one o...

Rogers Court, Canary Wharf, London

2 Bedroom Flat | £474pw

This stunning two double bedroom two bathroom apartment is offered on a furnished basis, comprises of a large open plan...

Herne Hill, Herne Hill, London

1 Bedroom Flat | £358pw

This bright one double bedroom apartment located in the heart of Herne Hill comprises of an open plan kitchen/lounge and...

Cascades Tower, Canary Wharf, London

2 Bedroom Flat | £589pw

Offering superb riverside location moments from the heart of Canary Wharf, this stylish two bedroom apartment is situate...

3, Canalside Walk, Paddington, London

1 Bedroom Flat | £700pw

A beautifully presented, modern one-bedroom apartment set within this attractive canal-side development on the banks of...

1 Harbour Avenue, Chelsea, London

1 Bedroom Flat | £775pw

A stunning one bedroom, 2nd floor apartment offering beautifully presented and unusually spacious accommodation (816 sq...

Global House Estates (Elephant & Castle)

Elephant & Castle, London, SE1 6EW

0207 401 2020

How much is your home worth?

Use our short form to request a valuation of your property.

Request a Valuation
©2026 The Guild of Property Professionals. All rights reserved. Terms and Conditions | Privacy Policy | Cookie Policy | Complaints Policy | Members Login
The Guild of Property Professionals Trading Address: 121 Park Lane, London W1K 7AG. GPEA Limited. Registered in England & Wales.  Company No: 02819824.  Registered Office Address: 2 St. Stephen's Court, St. Stephen's Road, Bournemouth, Dorset, England, BH2 6LA.  VAT Registration No: 576 8795 61
Book a Property Valuation Update Cookies Preferences