This property listing is now Let Agreed

Apartment for rent in Esher

1 1
  • Studio Apartment
  • Communal Gardens
  • Separate Kitchen
  • Off Street Parking For One Car
  • Six Month Let Only
  • Offered: Unfurnished
  • Available: Immediately

A recently refurbished and well proportioned first-floor studio apartment, ideally located in a peaceful residential area just one mile from Esher town centre.

This bright and airy property offers stylish, modern living in a well-maintained building. The studio benefits from off-street parking and access to beautifully kept communal gardens, providing a rare sense of space and tranquillity.

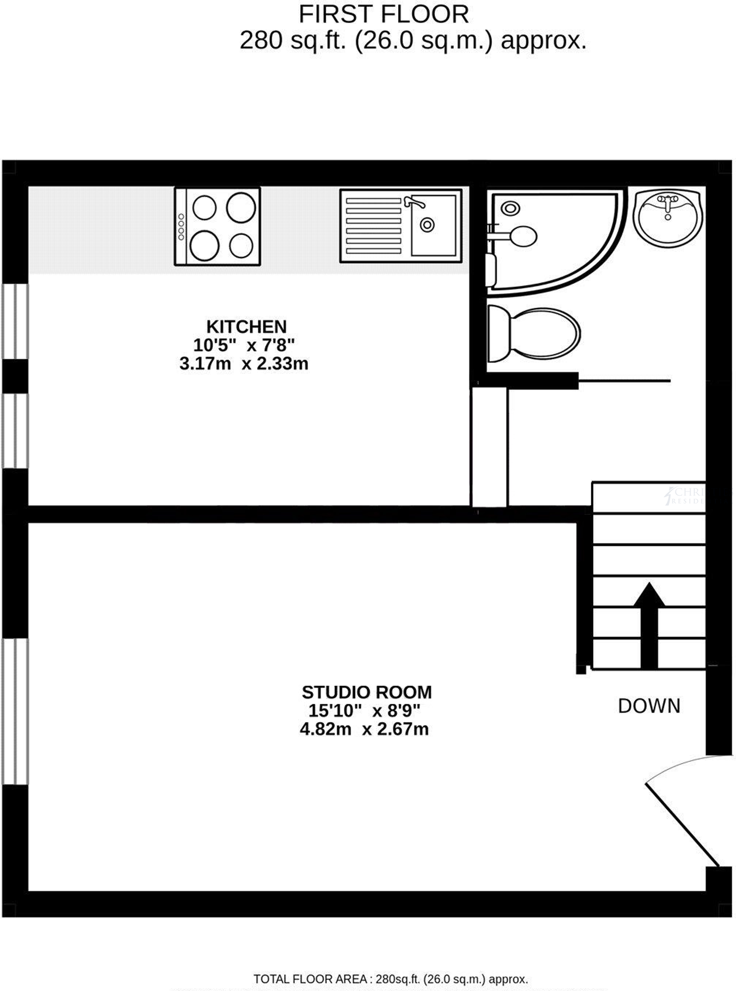
Kitchen
10'5" x 7'8"
Recently refurbished

Studio Room
15'10" x 8'9"
Recently redecorated and carpeted

Shower Room

Important Information

  • This Council Tax band for this property is: B

Property Ref: SRK837983

Share:

Similar Properties

LEATHERHEAD

Flat | £975pcm

Christies Residential are pleased to offer for let this newly redecorated first floor studio flat located within easy ac...

LEATHERHEAD

1 Bedroom Flat | £1,075pcm

Christies Residential are pleased to offer for let this well presented second floor double bedroom apartment. Situated i...

LEATHERHEAD

1 Bedroom Flat | £1,100pcm

Christies Residential are pleased to offer for rental this top floor one double bedroom apartment situated in the Heart...

Christies Residential (Leatherhead)

Penrose Road, Fetcham, Leatherhead, Surrey, KT22 9PY

01372 362555

How much is your home worth?

Use our short form to request a valuation of your property.

Request a Valuation
©2026 The Guild of Property Professionals. All rights reserved. Terms and Conditions | Privacy Policy | Cookie Policy | Complaints Policy | Members Login
The Guild of Property Professionals Trading Address: 121 Park Lane, London W1K 7AG. GPEA Limited. Registered in England & Wales.  Company No: 02819824.  Registered Office Address: 2 St. Stephen's Court, St. Stephen's Road, Bournemouth, Dorset, England, BH2 6LA.  VAT Registration No: 576 8795 61
Book a Property Valuation Update Cookies Preferences