Wickham Road, Fareham

£700pcm
Let Agreed
This property listing is now Let Agreed

1 Bedroom Flat for rent in Fareham

1 1 1
  • MODERN DEVELOPMENT
  • ALLOCATED PARKING
  • PRIME LOCATION
  • DOUBLE GLAZING
  • CENTRAL HEATING
  • LIFT IN BLOCK
  • AVAILABLE NOW
  • WASHING MACHINE INCLUDED
  • FRIDGE INCLUDED
  • A MUST VIEW

We are pleased to welcome this bright and airy one bedroom apartment to the lettings market. Converted in 2015.

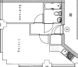
The property comprises entrance hall, bathroom, open plan living room and kitchen and double bedroom. With the added benefits of allocated parking, central heating and double glazed windows, this property is bound to attract lots of attention. Call Bernards on 023 9223 2888 to book an internal viewing.

Kitchen/Lounge - Smooth ceiling with inset spotlights, windows to side and front aspects, radiator, range of high gloss wall and base units, stainless steel sink and drainer, electric hob, electric oven, extractor fan, space for washing machine, space for dishwasher, laminate floor.

Bedroom - Smooth ceiling, smooth walls, window, radiator.

Bathroom - Smooth ceiling with inset spot lights, tiled and smooth walls, three piece bathroom suite with shower over bath.

Removals - Also here at Bernards we like to offer our clients the complete service. In doing so we have taken the time to source a reputable removal company to ensure that your worldly belongings are moved safely. Please ask in office for further details and quotes.

Council Tax Band A -

Property Ref: 901249_31572783

Share:

Similar Properties

Kite Close, Waterlooville

2 Bedroom Terraced House | £1,200pcm

Welcome to Kite Close, Waterlooville - a terraced house that could be your next family home! This property boasts two co...

Laurus Close, Waterlooville

2 Bedroom Terraced House | £1,250pcm

Bernards Estates welcome this two bedroom mid-terrace property to the rental market. The property comprises of a 15FT lo...

Crookham Close, Havant

3 Bedroom Terraced House | £1,350pcm

**THREE BEDROOM REFURBISHED HOME** We are delighted to bring to the market this newly refurbished, mid terrace house in...

Bernards Estate and Lettings Agents (Waterlooville)

47 London Road, Waterlooville, Hampshire, PO7 7EX

02392 232888

How much is your home worth?

Use our short form to request a valuation of your property.

Request a Valuation
©2025 The Guild of Property Professionals. All rights reserved. Terms and Conditions | Privacy Policy | Cookie Policy | Complaints Policy | Members Login
The Guild of Property Professionals Trading Address: 121 Park Lane, London W1K 7AG. GPEA Limited. Registered in England & Wales.  Company No: 02819824.  Registered Office Address: 2 St. Stephen's Court, St. Stephen's Road, Bournemouth, Dorset, England, BH2 6LA.  VAT Registration No: 576 8795 61
Book a Property Valuation Update Cookies Preferences