The Green, Quenington

£1,425pcm
Let Agreed
This property listing is now Let Agreed

3 Bedroom Terraced House for rent in Glos

2 3 1
  • Semi Detached
  • Refurbished To A High Standard
  • Village Location
  • Large Kitchen Diner
  • Bath With Shower Over
  • Large Enclosed Garden
  • Separate Sitting Room With Feature Fireplace
  • Oil Fired Central Heating

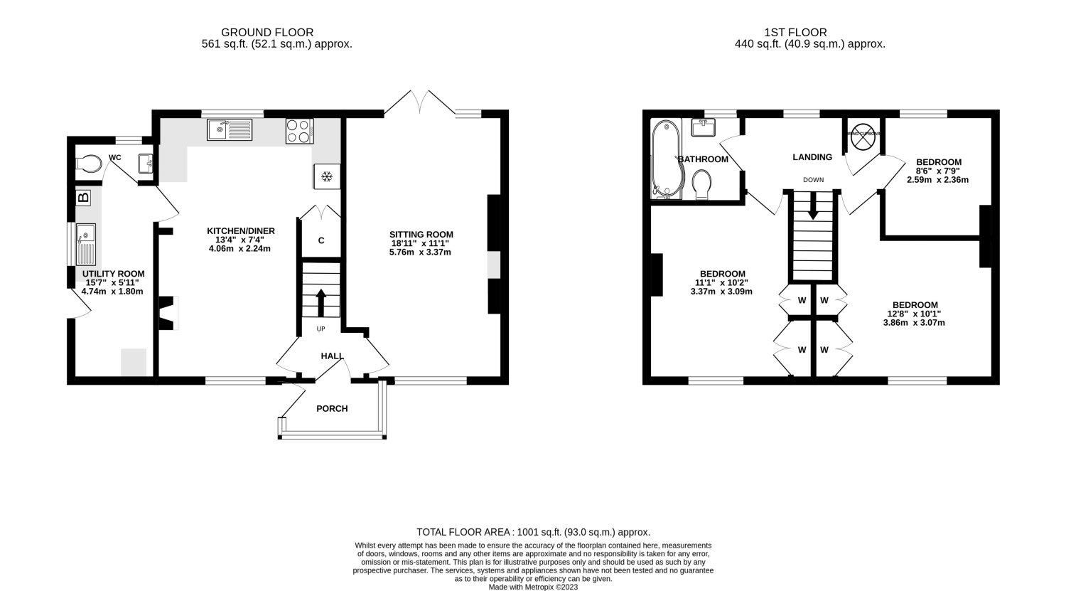
Refurbished to a high standard this 3 bedroom Semi detached property is available immediately and for a long let if desired. This deceptively spacious family home offers good size accommodation together with gardens to front and back. Of particular note is the impressive and well-fitted kitchen /dining with ample space for appliances and wood burner. A useful utility room and a good-sized sitting room with a feature fireplace. At first floor level there are three bedrooms – two of double proportions and a good sized single, alongside a well-equipped family bathroom with fitted shower over bath. Externally the property enjoys a fully enclosed, cottage garden to the rear and a usefully large storage shed. In addition, the property benefits from an oil-fired central heating system and UPVC double glazed windows.
Viewings are welcomed by appointment 6 days a week although be aware that viewings may require at least 24 hours' notice to arrange access. Please note that prior to any subsequent tenancy offer being accepted, all prospective tenants will be required to supply identification documents and proof of affordability.

Agent notes: these particulars have been prepared as a general guide only. A detailed survey has not been carried out, nor the services, appliances, fittings, etc, been tested. If room sizes are included, they are for guidance and illustration purposes only. They may not be to scale and should not be relied upon for furnishing or other purposes. If there are any important matters likely to affect your decision to proceed, please contact us before viewing the property.

Tenant protection: Moore Allen & Innocent is a member of the royal institution of chartered surveyor's client money protection scheme, and a member of the property ombudsman independent redress scheme. You can find out more details via our website or by contacting the office directly.

Landlords: do you own a similar property? Moore Allen & Innocent are an independent, multi-award winning, sales and lettings estate agency with over 175 years of property experience across the Cotswolds and beyond. If you have a similar property that you would like rented out or are looking for an agent to take away the stress and manage a property for you, we would be delighted to discuss how we can help. For more information regarding our services and a free, no-obligation review, please contact us today.

Property Ref: 593341_10311351

Share:

Similar Properties

Chesterton Lane, CIRENCESTER

3 Bedroom Terraced House | £1,425pcm

*** MOORE ALLEN & INNOCENT *** are delighted to offer this SUPERBLY REFURBISHED 3-4 bedroom Edwardian town house with GA...

Ampney Crucis, Gloucestershire

3 Bedroom Semi-Detached House | £1,425pcm

*** MOORE ALLEN & INNOCENT *** are pleased to offer for rent this 3 bedroom Semi detached Cotswold stone cottage with la...

Turkdean, Cheltenham, GL54

3 Bedroom Terraced House | £1,425pcm

*** MOORE ALLEN & INNOCENT *** are delighted to offer this 3 DOUBLE BEDROOM SEMI DETACHED House quietly situated within...

Nutbeam, DUNTISBOURNE LEER

1 Bedroom Cottage | £1,450pcm

*** MOORE ALLEN & INNOCENT *** are delighted to offer this NEWLY BEAUTIFUL barn conversion within the STUNNING RURAL SET...

Barnsley Park, BARNSLEY

2 Bedroom Barn Conversion | £1,450pcm

*** MOORE ALLEN & INNOCENT *** are very pleased to offer this BEAUTIFULLY CONVERTED 2 DOUBLE BEDROOM single storey cotta...

Hambidge Lane, LECHLADE

3 Bedroom Semi-Detached House | £1,450pcm

*** MOORE ALLEN & INNOCENT *** are delighted to offer this UPDATED 3 BEDROOM family home - with garden and GARAGE, posit...

Moore Allen & Innocent (Cirencester)

33 Castle Street, Cirencester, Gloucestershire, GL7 1QD

01285 648100

How much is your home worth?

Use our short form to request a valuation of your property.

Request a Valuation
©2025 The Guild of Property Professionals. All rights reserved. Terms and Conditions | Privacy Policy | Cookie Policy | Complaints Policy | Members Login
The Guild of Property Professionals Trading Address: 121 Park Lane, London W1K 7AG. GPEA Limited. Registered in England & Wales.  Company No: 02819824.  Registered Office Address: 2 St. Stephen's Court, St. Stephen's Road, Bournemouth, Dorset, England, BH2 6LA.  VAT Registration No: 576 8795 61
Book a Property Valuation Update Cookies Preferences