Sussex Street, Plaistow, London, E13

£28,500pa

Restaurant for rent in Greater London

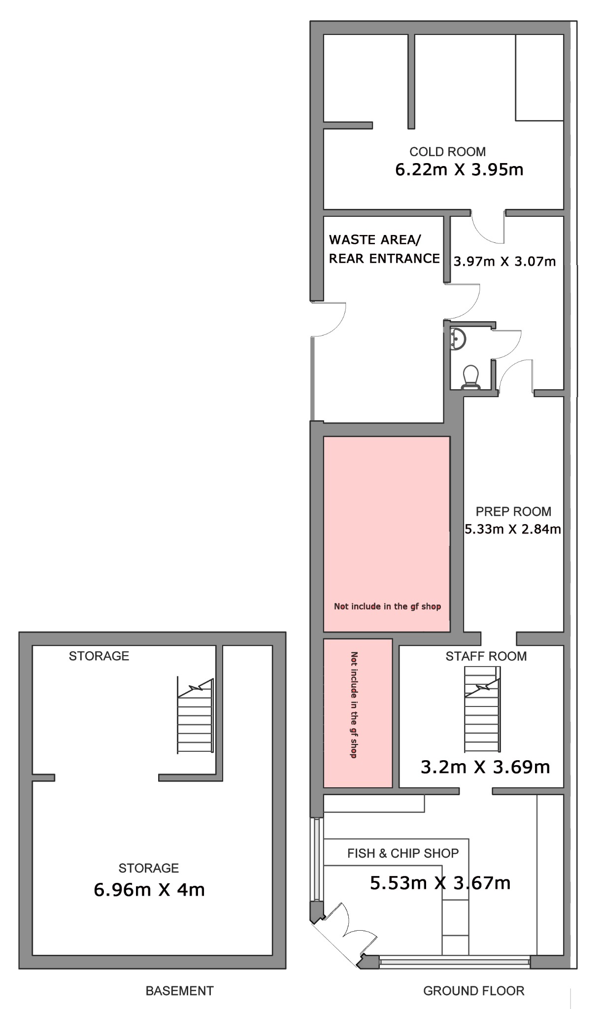
  • A5 License Corner Shop
  • Staff WC
  • Lots of Storage with cellar (head Height 2.17m)
  • Walking chiller
  • Excellent location
  • Lease/ Business For Sale
  • Premium to be enquire
  • Rear Access for Waste + loading
  • The flat above shop is NOT included.

We are delighted to introduce a generously proportioned corner shop, offering the ideal opportunity for a perfect venture.
The shop boasts a classic ambiance, and the lease encompasses a prime location with high foot traffic.
Lease/Business for Sale:TERMS: 12 years plus and inside LTA 1954 actPremium: Guide Price: £75,000 - £80,000Business Rates: TBC*SIZE: Approximately 925 + sq ft

Key Points:Good size chillerCCTV3 x FreezerDeep fryStaff WC2 x Roller Grill for donner kebabA5 License 1 x TillHot food takeaways channels all can be arrange such as UberEats, Deliveroo and JustEat
A business/lease for sale in the heart of Plaistow, on Prince Regent Lane with high footfall and potential to expand existing business. Close to all local amenities.
The flat above shop is NOT included.
Call our commercial team to arrange a viewing at 0208 519 2000.Fees applicable

Important Information

  • This Council Tax band for this property is: B

Property Ref: 283175

Share:

Similar Properties

Leytonstone Road, STRATFORD, LONDON. E15

Leisure Facility | £28,000pa

Victor Michael is pleased to present this D2 unit to the market. Available now, this commercial property is situated jus...

Leytonstone Road, Stratford, London. E15

Restaurant | £28,000pa

*Quick Sale open to offers *Fantastic opportunity to acquire a large A3 licence unit in Stratford.

Leytonstone Road, London, Greater London. E15

Commercial Property | £27,995pa

Can obtain following licenses A2/B1 formerly used as a Gym & children's daycare facility available for rent in Stratford...

High Street, Stratford, London. E15

Healthcare Facility | £30,500pa

A distinctive modern building located on Stratford's High Street, this premises is currently being used a Medical Centre...

High Road Leyton, London, E10

Shop | £32,000pa

Ground floor shop to rent in High Road Leyton

High Road Leytonstone, London. E11

Restaurant | £36,000pa

Victor Michael is delighted to present to the market this commercial lease for Sale. Fantastic opportunity to acquire a...

Victor Michael Limited (Stratford)

Stratford, London, E15 1SQ

0208 519 2000

How much is your home worth?

Use our short form to request a valuation of your property.

Request a Valuation
©2026 The Guild of Property Professionals. All rights reserved. Terms and Conditions | Privacy Policy | Cookie Policy | Complaints Policy | Members Login
The Guild of Property Professionals Trading Address: 121 Park Lane, London W1K 7AG. GPEA Limited. Registered in England & Wales.  Company No: 02819824.  Registered Office Address: 2 St. Stephen's Court, St. Stephen's Road, Bournemouth, Dorset, England, BH2 6LA.  VAT Registration No: 576 8795 61
Book a Property Valuation Update Cookies Preferences