Ash Green

£3,250pcm
Let Agreed
This property listing is now Let Agreed

5 Bedroom Detached House for rent in Guildford

2 5 2
  • Unfurnished
  • 5 bedroom detached house/ex showhome
  • Kitchen with high end appliances and island
  • 2 reception rooms / 2 bathrooms
  • Conservatory
  • Large and private garden and ample driveway parking
  • EPC B
  • Security Depsoit £3692.00
  • Council Tax Band G

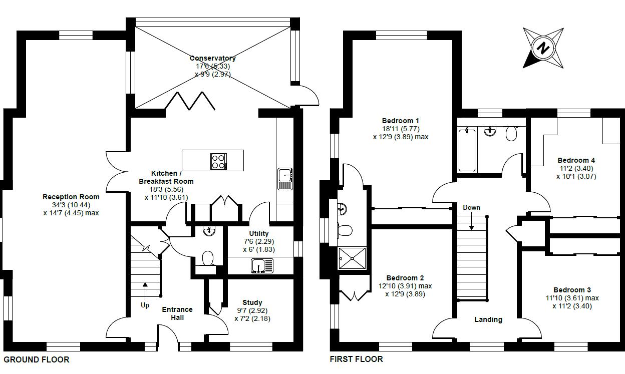
Unfurnished. A truly immaculate 5 bedroom house set in the heart of Ash Green. The property is the ex show home set in a small development within minutes from Ash Green train station. The property is accessed through the front garden and opens into a large and bright entrance hall. There is a large triple aspect master reception/dining room with feature fireplace. The large kitchen has a central island with high end integrated appliances and extends to a large conservatory overlooking the large rear garden. There is a further reception room/fifth bedroom with a downstairs cloakroom and storage cupboard. Upstairs comprises 4 double bedrooms with large master bedroom with ensuite. There is a separate and high end family bathroom. The garden overlooks fields and countryside and has a shed for storage and a wraparound front garden to the side. Ample driveway parking and excellent links into London, Guildford, Woking and Farnham. EPC rating B

Important Information

  • This Council Tax band for this property is: G
  • EPC Rating is B

Property Ref: 2653942

Share:

Similar Properties

Queen Eleanors Road, Onslow Village

4 Bedroom Detached House | £3,250pcm

UNFURNISHED/PART FURNISHED. A stunning 4 bedroom detached family home set in the heart of Onslow Village and an excellen...

Grantley Close, Shalford

4 Bedroom Detached House | £3,250pcm

An attractive four bedroom detached house situated on a sought after private road in Shalford. An ideal family home, the...

Birch Close, Send

3 Bedroom Detached House | £3,250pcm

Unfurnished. A substantial 3/4 double bedroom detached house set in a quiet cul de sac in the heart of Send Village. The...

New Road, Wonersh

4 Bedroom Detached House | £3,300pcm

Unfurnished. A stunning detached 5 bedroom house set in Wonersh in the heart of the Surrey Hills. The property has a gra...

Teviot Close, Guildford

3 Bedroom Detached House | £3,300pcm

Unfurnished/Furnished. A beautiful detached three bedroom house set in a small prestigious development on the edge of Gu...

Jersey Close, Burpham

4 Bedroom House | £3,300pcm

A fully refurbished 4 bedroom detached house set in the heart of Burpham, in a quiet cul-de-sac. The property has a gene...

Seymours (Guildford)

Guildford, Surrey, GU1 3BJ

01483 457722

How much is your home worth?

Use our short form to request a valuation of your property.

Request a Valuation
©2026 The Guild of Property Professionals. All rights reserved. Terms and Conditions | Privacy Policy | Cookie Policy | Complaints Policy | Members Login
The Guild of Property Professionals Trading Address: 121 Park Lane, London W1K 7AG. GPEA Limited. Registered in England & Wales.  Company No: 02819824.  Registered Office Address: 2 St. Stephen's Court, St. Stephen's Road, Bournemouth, Dorset, England, BH2 6LA.  VAT Registration No: 576 8795 61
Book a Property Valuation Update Cookies Preferences