Mansfield Road, Hampstead, NW3

£350pw
Let Agreed
This property listing is now Let Agreed

1 Bedroom Flat for rent in Hampstead

1
  • * Well Presented One Bedroom Garden Flat
  • Parking

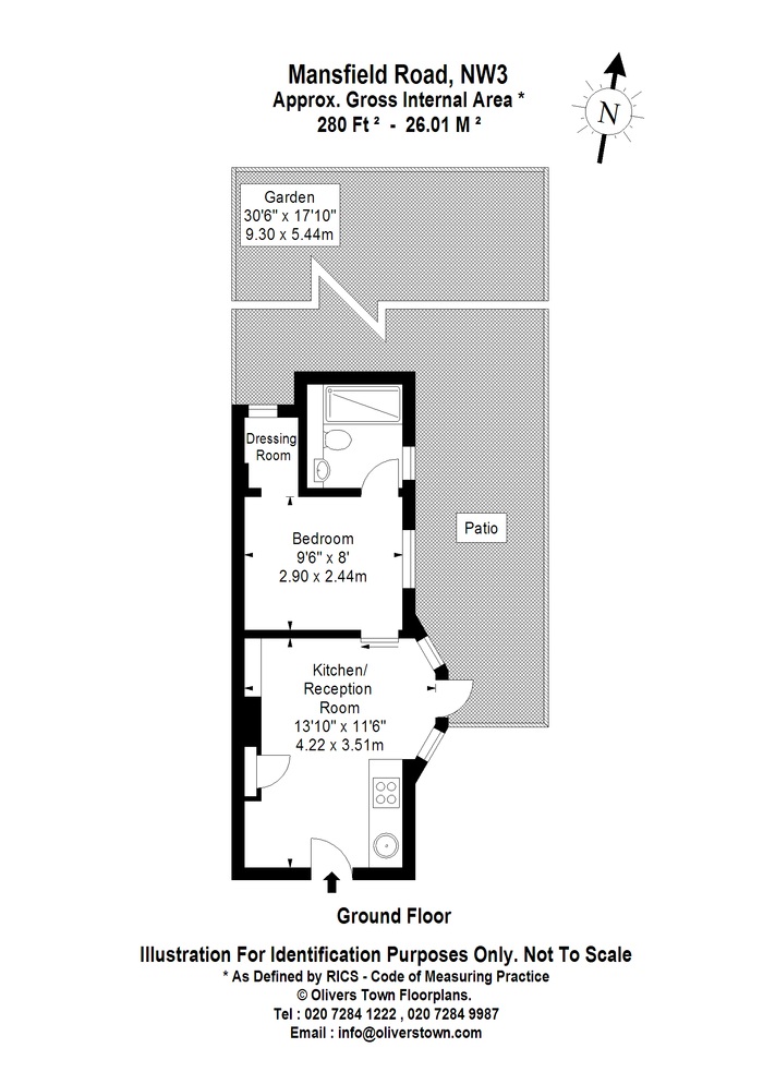
A modern, well presented one double bedroom garden flat set within a charming Victorian terrace in Hampstead’ South End Green. This bright apartment comprises: a light and good sized bedroom with dressing room; open-plan reception/ kitchen and a modern bathroom. Further benefits include a large private garden, hot water included in the rent, wood floors throughout an a communal laundry area. Hampstead’s South End Green is ideally placed for easy access to many amenities of this lively and vibrant yet very residential area. Minutes from Hampstead village, Belsize Park and Pond Street it offers first class shops, cafes, restaurants and public houses. Parliament Hill Fields with its recreational grounds as well as the vast open green spaces of Hampstead Heath are just a stone’s throw from this address. The nearest transport hub is in South End Green ( 3 min. walk) with four bus lines and the Hampstead Heath Station served by the London Overground Rail.

Property Ref: 31334

Share:

Similar Properties

Finchley Road, Hampstead NW3

1 Bedroom Apartment | £350pw

A one bedroom apartment with a brilliant interior specification. Newly refurbished, the apartment features dark oak wood...

Goldhurst Terrace, South Hampstead NW6

1 Bedroom Flat | £350pw

A well presented one double bedroom flat on a quiet residential street within a lovely period conversion . The accommoda...

Grantbridge Street, Angel N1

1 Bedroom Flat | £350pw

A superb, one-bedroom apartment, flooded with natural light and occupies the First floor of a beautiful period conversio...

Euston Road, Euston NW1

Studio Apartment | £355pw

Newly refurbished studio apartment at the heart of Euston. The bright flat offers wood flooring, modern kitchen, fully t...

Dartmouth Park Road, Dartmouth Park NW5

1 Bedroom Apartment | £360pw

Enviably located on one of Dartmouth Park's most prestigious residential turnings and just moments from Hampstead Heath,...

Arkwright Road, NW3

1 Bedroom Flat | £360pw

Newly refurbished 1 bedroom apartment available to rent in Hampstead NW3. Set on the ground floor, the tastefully-decora...

Olivers Town (Kentish Town)

189 Kentish Town Road, Kentish Town, London, NW5 2JU

0207 2841222

How much is your home worth?

Use our short form to request a valuation of your property.

Request a Valuation
©2026 The Guild of Property Professionals. All rights reserved. Terms and Conditions | Privacy Policy | Cookie Policy | Complaints Policy | Members Login
The Guild of Property Professionals Trading Address: 121 Park Lane, London W1K 7AG. GPEA Limited. Registered in England & Wales.  Company No: 02819824.  Registered Office Address: 2 St. Stephen's Court, St. Stephen's Road, Bournemouth, Dorset, England, BH2 6LA.  VAT Registration No: 576 8795 61
Book a Property Valuation Update Cookies Preferences