Thistle Mead Lane, Newhall, Harlow

£1,250pcm
Let Agreed
This property listing is now Let Agreed

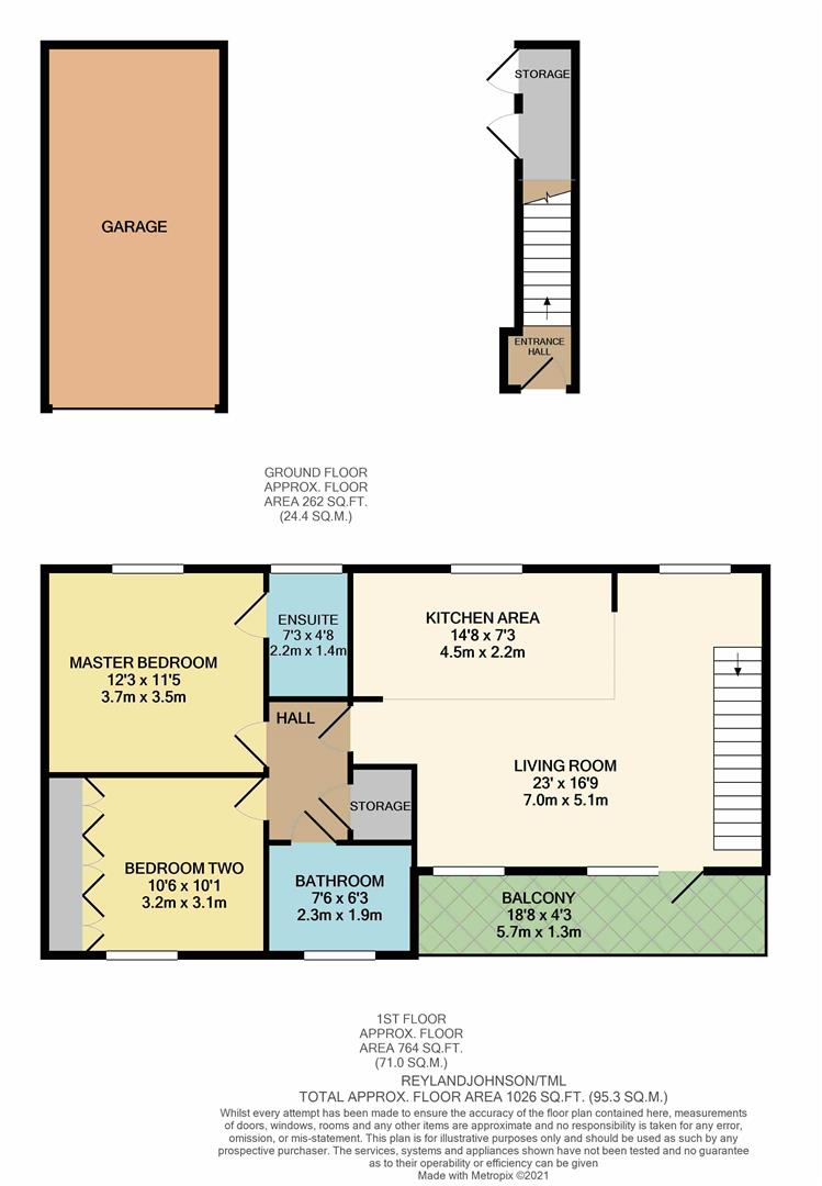
2 Bedroom Coach House for rent in Harlow

1 2 2
  • Two Bedrooms
  • Coachhouse
  • Garage
  • Balcony
  • Open Plan Living
  • Unfurnished
  • Available End May
  • En-Suite Shower
  • Immaculate Home

An immaculate two bedroom coachhouse with garage situated on the popular Newhall development. The property has an open plan living space with combined lounge, dining and kitchen area which also has access to the balcony. There is a family bathroom and two double bedrooms with an en-suite shower room from the main bedroom. Available end May 2021 on an unfurnished basis.

Property Ref: 589624_30597732

Share:

Similar Properties

Bromley Close, Harlow

2 Bedroom Flat | £1,250pcm

Situated off East Road, not far from the shops and restaurants of Old Harlow and just 1/2 a mile from Harlow Mill Train...

Dunstalls, Harlow

3 Bedroom Terraced House | £1,250pcm

Available Early October on an unfurnished basis is this three bedroom family home in the popular turning of Dunstalls, H...

Brockles Mead, Harlow

3 Bedroom Terraced House | £1,250pcm

A three bedroom terraced house comprising of an entrance hall with cloakroom/WC leading to a lounge, kitchen with a rang...

Tilbury Mead, Harlow

3 Bedroom Terraced House | £1,275pcm

Available Early June on an unfurnished basis, this three bedroom terraced home is located close to shops and schooling a...

Northbrooks, Harlow

3 Bedroom Terraced House | £1,275pcm

A recently redecorated three bedroom terraced house Available NOW on an unfurnished basis. The property comprises an ent...

Pennymead, Harlow

3 Bedroom Terraced House | £1,300pcm

Available middle of April on an unfurnished basis, this three bedroom family home. The property comprises an entrance ha...

Reyland Johnson (Harlow)

Harlow, Essex, CM18 6NA

01279 216216

How much is your home worth?

Use our short form to request a valuation of your property.

Request a Valuation
©2025 The Guild of Property Professionals. All rights reserved. Terms and Conditions | Privacy Policy | Cookie Policy | Complaints Policy | Members Login
The Guild of Property Professionals Trading Address: 121 Park Lane, London W1K 7AG. GPEA Limited. Registered in England & Wales.  Company No: 02819824.  Registered Office Address: 2 St. Stephen's Court, St. Stephen's Road, Bournemouth, Dorset, England, BH2 6LA.  VAT Registration No: 576 8795 61
Book a Property Valuation Update Cookies Preferences