Tudor Manor Gardens, Watford, Hertfordshire, WD25

£2,800pcm
Let Agreed
This property listing is now Let Agreed

4 Bedroom Detached House for rent in Hertfordshire

3 4 2

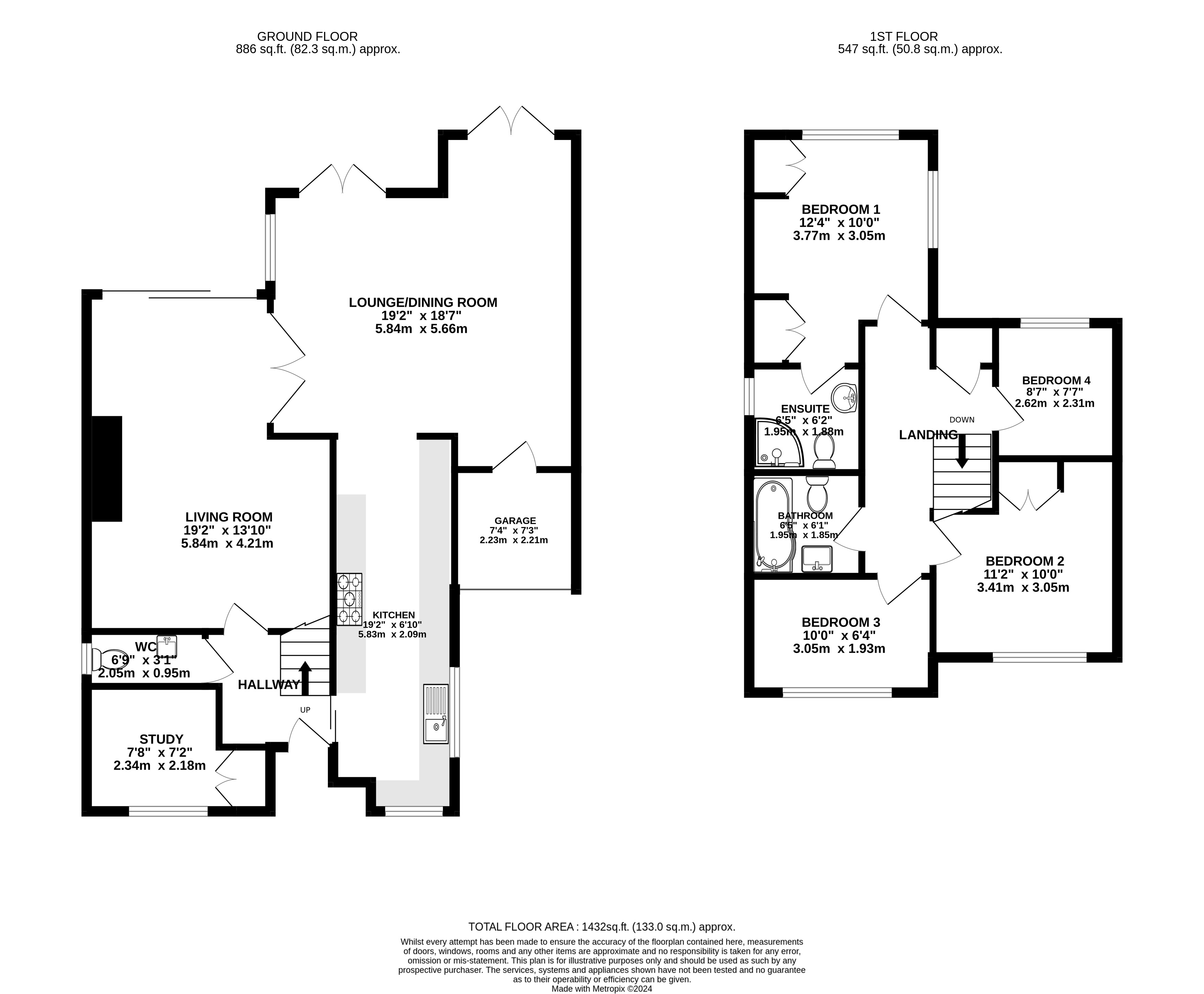
Lumley Estates are proud to present this stunning four-bedroom detached home with converted garage and driveway, located in the desirable road of Tudor Manor Gardens in Garston.
This home has been extended to the rear and made open plan to accommodate for large families and entertaining guests.

This beautifully crafted mock Tudor home offers a fantastic amount of living space, great for any family and also provides great outdoor entertainment space with a large patio area in the south facing rear garden. This home briefly consists of a welcoming entrance hallway leading on to a home office, WC, family living room, open plan dining area connecting to the kitchen, the garage has been incorporated with this open plan space while still retaining garage space for storage. The first floor consists of four generously sized bedrooms, en suite to master and a family bathroom.

The principal bedroom is well suited, with its integrated wardrobes and access to an en suite equipped with a chrome heated towel rail, large shower and full tiling throughout. Bedroom two also has the additional benefit of built-in wardrobes. All bedrooms within this home are generously proportioned. The family bathroom offers a large panelled bath, low level WC and vanity sink.

The family dining area offers access to the stunning south facing rear garden with paved patio area and, surrounded with tall trees offering a great amount of privacy. There is a side access that can be used to access the rear garden from the front of the property.

This family home is within close proximity of three schools including the desirable Parmiter’s School, recently rated as ‘Outstanding’ by Ofsted.

Property Ref: 603603_LUM240357_L

Share:

Similar Properties

Chapel Croft, Chipperfield, Kings Langley, Hertfordshire, WD4

4 Bedroom End of Terrace House | £2,800pcm

6 brand new family homes located within an attractive and exclusive development close to the centre of Chipperfield Vill...

Gills Hill, Radlett, Hertfordshire, WD7

4 Bedroom Terraced House | £2,800pcm

New to the market is this well presented four bed family home situated in the heart of Radlett.Upon entry the property c...

Wall Hall Drive, Aldenham, Watford, Hertfordshire, WD25

2 Bedroom Apartment | £2,750pcm

Luxury and spacious first floor apartment in the sought after Wall Hall Development with secure under ground parking for...

Cragg Avenue, Radlett, Hertfordshire, WD7

4 Bedroom Terraced House | £2,950pcm

This impressive four-bedroom terrace family residence is located in a quiet cul-de-sac, conveniently close to local scho...

Brendon Court, The Avenue, Radlett, Hertfordshire, WD7

2 Bedroom Apartment | £3,000pcm

A stunning and recently refurbished two double bedroom ground floor apartment situated on one of Radlett's finest roads...

The Spinney, Round Bush, Aldenham, Watford, WD25

5 Bedroom Semi-Detached House | £3,000pcm

Lumley Estates are pleased to offer to the rental market this lovely five-bedroom semi-detached cottage which has just b...

Lumley Estates (Radlett)

72 Watling Street, Radlett, Hertfordshire, WD7 7NP

01923 853366

How much is your home worth?

Use our short form to request a valuation of your property.

Request a Valuation
©2025 The Guild of Property Professionals. All rights reserved. Terms and Conditions | Privacy Policy | Cookie Policy | Complaints Policy | Members Login
The Guild of Property Professionals Trading Address: 121 Park Lane, London W1K 7AG. GPEA Limited. Registered in England & Wales.  Company No: 02819824.  Registered Office Address: 2 St. Stephen's Court, St. Stephen's Road, Bournemouth, Dorset, England, BH2 6LA.  VAT Registration No: 576 8795 61
Book a Property Valuation Update Cookies Preferences